Кладка печей своими руками [Александр Михайлович Шепелев] (fb2) читать онлайн


 [Настройки текста]  [Cбросить фильтры]
  [Оглавление]

А. М. Шепелев Кладка печей своими руками

От автора

Жилищному строительству в нашей стране уделяется большое внимание. Это одно из важнейших социальных направлений повышения материального благосостояния трудящихся Советского Союза.

На селе это строительство в основном ведут индустриальными методами, по типовым проектам. Однако широко развивается и индивидуальное строительство. Для этих целей государство представляет кредит.

«Основные направления экономического и социального развития СССР на 1981–1985 годы и на период до 1990 года» предусматривают: «Построить жилые дома общей площадью 530–540 млн. кв. метров… Расширить возможности индивидуального строительства жилых домов, особенно в небольших городах, поселках городского типа и в сельской местности. Оказывать содействие трудящимся в кооперативном и индивидуальном жилищном строительстве за счет поощрительных фондов объединений, предприятий».

В небольших городах, селах, деревнях не все дома имеют центральное отопление. Многие из них обогреваются печами. Чем качественнее сложена печь, тем меньше потребуется топлива и тем теплее будет в доме. Большое значение имеет и топка печей, которая не только экономит топливо, но и обеспечивает сохранность конструкции дома.

В индивидуальных домах на одну семью, как правило, есть кухня, коридор, ванная комната, туалет, жилые и детские комнаты, а также подсобные помещения. Для того чтобы в доме было красиво, не нарушалась внутренняя планировка, не ухудшался интерьер, хочется выбрать такую печь, которая бы занимала как можно меньше места. В предлагаемой вниманию читателя книге дается несколько конструкций печей различной теплоемкости.

Качество печной кладки зависит от того, какой материал применяют, как приготовлен тот или иной раствор, как выполнена работа, соблюдены ли размеры, данные порядовок, гладки ли дымовые каналы. Все это сильно влияет на отдачу печью тепла. Хорошо сложенная печь при соответствующем уходе служит до 50 лет и более.

Если все приведенные в этой книге советы будут учтены, качество кладки окажется вполне удовлетворительным. Автор старался как можно проще раскрыть «секреты» печного дела, а насколько это ему удалось, пусть судит читатель.

Автор и издательство желают Вам успехов в работе.

Основные рекомендации по кладке печей

Кто никогда не занимался печной кладкой, тому лучше предварительно потренироваться, чтобы в дальнейшем без ошибки сложить любую печь. Рекомендуется изготовить макет по одному из предложенных ниже вариантов кладки, уменьшенный в 5 раз по отношению к натуральной величине печи.

Для кладки макета следует изготовить прочный деревянный щит размером на 5-10 см больше размеров печи, на котором чертят нужную форму строго по угольнику и размерам.

Кладку можно вести на столе, не занимая специального места. Все приборы изготовляют из жести или кровельной стали, уменьшенные соответственно в 5 раз.

Стандартный кирпич имеет размер 250x120x65 мм и массу от 3,5 до 3,8 кг. Вместо него можно сделать небольшие кирпичики размером 50x24x13 мм (можно 15 мм) из глиняного раствора, подобрав состав по рецепту, предлагаемому ниже. Для прочности на шесть — десять частей глиняного раствора лучше добавить одну часть цемента и все хорошо перемешать. Такой раствор применяют в дело не позднее часа. В глиняный раствор можно также добавить гипс, но при этом приготовлять следует небольшие порции, так как он схватывается за 3–5 мин.

Кирпичики для макетов изготовляют в формах, но можно обойтись и без них. Для этого следует острогать рейки любой ширины, но толщиной 13–15 мм, расчертить на них длину кирпичиков, провести риски и по ним выполнить пропилы, которые никогда не сотрутся. Строгают доску, крепят к ней рейки на расстоянии 24 мм одна от другой, но так, чтобы риски были строго друг против друга. Рейки желательно укреплять так, чтобы они легко снимались после использования.

Доску с набитыми рейками смачивают водой, удаляют ее излишки, посыпают мелким песком, излишки которого также удаляют, приготовляют раствор, накладывают его между рейками, уплотняют и разравнивают по рейкам на одном с ними уровне. Раствор против рисок прорезают, отделяя кирпичик от кирпичика. Для этого делают из кровельной стали или жести лопаточку с ровным лезвием шириной 24 мм, которую и вставляют против рисок, разрезая раствор. Таким образом, на одной доске можно изготовить большое количество кирпичиков. Их укладывают на так называемую сушильную доску, переносят под навес и оставляют на несколько часов для просушки. В процессе сушки кирпичики неоднократно перевертывают, особенно глиняные. Изготовленный в нужном количестве и хорошо просушенный кирпич складывают в ящик.

Печи из таких кирпичиков кладут на жидком глиняном растворе или жидкой глине, иногда намазывая ее не руками, а изготовленной кисточкой по ширине кирпичика. Если в процессе работы окажутся незаполненные швы, их после кладки каждого ряда обязательно замазывают даже со стороны каналов. С наружной стороны это выполнить гораздо проще.

Кладку ведут согласно порядовкам, с тщательной перевязкой швов, укладкой целого кирпича и его частей, с проверкой выполняемой работы по горизонтали, вертикали и форме, применяя весок, уровень и угольник.

Сложенную печь рекомендуется проверить в работе. Ее выносят на улицу и протапливают сухими дровами, щепками, соломой, но для этого надо изготовить трубу деревянную, алюминиевую или жестяную такого же сечения (уменьшена), как в порядовке, и длиной 1 м. Она предназначена для создания тяги.

После проверки работы печи ее можно разобрать, очистить кирпичики от раствора и все использовать для изготовления следующего макета.

Труба — сложное сооружение, и особенно в распушке и выдре, где приходится укладывать целый кирпич, скалывать часть кирпича для придания ему нужной формы, раскалывать кирпич и т. д.

Желательно сложить две трубы, кладка которых рассмотрена в соответствующем разделе. Только тогда кладка трубы станет простой работой.

В русских печах приходится выкладывать своды и арки. Этому надо уделить особое внимание, применяя при кладке макета раствор и глину. Раствор необходим для выполнения утолщенных швов при кладке арки или свода.

Своды рекомендуется выкладывать по опалубке. Сложить их следует так: сначала простой, затем бочкообразный, усваивая технику их выполнения, что хорошо помогает в дальнейшей работе при кладке русских печей.

Изготовляя макеты, следует обратить серьезное внимание на ровность и гладкость каналов дымооборотов, от которых зависит работа печи в целом.

Проверять топкой работу любой печи надо только тогда, когда она совершенно высохла. Если печь сырая, то возможны дымление и другие явления, которых не бывает в сухих печах.

Вот основные рекомендации для тех, кто желает научиться хорошо класть различные печи.

Материалы, приборы и приспособления

Для устройства печей применяют всевозможные материалы, обладающие различными физическими свойствами, приборы и приспособления. Из физических свойств наиболее важны огнеупорность и тепловое расширение, поскольку отдельные части печей в процессе их топки подвергаются разным температурам, к тому же одни и те же материалы в зависимости от нагревания расширяются неодинаково. В печных работах это особенно относится к изделиям из металла, что приводит к разрушению или расстройству печной кладки. Например, стальной стержень длиной 1000 мм при нагревании его от комнатной температуры до 100 °C удлиняется на 1,2 мм. При более сильном нагревании удлинение увеличивается. Учитывая тепловое расширение металла, его весьма ограниченно применяют в печных работах, особенно внутри печной кладки.

В печных работах нельзя применять сгораемые, трудносгораемые материалы или же способные плавиться при более высоких температурах, а также материалы, деформирующиеся от нагревания.

Основные материалы

Каменные материалы. К ним относятся песчаник, известняк и бутовый камень. В основном применяют для кладки фундаментов под печи.

Песчаник — прочная порода, состоящая из зерен песка, скрепленных между собой глиной или известью.

Известняк — прочный материал, несколько уступающий по крепости песчанику.

Бутовый камень — общее название каменных пород, в том числе и вышеперечисленных. Бутовый камень подразделяют на рваный, неопределенной формы; булыжник округлый, гладкий; постелистый — плоские камни; бутовую плиту — плоские каменные плиты.

Для получения ровного основания лучше всего применять постелистые камни или бутовую плиту. Они более плотно укладываются и надежно сцепляются с раствором.

Кирпич — искусственный камень, получаемый из хорошо подобранной глины с последующим пластическим или полусухим прессованием, сушкой и обжигом. Он служит основным материалом для кладки печей. Изготовляют несколько разновидностей кирпича.

Кирпич глиняный обыкновенный, или красный, после сушки обжигается при температуре от 800 до 1000 °C. В процессе обжига отдельные частицы глины плавятся и связывают всю массу кирпича в одно целое, придавая ему необходимую прочность. Глина при обжиге изменяется в цвете и становится красной или кирпичной.

Не во всех местах печи температура в процессе обжига бывает одинаковой. Там, где она больше 1000 °C, глина сильно плавится, в результате темнеет и частично покрывается стекловидной пленкой, получается пережженный кирпич, или железняк. Он очень прочный, плохо колется, слабо связывается с раствором и непригоден для печной кладки. Его применяют для устройства фундаментов под печи и здания.

Там, где температура не превышает допустимых пределов, получается нормально обожженный, или красный, кирпич соответствующей пористости. При простукивании такой кирпич издает чистый металлический звук, хорошо колется, тешится, при падений не рассыпается, а раскалывается на крупные куски.

В местах с недостаточной температурой получается алый, или недожженный, кирпич (недожег) с бледно-розовой окраской. При простукивании он издает глуховатый звук, падая, рассыпается на мелкие куски, очень порист и сильно поглощает воду. В печных работах используют ограниченно, в неответственных местах. Поэтому для печных работ кирпич рекомендуется отбирать.

Кирпич изготовляют размером 250x120x65 мм, с некоторыми допусками, которые зависят от прессования. При пластическом прессовании могут быть плюсовые или минусовые допуски по длине 4 мм, по ширине и толщине 3 мм, при полусухом прессовании соответственно 3 и 2 мм. Масса кирпича равняется 3,5–3,8 кг. Марка на сжатие — не менее 300, 250, 200, 150, 125, 100 и 75 кг/см2. Кирпич, которому в установленном порядке присвоен государственный Знак качества, имеет марку не ниже 125.

Кирпич должен иметь форму прямоугольного параллелепипеда, с прямыми ребрами и углами, с четкими гранями и ровными лицевыми поверхностями, без сквозных трещин и т. д. Объемная масса обыкновенного кирпича — около 1800 кг/м3.

В кубическом метре сплошной кладки укладывается около 380 кирпичей.

Если кирпич при разборке печей не потерял свою форму и прочность, его можно употребить вторично, но с обязательной очисткой от раствора и сортировкой. В зависимости от состояния его применяют для кладки фундаментов, разделок труб, последние затем оштукатуривают.

Кирпич от разборки стен зданий, сложенных на известковом растворе, для кладки самих печей непригоден. Его используют для кладки фундаментов и верхних частей дымовых труб (над крышей).

Не разрешается применять для кладки печей и дымоходов силикатный, пустотелый и дырчатый кирпич.

В топках печей и первом дымовом канале, где температура очень высокая, особенно при сжигании каменного угля, обыкновенный (красный) кирпич быстро разрушается и печь приходится ремонтировать или перекладывать. Поэтому в таких местах следует применять тугоплавкие кирпичи, изготовляемые из глин повышенной огнестойкости и прочности. Они носят название той местности, в которой их изготовляют. Наибольшую прочность и повышенную огнестойкость имеет белый по цвету, ровный гжельский и боровичский кирпич. Он выдерживает температуру от 900 до 1000 °C, применяют для облицовки топливников печей, в которых сжигают дрова и торф.

Огнеупорный шамотный кирпич выдерживает температуру до 1600 °C (для класса А). Им облицовывают, или футеруют, топливники печей, предназначенных для сжигания каменного угля.

Изготовляют его путем смешивания шамота-порошка из обожженной и размолотой огнеупорной глины. Размеры этого кирпича 250x123х65 и 230х113х65 мм. Тугоплавкий и огнеупорный кирпичи на всех рисунках заштрихованы в клеточку.

Подовый кирпич в основном применяют для выстилки пода в хлебопекарных и русских печах. Чтобы получить более гладкую поверхность и уменьшить количество швов, его изготовляют размером 225x225x70 мм из обыкновенной или огнеупорной глины.

Глина обыкновенная (или красная) представляет собой остатки выветрившихся горных пород, состоящих из мельчайших частиц в виде чешуек. Обычно она встречается в виде грунта в сухом или слегка влажном состоянии с примесью песка, извести, слюды и т. д. В зависимости от количества примесей глина подразделяется на жирную, среднюю и тощую. В жирной глине содержится 2–3 % песка, в средней — около 15 и тощей — около 30 %. Глина может впитывать большое количество воды, увеличиваясь при этом в объеме (разбухает) и образуя тесто. При высыхании объем ее уменьшается, а на поверхности образуются трещины.

При нагревании глины от 400 до 700 °C она сперва начинает отдавать воду. После полной отдачи становится пористой, а затем постепенно плавится или спекается. При замерзании, начиная с 0 °C, она вспучивается и увеличивается в объеме. Тесто из глины пластично, легко принимает и сохраняет приданную форму. Пластичность глины зависит от размера частиц глиняного вещества, примесей и других причин. Усушка глины средней пластичности — 6–8 %, тощей — меньше 6 %.

Чистую от примесей глину применяют для изготовления огнеупорных изделий.

Обыкновенную (или красную) глину применяют в виде раствора (глина, песок и вода) для кладки печных массивов — печей из обыкновенного красного кирпича.

Гжельскую и другие тугоплавкие глины применяют для кладки стен топливника и первых (жаровых) каналов, выполняемых из гжельского или огнеупорного кирпича.

Из огнеупорной глины выкладывают стены топливника и первый восходящий канал в печах, работающих на антраците, каменном угле или жидком топливе.

Песок используют как заполнитель в глиняных растворах для кладки печей. Он должен быть чистым, не иметь примесей ила, извести, растительных остатков и других загрязняющих его веществ. Лучшим песком является горный с шероховатыми поверхностями. Речной песок менее пригоден, так как его зерна имеют округлую, гладкую форму и он меньше сцепляется с глиной. Загрязненные пески промывают. Песок добавляют в обыкновенную и тугоплавкую глины, и особенно в жирные. Чем жирнее глина, тем больше добавляется песка, и наоборот. В огнеупорные глины вместо песка добавляют шамот.

Песок, добавляемый в растворы, должен быть мелким, с зернами величиной не более 1 мм, что дает возможность получить самые тонкие швы, тем самым повышая прочность кладки печей.

Вода. Лучшей водой для кладки печей считается дождевая и речная. В воде не должно быть примесей солей, кислот и щелочей. Жесткая вода в печном деле нежелательна. Воспрещается применять воду из луж.

Известь строительная. Изготовляют путем обжига известняков в специальных вращающихся или шахтных печах. Она бывает кальциевая, магнезиальная и доломитовая первого, второго и третьего сортов. После обжига получается комовая известь — кипелка. Делится на быстрогасящуюся — не более 8 мин, среднегасящуюся — не более 25 мин и медленногасящуюся — более 25 мин. От умело погашенной извести получается высококачественное известковое тесто в большом количестве, и наоборот. Хранить комовую известь необходимо в сухих сараях (местах) на сухом дощатом полу. В сырых местах она постепенно гасится, превращаясь в пушенку — тонкий порошок. Лучше всего известь-кипелку погасить в тесто, которое в надлежащих условиях может храниться десятками лет, улучшая при этом свои вяжущие свойства.

Известь применяют для приготовления растворов, употребляемых для кладки фундаментов под печи и оголовки труб, расположенных выше крыши. На этом растворе выкладывают коренные трубы высотой до двух этажей.

Цементы — гидравлические вяжущие вещества большой прочности, изготовляемые пяти марок с пределом прочности: 300, 400, 500, 550 и 600 кгс/см. Бывают портландцементы и портландцементы с минеральными добавками, шлакопортландцементы, а также быстротвердеющие портландцементы и шлакопортландцементы. Они быстро схватываются по сравнению с глиной и известью. Начало схватывания — не ранее 45 мин, конец схватывания — не позднее 12 ч. Из них приготовляют цементные растворы или их добавляют в глиняные и известковые растворы для придания прочности.

Хранить цементы надо в сухих местах, лучше в полиэтиленовых, плотно завязанных мешках. От соприкосновения с воздухом цементы постепенно снижают свои качества.

Цементные растворы применяют для тех же целей, что и известковые.

Вещества вяжущие, известьсодержащие, гидравлические. Изготовляют четырех марок с пределом прочности: 50, 100, 150 и 200 кгс/см2. Начало схватывания должно наступать не ранее 25 мин, а конец схватывания — не позднее 24 ч от начала затвердения. Применяют для тех же целей, что и рассмотренные выше известь и цементы.

Бетон — очень прочный искусственный материал. Для получения бетонной массы приготовляют сухую смесь правильным подбором цемента, мелких и крупных заполнителей, затем затворяют ее водой. Укладывают его за срок не позднее часа. Приготовляют бетон той или другой прочности, но не выше марки применяемого цемента. Заданную прочность бетона подбирают специально в лабораториях и данные выдают на заводы или строительные объекты.

Если в бетон вставить стальную арматуру разного диаметра или стальную сетку, получают железобетон. Армируют по расчету.

Жароупорный бетон выдерживает температуру до 1200 °C. Бывает разных составов, материалы которых отмеряют массовыми частями.

Для блоков топливника его приготовляют из портландцемента марки не ниже 400 (одна часть), щебня из огнеупорного кирпича (две части), песка из огнеупорного кирпича (две части), пылевидные тонкомолотые добавки из шамота (0,33 части).

Гипс, порошок белого цвета, быстро схватывается и применяется как добавка в известковых растворах для ускорения их схватывания. Является также составной частью раствора, применяемого для оштукатуривания печей.

Подсобные материалы

В печных работах применяют всевозможные вспомогательные или подсобные материалы: стальные балки, уголки, полосы, проволоку, гвозди, листовую кровельную сталь, войлок, асбест, асбестоцементные и гончарные трубы, толь, рубероид, печные изразцы или кафель.

Сталь бывает разной формы и прочности: Круглая сталь — в виде стержней разного диаметра. Полосовая сталь — полосы прямоугольного сечения разной ширины и толщины.

Обручная, или пачечная, сталь — в виде ленты шириной от 12 до 100 мм, толщиной от 0,9 до 3,5 мм. Этот вид стали широко применяют для устройства лапок к различным дверкам, позволяющим закреплять их в кладке более надежно.

Кровельная сталь — листы различной толщины. Бывает черной и оцинкованной. Идет на изготовление футляров для печей, предтопочных листов, водогрейных коробок и разной посуды. Обычно для этой цели применяют оцинкованную сталь.

Стальной проволокой закрепляют печные приборы и изразцы. Ее берут толщиной от 2 до 3 мм, она должна быть мягкой, для чего ее отжигают.

Гвозди применяют для штырей и вязки проволочной кладки. Обычно их берут длиной от 100 до 150 мм, но могут быть и другие размеры.

Фасонную или фигурную сталь в основном применяют для изготовления оснований под печи, поддержания кирпичной кладки и ее связи и т. д. Швеллерную и двутавровую сталь изготовляют под номерами, которые обозначают размер изделия по высоте.

Угловая (уголковая) сталь бывает равнобокая и неравнобокая. Ее размеры обозначают тремя цифрами в миллиметрах. Например, равнобокий уголок имеет полки высотой по 25 мм, толщиной 3 мм (25х25x3 мм), неравнобокий уголок имеет полки высотой 75 и 50 мм, толщиной 8 мм (75х50х8 мм).

Применение изделий из фасонной стали указано в каждой рассматриваемой печи.

Теплоизоляционные материалы применяют для уменьшения теплопроводности, то есть передачи тепла от нагретых частей печи к прилегающим сгораемым конструкциям. К этим материалам относится войлок и асбест. Их прокладывают между печью и конструкциями из дерева, фибролита, камышита, соломита.

Войлок строительный выпускают в виде полотнищ толщиной 5 мм из отходов грубой шерсти. Войлок плохо воспламеняется, не горит, а медленно тлеет, издавая своеобразный специфический запах, указывающий на то, что он где-то соприкасается с огнем. Перед применением войлок вымачивают в глиняном растворе, который предохраняет его от разведения моли и возгорания. Вымоченным в глиняном растворе войлоком изолируют всевозможные разделки у печей и труб, а также обертывают концы деревянных балок, проходящих вблизи дымовых каналов и разделок, а также кладут под предтопочные листы.

Асбест — минеральный, несгораемый, теплоизоляционный материал, изготовляемый в виде листов или шнура. Он долговечен, имеет низкую теплопроводность. Применяют вместо войлока, особенно для прокладки между рамками печных приборов, дверками и печной кладкой.

Асбестоцементные трубы изготовляют из смеси асбеста и цемента с последующей формовкой и сушкой. Добавление асбеста в портландцемент значительно повышает его прочность.

В печных работах эти трубы применяют диаметром от 125 до 300 мм при толщине стенок 12–20 мм и длине труб 4 м. Между собой трубы соединяют асбестоцементными муфтами.

Эти трубы применяют для облицовки дымоходов с внутренней стороны в кирпичных стенах, устройства дымоходов (дымовых труб), начиная с чердака с выходом на улицу, то есть выше кровли. Для утепления их облицовывают кирпичом или оштукатуривают.

Гончарные трубы или керамические применяют наравне с асбестоцементными для устройства дымовых труб и воздушных каналов. Их изготовляют из лучших сортов глины, а также из гжельской или огнеупорной с последующим обжигом и глазуровкой изнутри. Диаметр труб — от 170 до 220 мм, длина отдельных звеньев — от 350 до 700 мм. Соединяют их друг с другом раструбами.

Изразец или кафель — самый лучший материал для облицовки наружных поверхностей комнатных печей и кухонных очагов (плит).

Изразец состоит из пластины, наружная сторона которой покрыта глазурью, румпы, образующей коробку, в стенках которой имеются два отверстия. В эти отверстия вставляют стальные штыри, служащие для скрепления проволокой изразцов друг с другом и закрепления их на поверхности печи путем закладки проволоки в толщу кладки.

Форма и назначение изразцов бывают разными: стенные или прямые, применяемые для облицовки стены печи; угловые — для облицовки углов и фасонные — для облицовки выступающих частей печи. Кроме того, в зависимости от формы изразцы называются: закладкой или цокольным, уступом, гладким или лицевым, полочным, выступающим, карнизным, венцовым или лиштвой.

Размеры изразцов: прямые — 220х220х50 и 200х200х45 мм, угловые — 220x220х110x50 и 200х200х100x45 мм; прямоугольные «рустик» прямые — 205х130х45 мм; угловые — 205х130х107х45 мм. Угловые изразцы имеют четыре размера. Два первых из них 220x220 определяют одну сторону, два других 110х50 — другую, которая может быть шириной 110 или 50 мм.

В процессе кладки внутренность румпы заполняют раствором, мелким печным кирпичом или кирпичным щебнем.

Толь и рубероид — гидроизоляционные материалы. Изготовляют из картона, пропитанного каменноугольной смолой или нефтяными продуктами, обсыпанного с двух сторон песком, слюдой или каменной мукой. В основном используют для гидроизоляции фундаментов под печи, предохраняя их от грунтовой воды. Толь укладывают на дегтевых, а рубероид на битумных мастиках.

Растворы

От качества раствора зависит прочность печной кладки. Раствор — это смесь вяжущих веществ, заполнителя и воды. Его назначение — связывать воедино отдельные камни, кирпичи, блоки. Указываются растворы численным соотношением вяжущих веществ и заполнителей. Например, 1: 1 означает, что на одну объемную часть вяжущего вещества необходимо взять одну объемную часть заполнителя, 1:3 — на одну часть вяжущего вещества требуется три части заполнителя. Кроме простых составляют сложные растворы в соотношении двух вяжущих частей и одной части заполнителя. Сложные растворы могут быть цементно-известковыми, цементно-глиняными, известково-глиняными. Не всегда части берут целыми единицами, иногда приходится брать десятыми долями. Например, в некоторые глины или известь добавляют не одну часть заполнителя, а 0,25 или 0,5 и т. д., то же относится и к сложным растворам, где какое-то вяжущее берется не целыми единицами.

Необходимо помнить, что тощие растворы не обладают нужной пластичностью и крепостью, жирные — пластичны, но при высыхании образуют трещины, поэтому самые распространенные — средней пластичности, или нормальные, в которых в норме вяжущее и заполнитель, они прочны, не трескаются при высыхании и дают минимальную усадку. Следовательно, растворы нужно тщательно подбирать, то есть брать в норме вяжущее вещество и заполнитель. Воду во всех случаях берут в зависимости от требования к густоте раствора. Приготовленные растворы следует хранить закрытыми во избежание их загрязнения.

Известковые, цементные и сложные растворы наносят только инструментом.

Глиняный раствор

Раствор приготовляют таким, чтобы он имел хорошую пластичность и прочность. Обычно берут одну часть глины и столько же песка или в соотношении 1:2. Гораздо лучше, когда глину проверяют. Количество воды равняется примерно 1/4 объема глины.

Нормальные по жирности и пластичности растворы обладают достаточно хорошей прочностью. Высыхая, они не трескаются, не дают большой усадки и мало выкрашиваются из швов.

Кирпич-сырец — лучший материал для приготовления раствора. В нем тщательно подобран состав глины и песка. Такие глины только требуют размачивания водой и тщательного разминания комков. Воды берут столько, чтобы получить раствор нужной густоты или до рабочего состояния.

Любую глину перед приготовлением раствора следует проверить. Например, берут пять одинаковых порций глины (по 0,5 или 1 л). В нее добавляют воду в таком количестве, чтобы получилось крутое глиняное тесто. Первую порцию оставляют в чистом виде, во вторую добавляют 10 % песка, в третью — 25, в четвертую — 75 и в пятую — 100 %.

Если испытываемая глина жирная, то количество песка берут для второй порции 50 %, для третьей — 100, для четвертой — 150 и для пятой — 200 %.

Каждую порцию в отдельности хорошо перемешивают с добавлением воды до тех пор, пока раствор не станет совершенно однородным и влага не распределится равномерно по всей массе. После этого в приготовленные порции глины добавляют песок и воду, еще раз тщательно перемешивают, получая крутое тесто. Приготовив порцию раствора, приступают к их испытанию. Можно воспользоваться разными способами.

При более упрощенном способе из приготовленных образцов изготовляют по два-три шарика диаметром 4–5 см и две-три лепешки из таких же шариков толщиной 2–3 см. Их сушат в помещении без сквозных ветров. Раствор считается годным, если высохшие шарики и лепешки не растрескиваются, а шарик при падении с высоты 0,75-1 м не рассыпается на полу. Если раствор «тощий», то шарик при падении рассыпается, если «жирный» — лепешки и шарик растрескиваются по краям.

Улучшенный способ имеет два варианта проверки. Суть их в следующем. Из приготовленной порции скатывают шарики диаметром 4–5 см и, поместив их между двумя строгаными дощечками, надавливают на них до тех пор, пока на шарике не образуются трещины. В зависимости от величины сплющивания и характера трещин судят о качестве или пластичности глиняного раствора.

Шарик из «тощей» глины (суглинка) при незначительном нажиме на него рассыпается на куски, а из глины малой пластичности при сжатии на 1/51/4 его диаметра образуются большие трещины. Если сжать шарик из глины средней пластичности, на нем образуются трещины такой же формы, но только на 1/3 его диаметра. В высокопластичных глиняных растворах при сжатии образуются тонкие трещины шарика на 1/2 его диаметра.

Для изготовления кирпича или приготовления глиняного раствора наиболее пригоден раствор средней пластичности, тощие и жирные — непригодны. В первый надо добавить жирную глину, во второй — песок.


Рис. 1. Проверка на растяжение жгутиков из глиняного раствора:

а — тощего; б — нормального; в — жирного


Рис. 2. Проверка на сгибание жгутиков из глиняного раствора:

а — тощего; б — нормального; в — жирного


Проверка вторым вариантом заключается в том, что из этой же массы, из которой были изготовлены шарики, раскатывают руками жгутики (колбаски) одинаковой толщины (1–1,5 см) и длиной 15–20 см. Полученные жгутики растягивают и сгибают в виде кольца вокруг круглой палки или скалочки диаметром 4–5 см (рис. 1, 2).

Жгутик из тощей глины почти не растягивается и дает неровный разрыв, а при сгибании вокруг скалки образует много трещин и разрывов. Жгутик из глины средней пластичности (кирпичные глины) растягивается плавно и обрывается, когда толщина в месте разрыва достигает 15–20 % его диаметра, а при сгибании в местах сгиба образуются мелкие трещины.

Жгутик из пластичной и высокопластичной глины плавно вытягивается и постепенно утоняется, образуя на месте разрыва острый конец, а при сгибании не дает трещин.

Таким образом, дву-, трехкратное повторное испытание способом раздавливания шарика, растягивания и сгибания жгутика дает возможность выбрать глину средней пластичности, пригодную для изготовления кирпича-сырца и глиняного раствора, применяемых для кладки печей. Такой раствор хорошо выдерживает нагревание до 800-1000 °C, не теряет при этом прочности и не выделяет вредных испарений. От нагревания и остывания раствор изменяет свой объем одинаково с кирпичом и не расстраивает кладку, сохраняя ее без растрескивания.

Определив соответствующий состав глиняного раствора, приступают к его приготовлению.

Напоминаем, что количество раствора, идущего на печную кладку, довольно велико — от 1/13 до 1/10 объема печи, считая по наружному размеру. В среднем считают, что на 100 штук кирпича нужно глины от 2 до 2,3 ведра, песка — от 1,5 до 2 ведер.

Необходимо знать, что чем ровнее кирпич, чем через более частое сито процежен глиняный раствор и чем тоньше швы, тем меньше пойдет раствора для выполнения работы.

В дальнейшем для каждой печи будет указано нужное количество глины и песка для приготовления раствора. Эти данные даются условно, так как все зависит от качества материалов и техники кладки.

Печная кладка должна иметь тонкие швы. Чтобы получить тонкие швы, материалы в отдельности просеивают или раствор процеживают через сито. При процеживании раствор еще раз дополнительно перемешивают, чтобы в нем не осталось сгустков и он стал совершенно однородным.

Для просеивания песка и сухих вяжущих веществ (гипс или цемент) применяют сита с ячейками от 1х1 до 1,5x1,5 мм, а для просеивания глины или процеживания раствора — с ячейками не реже 3х3 мм.

Приготовление раствора из просеянных материалов. Просеивают песок через сито. Глину кладут в крепкую посуду, чаще всего бочку или ящик, заливают ее водой, разминают крупные куски, хорошо перемешивают и оставляют на одни-двое суток. Следует учесть, что чем глина больше находится в воде, тем ее частицы лучше размокают и она становится пластичнее. Замоченную глину еще раз перемешивают (лучше ее перемешивать неоднократно) и процеживают через сито в другую посуду, получая сметанообразную массу. Приготовив нужное количество глины, приступают к приготовлению раствора, отмеривая при этом глину и песок нужными частями. Сперва рекомендуется насыпать в ящик слой песка, затем налить глину, засыпать ее вторым слоем песка и тщательно перемешать. Для полной однородности раствор процеживают через сито.

Хорошо перемешанным раствор считается тогда, когда при растирании его между пальцами ощущается шероховатый слой песчинок, а не скользкая пленка с отдельными песчинками в ней. Нормально приготовленный раствор похож на густую сметану, он легко сползает со стальной лопаты и не растекается на ней. На таком растворе и выполняют печную кладку.

Приготовление раствора из непросеянных материалов. Замачивают глину за одни-двое суток, разминают комки. Затем на деревянный щит-боек (на земле хуже) насыпают грядкой отмеренное количество просеянного песка. По длине этой грядки делают канавку и заполняют ее нужным количеством глины. Собирают с краев грядки песок, засыпают им глину и все перелопачивают стальной лопатой (лучше работу выполнять вдвоем). Если масса густая, то в нее добавляют немного воды. В процессе перемешивания стараются разбивать отдельные комки, доводя раствор до полной однородности. Затем его сгребают в узкую длинную грядку шириной 300–350 мм и высотой 200–250 мм и приступают к так называемой «рубке» раствора деревянным веслом или лопатой, нанося удары поперек грядки. Ударяют лопатой так, чтобы она достигала деревянного настила и каждый удар приходился рядом с другим, как бы отрезая ломти раствора. Этот процесс повторяют многократно до полного смешивания глины с песком и одновременного разминания всех сгустков глины. Попутно удаляют камешки и другие примеси. После этого кучу снова перелопачивают, сгребают и снова мнут, повторяя эту операцию три-четыре раза.

Когда все комки будут разбиты и раствор станет однородным, в него добавляют воду до густоты теста и еще раз перемешивают. Окончательно добавляют воду до нужной густоты перед началом кладки на рабочем месте.

В приготовленном таким образом растворе всегда остаются различные комки, крупные песчинки, мелкие камешки, которые приходится удалять в процессе работы. Швы на таком растворе могут быть толщиной около 10 мм. Не исключается возможность травмирования рук. Поэтому его лучше пропустить через сито с ячейками не реже 3х3 мм.

Глиняные растворы имеют низкую марку: в сухом состоянии — от 4 до 8 кгс/см2, во влажном — до 2 кгс/см2.

Чтобы повысить прочность раствора, а следовательно, печной кладки, на одно ведро глиняного раствора можно добавить от 100 до 250 г поваренной соли или не более 3/4 литра портландцемента. От большого количества цемента возможно образование трещин в швах кладки. Цемент не только увеличивает прочность раствора, но и придает ему повышенную пластичность и удобство в работе.

Соль предварительно растворяют в небольшом количестве воды, добавляют эту воду в глиняный раствор и все тщательно перемешивают.

Цемент затворяют водой до получения жидкой сметанообразной массы, которую вливают в глиняный раствор, и все смешивают до полной однородности.

Растворы с солью и цементом иногда наносят руками, но предпочтительнее кельмой или лопаткой.

Известковый и известково-гипсовый растворы

Раствор приготовляют чаще всего из известкового теста, песка и воды, количество которой зависит от густоты раствора. Применяют его в основном для кладки фундамента под печи и трубы выше кровли. Для придания прочности в него добавляют цемент, а для быстроты схватывания — гипс (в основном в штукатурных работах).

Чем лучше известковое тесто, тем выше качество раствора, и наоборот. Поэтому комовую известь-кипелку гасят, заливая ее водой и выдерживая в творильных ямах нужное время. От умения гасить зависит ее качество и максимальный выход известкового теста.

Гасить известь лучше всего в ящике (удобнее перемешивать), чем в бочке. Сливать гашеную известь следует в любую посуду, но лучше в вырытую в земле так называемую творильную яму. Ее лучше всего обшить досками. Там она может храниться длительное время (десятками лет), если ее засыпать сверху землей слоем не тоньше 500 мм. Чем больше она хранится, тем выше качество, но только без доступа воздуха. Сливать известь надо через сито с ячейками не менее 5x5 мм.

Быстрогасящуюся известь гасят так. Сперва наливают в гасильный ящик воду, примерно на половину его высоты. Заполняют известью в несколько приемов, равномерно распределяя ее в ящике. При появлении паров воды ее интенсивно перемешивают, разбивая при этом отдельные куски и добавляя воду до тех пор, пока не прекратится выделение пара. В загашенную известь добавляют столько воды, чтобы получить однородное известковое молоко, и оставляют на некоторое время, чтобы погасились оставшиеся кусочки. Затем все перемешивают и процеживают через сито в посуду или творильную яму.

Для гашения среднегасящейся извести в гасильный ящик сперва насыпают известь-кипелку на 1/4 его высоты, заливают водой до половины слоя насыпанной извести. При появлении паров воды начинают перемешивать известь с одновременным разбиванием кусков, добавлением воды небольшими порциями, чтобы предупредить высыхание и перегорание извести. После прекращения выделения пара добавляют воду, все тщательно перемешивают и полученное известковое молоко через некоторое время сливают через сито в посуду или творильную яму.

Медленногасящуюся известь сперва насыпают в гасильный ящик на 1/4 его высоты, увлажняют небольшим количеством воды и выдерживают до тех пор, пока в извести появятся трещины и другие признаки гашения. После этого небольшими порциями воды поливают известь, соблюдая при этом осторожность, чтобы не охладить начавшую гаситься известь. По мере гашения небольшими порциями добавляют воду и перемешивают. После гашения известь разбавляют водой до густоты известкового молока, немного выдерживают и сливают через сито для хранения.

В холодное время года медленногасящуюся известь для ускорения гашения надо заливать горячей водой.

Остатки непогасившейся извести складывают в отдельную посуду и заливают водой, оставляя на некоторое время; часть ее может погаситься.

Гашеную известь рекомендуется выдержать не менее месяца и только после этого применять в дело. Чем больше выдерживается известковое тесто, тем выше его качество.

Приготовляют раствор так. Известковое тесто процеживают через частое сито с отверстиями не реже 3х3 мм. Через него же просеивают и песок. Если тесто очень густое, то его предварительно размешивают с добавлением воды. В известковое тесто добавляют песок и все тщательно перемешивают до однородного состояния. Густоту раствора регулируют добавлением воды. Количество песка зависит от качества извести. На одну объемную часть известкового теста добавляют от 0,5 до 5 объемных частей песка, чаще всего две-три части, что зависит от ее жирности. Тощий раствор не имеет прочности, жирный сильно растрескивается. Самый лучший — это нормальный по жирности, который определяют следующим способом.

Раствор перемешивают остроганным веслом в течение 2–3 мин, затем весло вынимают. Если раствор к веслу не прилип, а только испачкал его, значит, он тощий; если раствор прилип местами в виде отдельных сгустков или покрыл весло слоем в 2–3 мм, значит, он нормальной жирности; если же много прилипло раствора (толстым слоем), значит, он жирный. В тощие растворы необходимо добавлять известковое тесто, а в жирные — песок. Известковые растворы можно хранить несколько суток.

Известково-гипсовый раствор в основном применяют для отделки или оштукатуривания поверхностей печей. Приготовляют из известкового раствора и гипса, который ускоряет схватывание и повышает прочность известкового раствора.

Кроме известково-гипсовых в отделке печей применяют также и другие составы растворов, о которых будет сказано в соответствующем разделе.

Цементный раствор

Раствор приготовляют из цемента, песка и воды. Он самый прочный, твердеет на воздухе и в воде. В печных работах применяют для кладки фундаментов в сырых местах или грунтах, насыщенных водой, а также для кладки труб выше кровли. Он быстро схватывается (начало схватывания — 45 мин, конец схватывания — не позднее 12 ч). Применять его следует не позднее часа с момента приготовления; при более длительных сроках он снижает свою прочность. Марка или прочность раствора на сжатие бывает разная и зависит от количества составляющих и марки цемента. Составы раствора — 1:1; 1:1,5; 1:2; 1:2,5; 1:3; 1:3,5; 1:4; 1:4,5; 1:5; 1:5,5 и 1:6.

Приготовляют раствор так. Просеивают цемент и песок на сите с отверстиями 3х3 мм, отмеривают их объемными дозами. Нужное количество песка насыпают грядкой и сверху посыпают цементом. Все тщательно перемешивают (гарцуют) до полной однородности, а иногда дополнительно просеивают через сито. Получают сухую смесь, которую затворяют водой до нужной густоты. Не следует приготовлять много смеси, так как от длительного хранения цемент с сырым песком перегорает и снижает свою прочность.

Сложный раствор приготовляют из двух вяжущих и одного заполнителя: обычно цемента, известкового теста, песка и воды. Применяют для кладки фундаментов во влажном грунте и труб выше кровли. Раствор может быть различных составов. Например, на одну часть цемента берут от одной до трех частей известкового теста и от шести до пятнадцати частей песка. Конечно, могут быть и другие составы по объему.

Раствор приготовляют разными способами. В одном случае сперва из цемента и песка приготовляют сухую смесь. Затем известковое тесто разводят водой до густоты сметаны. Все эти материалы отмеривают точными объемными дозами. В разведенное известковое тесто добавляют приготовленную порцию цементной смеси, все тщательно перемешивают и, если надо, дляполучения раствора нужной густоты добавляют воду и еще раз перемешивают.

В другом случае из отмеренного количества песка и известкового теста приготовляют раствор, насыпают в него отмеренную порцию цемента и все тщательно перемешивают. Можно цемент предварительно смешать с водой до сметанообразного состояния. Воду добавляют в нужном количестве для получения раствора надлежащей густоты.

Этот раствор пластичнее цементного, ниже по прочности и его необходимо приготовлять в таком количестве, чтобы употребить в дело за один час с момента приготовления.

Изготовление кирпича-сырца

Печи до трубы можно класть из кирпича-сырца. Состав глиняного раствора для его изготовления подбирают по ранее описанным методам, то есть дву-трехкратным раздавливанием шарика и растягиванием и сгибанием жгутика. В процессе подборки приходится смешивать два или три вида глины с различной пластичностью или с добавлением в нее песка определенной дозы, которую отмеривают ведром, корытом или носилками. Все компоненты необходимо тщательно перемешать, лучше в сухом состоянии. Перемешанные материалы поливают водой. Для этого в насыпанной глине устраивают посередине бороздку, наливают туда воду и затем перемешивают. Количество воды зависит от влажности глины и ее пластичности. Если работу выполняют весной из свежевынутых материалов, то воды требуется меньше, летом больше. От правильно подобранной смеси, ее перемешивания, необходимого количества воды зависит и прочность сырца.

Увлажнение глины перед самой формовкой приводит к ее неравномерному насыщению водой, то есть к увеличению брака сырца. Чтобы глиняная смесь для формовки была однородна, хорошо увлажнена и тем самым подготовлена для работы, ее следует увлажнять минимум за 10–12 ч до смешивания. Чем больше времени глина увлажняется, тем выше качество сырца, и наоборот. Глину можно сначала размешивать лопатой, затем разминать трамбовкой и мять ногами.

Толщина глиняного слоя должна быть не более 10 см, что дает возможность хорошо ее перемешать. Для изготовления тысячи штук кирпича необходимо приготовить примерно 2,5 куб. м глины. В процессе приготовления глины все камни и другие включения удаляют. Весьма опасными включениями в глине являются зерна известняка. При топке печи этот известняк обжигается и превращается в известь-кипелку. В случае попадания на известь-кипелку воды она начинает гаситься, образуя дутики и трещины в кирпиче, и кладка печи разрушается. Глина считается пригодной, если она содержит известняка не более 10 % с размерами зерен не крупнее 2–3 мм.

Определение наличия известняка в глине требует знаний, так как приходится взятую пробу глины размачивать в воде, отмучивать известняк, отбирать его и взвешивать. Чтобы в глине было меньше посторонних примесей, ее заготавливают с осени и оставляют в грядах для вымораживания. Глина в грядах, намокая и замерзая, улучшает свои свойства, а примеси при этом разрушаются и остаются в минимальном количестве. Если глину заготавливать не за год, а за два, то качество ее намного улучшается по сравнению с годичным вылеживанием в грядах.

Подготовленная глина хорошо формуется и может быть тут же применена в дело. Намного лучше она формуется, если ее после приготовления укрыть мокрыми рогожами и дать полежать 10–12 ч (лучше ее приготовить на ночь). Сырец, изготовленный из вылежанной глины после формовки, приобретает гладкую поверхность и сохраняет ровные края. Глина при этом не прилипает к форме, а сырец сушится значительно лучше. Все это подтверждает, что обработка и подготовка глиняной смеси для изготовления сырца играют существенную роль.

После приготовления глины можно приступить к изготовлению сырца. Но следует помнить, что глина дает в процессе сушки большую усадку и изделия уменьшаются в размере. Допускается сжимаемость глины от 6 до 10 %. Таким образом, если изготовить из глины кирпич длиной 250 мм, то, высыхая, он уменьшается на 25 мм. Чтобы этого не произошло, глину проверяют на сжимаемость и заготовляют форму для выработки сырца кирпича такого размера, чтобы после сушки он имел стандартные размеры 250х120х65 мм.

Подобрав состав раствора на сжимаемость, из него приготовляют пластичную, легко формируемую массу, из которой изготовляют шесть образцов-кубиков размером 200х200х200 мм. На поверхности каждого кубика по диагонали прочерчивают крест-накрест две линии длиной 100 мм и шириной 5 мм. Кубики сушат в течение восьми — десяти суток в помещении без сквозных ветров, а затем измеряют проведенные линии. Если длина линий сократилась на 10 мм, глина считается пригодной для изготовления кирпича. Сжимаемость глины допустима от 6 до 10 %. Чем меньше сжимаемость, тем лучше, и наоборот. Таким образом, в зависимости от сжимаемости глины и делают форму для изготовления кирпича (табл. 1).


Таблица 1. Размеры форм в зависимости от сжимаемости глины, мм


Сжимаемость, % Длина Ширина Глубина
5,0 263,0 125,0 68,4
5,5 264,0 126,0 68,7
6,0 265,0 127,0 69,2
6,5 267,0 127,0 69,3
7,0 268,0 128,0 69,8
7,5 270,0 129,0 70,2
8,0 271,0 130,0 70,6
8,5 273,0 135,0 71,0
9,0 274,0 131,0 71,4
9,5 276,0 131,5 71,4
10,0 277,0 132,0 72,2

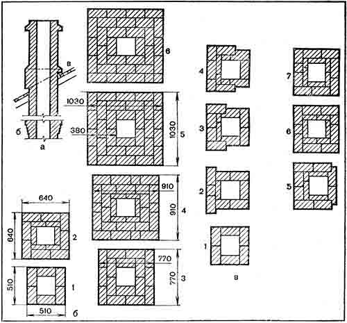
Определив по таблице сжимаемость глиняного раствора, приступают к изготовлению форм. Они бывают одинарные и двойные, с дном или без дна (рис. 3).


Рис. 3. Формы для изготовления кирпича:

а — двойная форма с дном; б — одинарная и двойная формы без дна (пролетки)


Формы изготовляют из строганых досок толщиной от 20 до 25 мм на гвоздях или шипах, но очень прочно. Для форм без дна желательно устроить поддоны, то есть доски нужной ширины, длиной на 50–60 мм больше длины формы. Для формовки сырца форму предварительно ставят на поддон.

Для работы необходим стол, рядом с которым ставят корыто (ящик) или кадку с мелким просеянным песком, который необходим для опудривания форм. Из опудренной формы легко вываливается сырец. Рядом на верстаке или столе находится для работы глина нужной пластичности, которая должна быть влажностью от 20 до 25 %. Меньшее количество влаги нежелательно, так как глину приходится дополнительно уплотнять.

До начала формовки сухую форму и поддоны смачивают водой, удаляют ее излишки и посыпают песком (опудривают). К сухим стенкам песок не пристает. Форму укладывают на поддон, берут руками большой ком глины и с силой бросают его в форму. Правильно подобранная глина при этом хорошо заполняет форму. Уплотнив глину, срезают ее излишки скребком или куском доски. Затем форму с поддоном относят на сушильную площадку, осторожно опрокидывают, вываливая отформованный сырец плашмя, и оставляют для просушки.

При укладке сырец ставят друг от друга на расстоянии не более 30 мм. Большее расстояние приводит к интенсивной сушке с образованием трещин.

Поэтому, как только сырец немного подсохнет (через 6–8 ч), его перевертывают и ставят на ребро, исправляют его плоскости и кромки, а затем во избежание появления трещин от неравномерной сушки его время от времени перевертывают на все стороны.

Площадку для сушки сырца готовят заранее. Ее устраивают на высоком месте, чтобы она не заливалась дождевой водой, выравнивают, посыпают слоем песка, который надо хорошо разравнять. Лучше устроить навес, а под ним стеллажи, подняв их от уровня земли не менее 500 мм. Доски стеллажей посыпают песком, разравнивают его и на него укладывают сырец. Освобождаемые от сырца формы вторично водой не смачивают, они влажные и к ним хорошо прилипает песок в процессе опудривания.

Просушив сырец до такой степени, пока он не станет жестким и не будет прилипать друг к другу, его укладывают в штабеля, ставя на ребро. Над штабелями следует устроить навес. На рисунке 4 показано четыре ряда укладки сырца. Последующие ряды укладывают в такой же очередности. Пятый ряд кладут, как первый, но только расстояние между рядами оставляют 15 мм, шестой ряд, как второй, с расстоянием между рядами 10 мм, седьмой ряд, как третий, с расстоянием между рядами 5 мм и т. д. Штабеля рекомендуется ставить высотой не более 1 м.


Рис. 4. Схема укладки кирпича для сушки


При правильной сушке брак не превышает 3 %. Большие потери сырца бывают при длительных ливневых дождях, когда штабеля открыты. В штабелях сырец досушивается до влажности 6–8 %.

Из сырца выкладывают русские печи, а под и иногда и свод — из обожженного кирпича. Обжиг кирпича требует соответствующих знаний, при отсутствии их чаще всего получается бракованный кирпич.

Печные приборы

Для отопительных печей и кухонных очагов (плит) необходимы печные приборы (гарнитура), обеспечивающие нормальную работу печей и уход за ними.

Печные приборы — это готовые металлические изделия: топочные, поддувальные и другие дверки, колосниковые решетки, колосники, дымовые задвижки, печные вьюшки, чугунные плиты, заслонки, духовые шкафы, водогрейные коробки и др.

Чугунные приборы более прочны, не прогорают, не ржавеют, меньше коробятся от высокой температуры и служат более длительное время.

Дверки и задвижки, а также вьюшки должны хорошо закрываться. Наиболее плотно закрываются герметические дверки. Дверки и ручки должны иметь плавный ход, без заедания, движок задвижек свободно перемещаться в пазах рамок.

Все печные приборы изготовляют по республиканским стандартам (РСТ), которые имеют свои размеры и сортимент. Например, по РСТ РСФСР 556—76 плиты чугунные цельные, с одной конфоркой изготовляют двух типов: длиной 210 мм и шириной 280 и 340 мм, а по РСТ УССР 1062—71 плиты с одной конфоркой изготовляют трех типов; длиной 470, 620 и 666 мм, соответственно шириной 270, 420 и 460 мм и т. д.

Некоторые приборы иногда приходится изготовлять застройщикам из соответствующей стали. Чаще всего это духовые шкафы, водогрейные коробки, заслонки, самоварники, коробочки для чисток, иногда и дверки.

Все рассматриваемые ниже приборы по своим размерам даются по РСТ РСФСР 556—76.

Дверки и полудверки подразделяются на топочные, поддувальные, прочистные и вьюшечные (рис. 5).

Топочные дверки служат для закрывания печи, загрузки топлива в печь и его перемешивания — шуровки при горении. В печах, не имеющих поддувала, топочные дверки используют для регулировки подаваемого в топливник воздуха, необходимого для горения топлива.

Каждая дверка состоит из рамки и полотна. Полотно крепят на двух петлях к рамке и закрывают ручкой за крючок, прикрепленный к рамке. Рамку любой дверки нужно прочно крепить в кладке печи. Изготовляют такие дверки обыкновенными и герметическими.

Обыкновенные дверки (рис. 5, а) изготовляют из чугуна или стали. Между полотном и рамкой возможны зазоры.


Рис. 5. Дверки и полудверки:

а — обыкновенная; б — герметическая; в, г — простые стальные


Герметические дверки (рис. 5, б) изготовляют только из чугуна. Они массивны, кромки рамки, соприкасающиеся с полотном, тщательно обрабатывают (припиливают и швабруют) для того, чтобы они как можно плотнее примыкали друг к другу. Полотно дверки плотно прижимается к рамке прижимным винтом, укрепленным в середине планки-щеколды, которую закладывают за крючок рамки. Герметическая дверка состоит из двух полотен: наружного и внутреннего, которое отражает тепло, предохраняя наружное от сильного нагревания, что особенно важно при топке печей каменным углем, так как от сильного нагревания наружное полотно может деформироваться.

Размеры топочных дверок обыкновенных: 294х270; 368х274; 224х270; 230х260; 224x220; 160x220 мм.

Размеры топочных дверок герметических: 280х305; 280х235; 255х255; 234х250 мм; духовочных — 202x300 мм.

Простые стальные дверки можно изготовить слесарным способом.

Полудверки бывают обыкновенные и герметические. Они имеют разное назначение и по размерам меньше топочных.

Поддувальную дверку (полудверку) ставят в поддувале или под колосниками. Ее назначение — подавать воздух к топливу во время его горения, а также для очистки зольника от золы. Полудверки бывают также вьюшечные размером 160х335 мм, через которые открывают и закрывают вьюшку на дымовом канале. Размеры полудверок обыкновенных: 160х270; 160х150; 170x170 мм; герметических — 280х170; 176х176; 160х170; 160х105 мм.

Прочистные дверки устанавливают в стенках печи или дымовой трубы. Они предназначены для очистки каналов печи или трубы от золы и сажи. Изготовляют размером 112x150мм.

Чистки-коробочки более практичны, чем дверки. Можно изготовить из кровельной стали таким же размером, как прочистные дверки, но весьма простой конструкции. Они состоят из рамки, в которую входит коробочка с ручкой (рис. 6). Внутреннюю часть коробочки заполняют куском кирпича на глиняном растворе. Кирпич берут толщиной, равной толщине стенки печи или дымохода. Можно обойтись одной коробочкой без рамки, вставляя ее в отверстие кладки и обмазывая глиняным раствором. Коробочки легко изготовить своими силами.


Рис. 6. Чистки-коробочки:

а — общий вид; б — коробочка, вставленная в кладку; 1 — рамка; 2 — коробочка; 3 — кирпич; 4 — печная кладка


Лапки к рамкам дверок (рис. 7) крепят для того, чтобы можно было прочно укрепить дверку в печной кладке. Для этой цели используют полосовую сталь, которую прикрепляют к двум сторонам дверок длиннее на 200–300 мм, и к ней приклепывают лапки или же эти полоски берут длиннее дверки на 400–500 мм, отгибают лапки и изгибают. Закреплять дверки проволокой непрактично.


Рис. 7. Крепление лапок к рамкам дверок:

а — лапки простые; б — улучшенные; 1 — лапки


Все стальные изделия с лицевой стороны (снаружи) покрывают огнеупорным лаком.

При изготовлении стальных изделий их размеры могут быть разными.

Задвижки печные служат для закрывания дымовой трубы после топки печи или переключения дымоходов в комбинированных печах. Задвижка (рис. 8) состоит из движка, который передвигается или ходит в пазах рамки. Рамку устанавливают в печной кладке и прижимают кирпичами. Изготовляют из чугуна шести размеров: 322x454; 266x396; 233х385; 302х345; 192х450; 192х340 мм. На ручках не должно быть заусенцев и острорежущих кромок, способных поранить руки. Между движком и рамкой бывают зазоры, что не обеспечивает плотного закрывания. Поэтому часто устанавливают не одну задвижку, а две (одну над другой).


Рис. 8. Задвижка печная:

а — рамка; б — движок


Вьюшка служит для той же цели, что и задвижка. Она состоит из рамки с отверстием и бортиками. Внутри отверстие закрывается блинком, а снаружи дополнительно верхней крышкой, которая захватывает бортики. Благодаря двойному затвору она плотно закрывается. Устанавливают вьюшку в специальном отверстии дымохода, которое с наружной стороны печи закрывают вьюшечной дверкой. Иногда ставят вьюшку, а над ней задвижку. Вьюшки изготовляют трех размеров, считая по квадрату рамки: 330х330; 280х280; 220x220 мм, имеющие соответственно отверстия 350, 280, 114 кв. см. Вьюшки изготовляют из чугуна и после отливки дополнительно обрабатывают, чтобы они плотнее закрывались.

Заслонку поворотную (баран) изготовляют из чугуна. Представляет собой вьюшку, крышка которой вращается на длинной оси с ручкой, выпущенной через кладку (рис. 9). Закрывают или открывают крышку ручкой, при этом не пачкаются руки. Регулировать тягу в печи такой заслонкой невозможно, к тому же она неплотно закрывается и через нее уходят из печи горячие газы. Изготовляют четырех размеров с диаметром в чистоте 150, 180, 200, 230 мм.


Рис. 9. Заслонка поворотная (баран)


Колосниковые решетки и колосники выполняют цельными из чугуна, а для топок больших размеров — в виде отдельных колосников. В цельных решетках имеются отверстия, через которые подается воздух к топливу. Укладывают решетки или колосники над поддувалом так, чтобы их прозоры или отверстия были направлены вдоль топливника (от дверки к задней стенке). На них кладут топливо. Воздух, проникающий через отверстия решеток или колосников к горящему топливу, обеспечивает его нормальное сгорание.

Колосниковые решетки изготовляют шести размеров: 380х252; 300х252; 250x252; 250x180; 140x180; 120х140 мм, имеют соответственное количество ребер: 13, 13, 13, 9, 9, 7.

Колосниковые решетки для угля изготовляют более массивными.

Отдельные колосники имеют на концах приливы и при укладке их один к другому между приливами образуются зазоры, через которые и проходит воздух.

Плиты (верхний чугунный настил) относятся к печным приборам, необходимым для оборудования кухонных очагов или плит. Изготовляют из чугуна в виде отдельных плит без конфорок, или отдельных составных плит с конфорками, или цельных плит с одним или двумя отверстиями для конфорок разного диаметра.

Конфорки состоят из нескольких отдельных чугунных колец, что дает возможность изменять размеры отверстия в плите в зависимости от использования посуды. Иногда эти плиты для усиления нагрева снабжают в процессе изготовления снизу ребрами. Часто с нижней стороны плит для придания им жесткости и лучшего нагрева делают борта или пояса шириной по 30 мм с отступом от краев плиты на 20 мм. При кладке печи плита должна ложиться на кладку так, чтобы эти борта не доходили до кирпича по всем сторонам минимум на 5 мм, что необходимо на расширение металла. Если же этого не сделать, то печная кладка будет расстраиваться.

Плиты без конфорок изготовляют размером 710х410 мм.

Составные плиты (настил) имеют длину 410, 530 и 660 мм при спаренной ширине 360 мм.

Плиты цельные с одним отверстием для конфорок размером 410x280 мм с конфоркой диаметром 184 мм и 410х340 мм с конфоркой диаметром 244 мм.

Плиты цельные с двумя отверстиями для конфорок размером: 585х340 с конфорками диаметром 244 и 184 мм; 710х410 с конфорками диаметром 244 и 184 мм, 760х456 с конфорками диаметром 304 и 244 мм.

Духовки печные, или духовые шкафы, представляют короб из черной листовой стали. К передней части его приклепывают или приваривают чугунную или стальную раму с откидной или двухстворчатой дверкой. Духовки применяют для выпечки хлеба, пирожков, запеканок и т. д. С внутренней стороны короба к его боковым стенкам крепят стальные уголки, по которым передвигают противни для выпекаемых изделий или решетки для сушки различных продуктов.

Элементы духовки соединяют заклепками, сваркой или фальцовым швом. Духовой шкаф вставляют или вмазывают в печную кладку кухонного очага или другой печи. Он нагревается с пяти сторон отходящими горячими дымовыми газами, которые быстро разрушают сталь. Поэтому толщина имеет определенное значение. Габариты духовки зависят от размера кухонного очага. Духовки изготовляют из листовой стали толщиной от 0,5 до 3 мм, длиной от 450 до 500 мм, шириной от 300 до 360 мм, высотой от 250 до 300 мм, а для очагов больших размеров — длиной свыше 500 до 550 мм, шириной свыше 360 до 420 мм и высотой свыше 300 до 650 мм. Допускаются отклонения ±5 мм. Наружные поверхности дверки покрывают термостойкими лаками и эмалями.

Водогрейные коробки служат для нагревания воды. Они состоят из самой коробки, разборного крана и открывающейся крышки, через которую в нее заливают воду. Изготовляют коробки из оцинкованной стали, из прочного алюминия и реже меди, луженной с внутренней стороны. Устанавливают коробку сбоку топливника и чаще всего за духовым шкафом, крепят в печной кладке неподвижно или вдвигают в стальной футляр, вставленный в кладку. Выдвижные водогрейные коробки удобны в эксплуатации и ремонте. Размеры водогрейных коробок зависят от габаритов печи, но наиболее распространены размером 400х190х420 мм.

Заслон печной, или заслонка, необходим для закрывания устья русских печей. Может быть чугунный, но чаще изготовляют из листовой черной стали толщиной от 0,4 до 1 мм. Форма и размеры по РСТ РСФСР 204—77: длина — 500 мм, высота — 350 мм с отклонениями ±10 мм. Верхние края заслонки закруглены, в середине имеется ручка (рис. 10, а). По форме заслонка напоминает очень пологую арку, выложить которую из кирпича много сложнее полуциркульной. Прежде всего следует сделать рамку нужной формы из угловой стали, а по ней заслонку. Поскольку от нагревания и остывания тонкая сталь сильно деформируется, надо прежде изготовить для нее каркас из угловой или полосовой стали, но такого размера, чтобы он свободно входил в дугу.


Рис. 10. Заслонки:

а — рекомендованная РСТ РСФСР 204—77; б — широко распространенная в старых печах; 1 — лапки из полосовой стали для установки заслонки; 2 — рамка из угловой стали 25х25х3 мм


В практике широко используют заслонку в виде полуциркульной арки, так как под нее гораздо проще выполнить арку устья (рис. 10, б). Внизу заслонки крепят лапки, чтобы последняя была устойчивее.

Самоварник служит для вставки в него самоварной трубы во время нагревания самовара. Часто отверстие самоварного канала закрывают прочистной дверкой. Иногда вместо дверки вставляют в отверстие кусок трубы диаметром не более 100 мм или изготовляют ее из листовой стали. Закрывают такой самоварник крышкой из листовой стали. Чем плотнее закрыт самоварник, тем меньше уходит тепла из помещения.

Флюгарки и дефлекторы бывают разных конструкций и служат для предохранения кирпичной кладки верхнего оголовка печной трубы от атмосферных воздействий, улучшения тяги дымовых газов и предохранения их от опрокидывания (дым обратно направляется в печь) во время ветреной погоды. Изготовляют их из листовой стали, желательно более толстой, что повышает срок службы.

При кладке новых печей может быть использована старая гарнитура при условии, что она находится в хорошем состоянии. Приборы, бывшие в употреблении, следует внимательно осмотреть; дефектные применять не следует, так как они быстро придут в негодность, потребуют замены, что вызовет переделку печи.

Инструменты и приспособления

От наличия нужного инструмента и приспособлений, от правильной организации труда зависит производительность труда, безопасность в работе и качество выполненных работ. Не все инструменты могут быть применены одновременно в печной кладке, в основном это зависит от сложности работ. Необходимый перечень инструмента и его назначение приведены ниже. Многие инструменты можно изготовить своими силами.

Инструменты

Печной молоток (рис. 11, а) выполнен из стали и закреплен на деревянной прочной ручке. Состоит из обушка квадратной формы и носка в виде лопаточки-кирочки. Она должна быть острой, что поможет хорошо отесать расколотый кирпич. В середине имеется отверстие для вставки ручки. Молоток служит для раскалывания, околки и грубой тески кирпича, разборки старой печной кладки, забивки гвоздей, прямления проволоки и т. д. Для начинающего печника достаточно одного печного молотка.


Рис. 11. Инструменты для печных работ:

а — печной молоток; б — кирочка; в — кельма; г — ватерпас


Кирочка (рис. 11, б) отличается от печного молотка тем, что оба ее конца (лопаточки-кирочки) острые. Один из концов несколько притупленный и пользуются им для предварительной грубой отески кирпича, другой конец более острый и им выполняют более тщательную и чистую отеску. Изготовляют также из стали с отверстием для крепления ручки.

Кельмы (рис. 11, в) — лопатки с полотнами разной формы. Начинающему печнику достаточно какой-то одной. Форма и размеры зависят от привычки.

Кельма служит для набирания и укладки раствора в печной кладке и срезания его излишков, выдавленных из швов и особенно растворов, содержащих известь или цемент. Многие печники глиняный раствор намазывают на кирпич руками, что часто приводит к травмированию их острыми песчинками или другими посторонними включениями, особенно при применении непросеянного раствора. Поэтому лучше пользоваться кельмой. К тому же ей удобно перемешивать раствор для придания ему полной однородности и густоты. Изготовляют кельму из крепкой листовой стали толщиной 1 мм.

Кисть мочальная необходима для затирки или швабровки поверхности печной кладки. С ее помощью удаляются шероховатости и излишки глиняного раствора и придается поверхности, особенно внутренней, более гладкий вид.

Кроме того, ее применяют для побелки печей и труб клеевыми или известковыми составами. Кисть закрепляют на ручке.

Прави́ло — толстая деревянная линейка, хорошо остроганная, лучше фугованная, длиной от 1500 до 2000 мм, сечением 30x40 мм. Применяют для проверки печной кладки и разбивки формы печей. Если нанести на нее углубленные сантиметровые деления, она заменит метр. Прави́ло желательно содержать в сухом виде, так как, намокая и высыхая, оно коробится, изменяет свою форму и теряет точность.

Для разбивки и проверки размеров печи и печной кладки используют стальной складной метр.

Весок необходим для проверки вертикальности печной кладки и ее размеров с помощью шнура. Это грузик цилиндрической формы, диаметром 15–20 мм, длиной 50–70 мм, с острым нижним концом и тупым верхним, с просверленными двумя отверстиями для закрепления прочного тонкого шнура длиной не более 5–6 м.

Уровень — точно выполненный деревянный, стальной или легкосплавный брусок, который может быть разной длины, со вставленными в него одним или двумя визирами — изогнутыми стеклянными трубочками, заполненными спиртом так, чтобы там был воздушный пузырек. При одном визире уровень применяют для горизонтальной и вертикальной проверки. Короткие уровни при проверке укладывают на прави́ло или приставляют к нему. Обращаться с уровнями надо осторожно, чтобы не сбить и не расколоть визиры. Стальные уровни желательно закрасить масляной краской, предохранив их от ржавления.

Ватерпас (рис. 11, г), часто называемый рейкой-отвесом, является простейшим уровнем. Изготовляют его из двух, точно отфугованных деревянных реек длиной 1000–1500 мм и 500–600 мм. Короткие врезают в длинные прямым шипом строго под прямым углом. Для прочности скрепляют подкосами. Установив ватерпас по уровню, по рейкам проводят риски, по которым вбивают шпильки. Они и будут указателем для веска при правильном положении ватерпаса. Весок на тонком прочном шнуре надевают на шпильки.

Угольник изготовляют из дерева длиной 1000–1200 мм с короткой стороной 500–600 мм. Необходим для проверки прямоугольности рядов кирпичной кладки и разбивки печи на фундаменте.

Деревянное весло применяют для перемешивания различных растворов. Длина его — от 1000 до 1500 мм.

Лопата деревянная в основном необходима для приготовления глиняного раствора (рубки глины). Длина бывает от 1500 до 1750 мм.

Для насыпания и перемешивания вяжущих и раствора, уборки мусора, рытья глины используют стальную лопату.

Нож или цикля для тески изразцов должны быть из крепкой стальной пластинки толщиной 1,5 мм, шириной 20–30 мм и длиной 200–250 мм. Одну сторону хорошо затачивают. Во время тески один острый конец, за который берутся руками, обертывают кожей, резиной или прочной тканью, чтобы не порезать руку.

Стукальце — отрезок круглой стали или трубы длиной 200–250 мм, диаметром 30–35 мм. Служит для нанесения ударов по ножу, заменяя молоток, который неприменим потому, что по ножу можно сделать промах и тем самым расколоть изразец.

Такие инструменты, как скарпель, кувалдочка, точильный камень, рашпиль, применяют по необходимости. Для кладки простых, необлицовываемых печей достаточно иметь печной молоток, кельму, весок, уровень, прави́ло, угольник и метр.

Приспособления

Без приспособлений невозможно вести работу. Для работы на высоте нужны подмости, для воды — ведро, для хранения и приготовления раствора — ящики и т. д.

Ящики бывают различных размеров, в зависимости от назначения. Изготовляют их из тонких досок (теса) или любого подходящего материала.

Для приготовления глиняного раствора нужны большие ящики размером 1500х1000х300 мм с четырьмя ручками, чтобы удобнее было их переносить. Для хранения глиняного раствора на рабочем месте можно применять ведро, но лучше ящик размером 800х500х300 мм.

Замачивать кирпич, особенно с применением рамок, лучше в ящике размером 600х300х300 мм или в какой-либо другой высокой емкости.

Сито необходимо для просеивания сухих материалов и раствора. Желательно иметь два сита: одно с ячейками сечением от 1х1 до 1,5х1,5 мм для просеивания песка и сухих вяжущих — цемента и гипса, другое сечением 3x3 мм для просеивания раствора и процеживания глиняного «молока». Сито натягивают на рамку того же размера, что и ящик.


Рис. 12. Приспособления:

а — рамка для переноса и хранения кирпича; б — козелок; в — специальная скамья; г — направляющие стойки


Рамки для подноски кирпича (рис. 12, а) могут быть из деревянных брусков или из стальной проволоки толщиной 5 мм. Размеры рамки 500х250 мм. Их применяют для подноски и хранения кирпича, одновременного смачивания нескольких штук в воде. Кирпич укладывают в рамку на ребро.

Подмости (рис. 12, б) — одно из необходимых приспособлений в работе. Лучше для этой цели изготовить нужное количество козелков высотой 1500 мм с перекладиной на половине высоты, на которую укладывают доски. Наиболее удобной высотой для кладки считается 600–800 мм над полом, то есть можно стоять на полу и выкладывать печь до этой высоты, затем требуются подмости. Подмости должны быть прочными, так как на них создается нагрузка не только от рабочего, но и от материала.

Если невозможно сделать козелки, то ставят стойки, а на них прогоны с прочным настилом.

Специальную скамью (рис. 12, в) с двумя полками, размером 1500х250х500 мм устанавливают на рабочем месте параллельно кладке на расстоянии 500–600 мм от нее. На верхнюю более толстую и прочную полку ставят воду, ящик с раствором, кирпич, мочальную кисть. Более легкая нижняя полка служит только для инструмента. Такое расположение создает определенные удобства в работе.

Направляющие стойки (рис. 12, г) изготовляют из точно отфугованных досок или брусков. В печных работах много времени отнимает проверка кладки по вертикали и горизонтали веском, уровнем, прави́лом, угольником. Если же установить направляющие по углам печи строго по веску и укрепить к полу и потолку планками так прочно, чтобы не сбить их во время работы, не потребуется такой операции, как проверка по вертикали. Если же на стойках разметить ряды кладки, нанеся риски и пропилив их пилой, то можно отказаться от горизонтальной проверки рядов кладки.

Подготовка к кладке печей

Общие сведения о кладке

Печную кладку надо выполнять очень прочно. Она должна иметь тонкие швы, вертикальные углы, горизонтальные ряды и гладкую поверхность.

Допускаются отклонения по вертикали на всю высоту печи не более 10 мм, неровности на лицевых сторонах печи — не более 5 мм, а облицованных изразцами — 2 мм.

Если под печь будет использован фундамент от старой печи, его обследуют и в случае необходимости ремонтируют. Когда строят новый фундамент, проверяют местоположение печи, ее разворот по отношению к стенам помещения, не мешают ли в этом случае потолочные балки или стропила для вывода трубы через перекрытие и крышу.

После проверки можно оставить печь в желаемом месте или перенести ее в такое место, чтобы не мешали ни балки перекрытия, ни стропила.

Форму и размер печи проверяют прави́лом, угольником, метром или шпагатом, натягиваемым по углам кладки (рис. 13). При раскладке подбирают кирпичи, проверяют, соблюдается ли перевязка швов, и учитывают их толщину. Только после этого весь ряд укладывают на растворе.


Рис. 13. Проверка закладки первого ряда кладки печи


Кладку проверяют по горизонтали, вертикали и боковым сторонам. Этого требует каждый ряд, на что затрачивается много времени (рис. 14).


Рис. 14. Проверка выполненной печной кладки


Хорошо класть печи в направляющих стойках, но еще лучше в передвижной опалубке-ящике без дна, который движется в стойках, установленных строго вертикально. Стойки и ящик должны быть тщательно выстроганы, чтобы по ним легче передвигалась опалубка. Ее можно сделать на один или несколько рядов кладки. Как только она будет заполнена кирпичной кладкой, ее поднимают на нужную высоту и закрепляют (рис. 15).


Рис. 15. Кладка печи в подвижной опалубке


Толщина швов печной кладки, выполненной из обыкновенного или красного кирпича, должна быть не более 3–5 мм, а из тугоплавкого и огнеупорного кирпича — 3 мм.

Толщина швов кладки труб на известковом или сложном растворе допускается до 10 мм.

Во всех случаях кладки горизонтальные и вертикальные швы должны быть полностью заполнены раствором. Через, толстые незаполненные швы легко вылетают искры, что может привести к пожару. Кроме того, в толстых швах часто образуются трещины, сквозь которые проникает в печь или дымовые каналы холодный воздух, охлаждающий горячие газы, нарушает тягу и образует дымление. По ходу кладки внутренние и наружные поверхности очищают от излишне выдавленного раствора, который снимают руками или кельмой, а внутренние поверхности топливников и каналов швабрят (протирают) мочальной кистью или мокрой тряпкой. Обмазывать глиняным раствором топливники и каналы категорически запрещается, так как он быстро отваливается и засоряет каналы.

Внутренние поверхности печей: дымовые каналы, топливники, трубы — следует выполнять как можно ровнее, без выступов, впадин и других неровностей, которые препятствуют хорошему движению газов и ухудшают работу печи. Все повороты и углы в каналах надо обязательно закруглять, а сужение или расширение кладки делать плавным, что повышает тягу.

Колосниковые решетки следует располагать ниже топочного отверстия на один-два ряда кладки (70-140 мм) с зазором между решеткой и кладкой по всему периметру не менее 5 мм. Если этого не сделать, то при нагревании расширяющийся металл расстроит кладку. Колосниковые решетки к тому же должны укладываться с наклоном в сторону дверки на 20–30 мм, что обеспечивает скатывание несгоревшего топлива от задней стенки на решетку. Прорези решетки всегда располагают вдоль топливника.

Плиты чугунные цельные или из отдельных элементов, применяемых в кухонных очагах или плитах, надо укладывать на тонком слое глиняного раствора по уровню.

Кирпич для кладки печи следует отсортировать. Самые хорошие кирпичи без трещин и отколотых мест применяют для топливников, дымовых каналов и сводов печи. Толщина кирпича должна быть одинаковой, что дает возможность получить самые тонкие швы.

Запрещается сколотую или стесанную сторону кирпича обращать внутрь топки или каналов, так как они менее прочны и от высокой температуры будут разрушаться, что пожароопасно.

Кладка печей способом замораживания запрещается. В холодное, особенно в зимнее, время растворы или материалы для их приготовления должны иметь температуру не ниже плюс 5 °C. Брать руками холодный раствор запрещается.

После кладки печь следует хорошо высушить естественным или искусственным путем. В процессе сушки все задвижки и вьюшки, а также форточки должны быть открыты круглые сутки. На такую сушку требуется примерно десять — двенадцать суток.

При искусственной сушке печь протапливают сухим топливом: стружкой, соломой, щепой, мелко колотыми дровами.

Первая закладка топлива не должна превышать 20–25 % от того количества, которое необходимо для нормальной топки. Для второй топки количество топлива повышают до 30–40 %, для третьей — до 60–70 % и т. д., то есть до полной нормы. После каждой топки все приборы печи открывают, температура наружной поверхности печи должна не превышать 50–60 °C.

Сушка считается законченной, когда на поверхности печи перестанут появляться сырые пятна, а на задвижке или вьюшке следы конденсата (воды).

Как известно, кирпич является основным материалом для кладки печей. Он состоит из шести сторон, каждая из которых имеет определенное название. Две самые большие поверхности кирпича — постели бывают нижней или верхней (при кладке находится вверху). Оставшиеся четыре стороны носят название граней. Из них две большие называются ложковыми и две малые — тычковыми. Острые ребра, образуемые гранями, — усенки. В зависимости от укладки кирпича ряды кладки в дальнейшем будут называться ложковыми или тычковыми.


Рис. 16. Кирпич и его части:

а — наименование граней кирпича; б — целый; в — трехчетверка; г — половинка; д — четверка; 1 — тычковая грань; 2 — верхняя постель; 3 — ребра (усенки); 4 — ложковая грань


Для перевязки швов и в зависимости от размера печи приходится применять целый кирпич и его части (рис. 16), при этом кладут кирпич по-разному (рис. 17).


Рис. 17. Укладка кирпича:

а — плашмя в полкирпича; б — на ребро в четверть кирпича; в — стоймя; г — хорошая перевязка швов


Стенки печи выкладывают разной толщины. Чтобы получить тонкие стенки, кладку выполняют на ребро или в четверть кирпича (рис. 18, а). Широко распространена кладка в половину кирпича, то есть с укладкой его плашмя (рис. 18, б). Такую же толщину кладки можно получить из двух четверок, укладывая кирпич на ребро (рис. 18, в). Кладку в три четверти кирпича выполняют в половину и в четверть кирпича, то есть на ребро (рис. 18, г).


Рис. 18. Печная кладка стенок разной толщины:

а — в четверть кирпича; б — в полкирпича (ложком); в — в полкирпича в две четверти; г — в 3/4 кирпича (полкирпича на ребро); д — в полкирпича (2/4 с полным перекрытием швов); е — в целый кирпич; ж — устройство замков в кладке


Кладку в половину кирпича с полным перекрытием швов ведут из двух четверок на ребро, но так, чтобы один ряд кладки находился на 5–6 см выше другого и швы одного ряда не совпадали со швами другого (рис. 18, д).

Стенки в один кирпич кладут поочередно из тычковых рядов, когда кирпичи уложены поперек стенки, и ложковых, когда кирпичи укладывают вдоль стенки. Для перевязки швов применяют трехчетверки (рис. 18, е).

Нередко внутри печей при устройстве дымовых каналов или для других целей кирпич укладывают на стальные полосы. В этом случае вставка металла нежелательна: расширяясь больше кирпича, металл разрушает кладку. Чтобы избежать этого, стальные полосы иногда кладут свободно, не закрывая их.

Во всех случаях при кладке стенок внутри печи их лучше всего крепить с наружными стенками «в замок». Это прочно и надежно (рис. 18, ж).

Каждый ряд кладки следует выполнять так, чтобы он перевязывался в швах половиной кирпича, а там, где применяют трехчетверки и половинки, допускается минимальная перевязка в четверть кирпича.

Размещение печей и определение их размеров

Размещение печей

Прежде чем приступить к кладке печи, необходимо определить ее место в помещении. В любом здании печей и дымоходов должно быть как можно меньше, особенно в зданиях с внутренними стенами, в которых нельзя устраивать дымоходы.

Отопительные печи чаще всего подвигают ближе к капитальной внутренней стене и одновременно к входной двери, чтобы не носить топливо через всю комнату. Печи располагают ближе к углу помещения. Однако их устанавливают так, чтобы все поверхности могли отдавать тепло помещению и была возможность свободно осматривать печи и систематически убирать пыль. Чтобы не делать длинных перекидных рукавов для отвода дымовых газов, не следует ставить печь далеко от капитальной стены с дымоходами. Устанавливать их надо с открытыми отступками шириной не менее 150–200 мм. Закрытая отступка с вентиляционными отверстиями нежелательна, потому что примыкающая к стене стенка не отдает тепло, а собирающуюся пыль невозможно удалить.

Размещать печь в средней части стены нежелательно, так как она займет значительную часть полезной площади.

Установка в каждой комнате отдельной печи имеет свои преимущества, так как в теплое время не приходится топить все печи, а топят только те, которые необходимо.

При коридорной планировке здания можно одну печь размещать так, чтобы она отапливала два соседних помещения и выходила топкой в коридор. Вместо коридора одной печью можно одновременно отапливать три комнаты. На рисунке 19 показан вариант размещения угловой и прямоугольной печей, отапливающих три комнаты.


Рис. 19. Установка угловой и прямоугольной печей, отапливающих три комнаты


В квартире для одной семьи желательно класть одну печь на две комнаты.

При всех случаях следует помнить о том, чтобы теплоотдача печей распределялась пропорционально теплопотерям каждого помещения.

Вариант размещения печи для отопления четырех комнат показан на рисунке 20. Такая печь имеет большие размеры и занимает много места. Кроме того, ее стенки выделяют тепло пропорционально потерям каждой комнаты. В этом случае две комнаты проходные.


Рис. 20. Установка одной печи для отапливания четырех комнат


В деревянных зданиях ограничен выбор мест установки печей. Там приходится применять насадные трубы. Печи с насадными трубами удобно размещать в любом месте, но следует предусмотреть, чтобы труба не попадала на балку перекрытия и стропила. Насадные трубы ставят только на массивных толстостенных печах. Тонкостенные печи в целях противопожарной безопасности не рекомендуется строить с насадными трубами.

Коренные трубы необходимы для отвода дымовых газов от кухонных очагов и одновременно дымовых газов от отопительных печей. Для этого в коренной трубе делают нужное количество вертикальных дымовых каналов, так называемых стояков (рис. 21).


Рис. 21. Подключение печей к коренной трубе:

1 — печи; 2 — коренная труба; 3 — вентиляционный канал; 4 — дымовые каналы


Рис. 22. Установка печей в комнатах дома и их подбор на теплоотдачу:

1, 2 — комнаты; 3 — кухня; 4 — прихожая


Рассмотренный вариант показывает целесообразность возведения коренной трубы в доме с тремя-четырьми комнатами.

Если в доме несколько комнат, каждую из которых занимает отдельная семья, желательно ставить столько печей, сколько имеется комнат.

Когда предусматривается кухня-столовая, то целесообразнее класть комбинированные отопительно-варочные печи с обязательным устройством вентиляции. Вообще надо всегда предусматривать вентиляцию комнат, кухни, санузла через вытяжные каналы, которые располагают рядом с дымоходами. Вытяжные каналы, нагреваясь от дымоходов, тем самым способствуют более интенсивной вентиляции. Для строительства индивидуальных домов имеется множество типовых проектов, в которых тщательно разработаны и подобраны всевозможные печи и указаны места их расположения.

Определение размеров печей

Размеры печей определяют или их подбирают на основании расчета теплопотерь отапливаемых помещений. Точный расчет теплопотерь сложен и его выполняют по специальному методу и имеющимся нормам, которые предусматривают, что теплоотдача печи при двух топках в сутки может быть на 15 % больше или меньше теплопотерь помещения.

При расчете отопления необходимо знать теплопотери всех видов конструкций дома: стен, дверей, оконных проемов, перекрытий, материалов, из которых сделаны стены, высоту, наружную температуру воздуха и др. При неправильном расчете или выборе печи она будет или много выделять тепла, или наоборот. Правильно выбранная печь должна соответствовать средней часовой теплоотдаче и такой же часовой теплопотере. Таким образом, количество теряемого помещением тепла должно соответственно возмещаться теплом, выделяемым печью.

Рассмотрим самые простейшие и приближенные способы определения размеров печей.

Пример 1. Зеркало печи, выходящей в отступку, дает в 2 раза меньше тепла, щитки от плиты — в 1,5 раза меньше, чем печи, поэтому их поверхность должна быть в 2–2,5 раза больше указанных данных


Размер площади помещения при высоте помещения 3 м, кв. м Поверхность печи в зависимости от размера помещения и температуры наружного воздуха (—25 °C), кв. м
неугловое с одним углом с двумя углами прихожая
8 1,25 1,95 2,10 3,40
10 1,50 2,40 2,60 4,50
15 2,30 3,40 3,90 6,00
20 3,20 4,60 5,20
30 4,60 6,90 7,80

Пример 2. В этом расчете печи подбирают по кубатуре здания, которую определяют по наружному периметру с последующим умножением на 21. Это число является количеством тепла в килокалориях, требуемых для обогрева 1 куб. м здания до температуры плюс 18 °C и при наружной температуре воздуха до минус 30 °C.

По вышеприведенным данным находят потребную теплоотдачу печи.

В нашем случае имеется дом размером по наружному обмеру 6,6x7,4 м, высота помещения 3 м. Стены кирпичные, толщиной 540 мм. В доме имеются две жилые комнаты 1, 2, кухня 3 и прихожая 4 (рис. 22).

Рассмотрим подбор печи для кухни и прихожей:

объем кухни 54,39 куб. м. (3,7х4,0х3,0)

объем прихожей 18,87 куб. м. (3,7х1,7x3,0)

Всего 73,26 куб. м.

Рассчитаем теплоотдачу печи: 73,26х21=1538 ккал/ч.

Каждый квадратный метр зеркала печи излучает в среднем 300 ккал/ч. Для определения площади нагрева печи необходимо 1538 ккал/ч разделить на 300, получаем 5,1 кв. м. Эту цифру можно округлить до 5 кв. м или повысить до 5,2–5,4 кв. м.

Чтобы найти размеры печи, следует имеющуюся площадь зеркал печи разделить на активную высоту печи, то есть ту высоту, которая нагревается. В данном случае она равняется 2,2 м. После деления площади зеркала печи на ее высоту получаем периметр печи 5,1:2,2=2,3 м (округленно 2,5 м).

Полученный периметр печи делим на два и получаем две стороны печи, то есть длину и ширину, вместе взятые они будут равны 1,15 м (2,3:2). Если ширина печи 510 мм, то ее длина должна быть 640 мм, а в плане 510x640 мм.

Таким образом, воспользовавшись этим примером, можно подобрать размер печи для любого помещения. Необходимо указать, что кроме печи в кухне имеется плита, которая может выделять при двух топках в сутки от 600 до 900 ккал/ч.

Конечно, вместо печи можно поставить к плите отопительный щиток, работающий от плиты, выделяя до 1200 ккал/ч. Имеются щитки с плитой и с отдельной топкой, тогда их теплоотдача еще выше.

Если печь ставят в районах, где наружная температура в зимнее время достигает минус 50 °C, можно рассчитать размер печи по третьему примеру.

Пример 3. Рассмотрены дома из разных материалов с различной минусовой температурой. Как было сказано выше, расчеты теплопотерь помещением весьма сложны и в данном случае они даются приближенно.

Из данных таблицы 2 видно, что теплопотери стен при различной температуре неодинаковы.

Поэтому при расчетах (свыше —31 °C) на каждые два градуса прибавляются три единицы.


Таблица 2. Удельные теплопотери для основных охлаждающихся поверхностей в жилых зданиях


Вид стен и охлаждающиеся поверхности Количество теряемого тепла (ккал/ч) через 1 кв. м поверхности по ее внутреннему обмеру при средней температуре наиболее холодной пятидневки
24—25 °C 26—27 °C 28—29 °C 30—31 °C
Кирпичная стена толщиной в 3,5 кирпича (93 см), оштукатуренная с двух сторон
Первый этаж и одноэтажные здания:
помещения угловые 53 57 60 61
помещения, смежные с другими 48 51 53 55
Верхний и промежуточные этажи:
помещения угловые 47 50 53 54
помещения, смежные с другими 43 45 47 48
Кирпичная стена толщиной в 3 кирпича (80 см), оштукатуренная с двух сторон
Первый этаж и одноэтажные здания:
помещения угловые 57 61 64 65
помещения, смежные с другими 55 58 61 62
Верхний и промежуточные этажи:
помещения угловые 53 56 59 60
помещения, смежные с другими 49 52 54 55
Кирпичная стена толщиной в 2,5 кирпича (67 см), оштукатуренная с двух сторон
Первый этаж и одноэтажные здания:
помещения угловые 65 71 74 76
помещения, смежные с другими 64 69 71 73
Верхний и промежуточные этажи:
помещения угловые 60 64 67 68
помещения, смежные с другими 57 61 64 65
Кирпичная стена толщиной в 2 кирпича (54 см), оштукатуренная с двух сторон
Первый этаж и одноэтажные здания:
помещения угловые 78 83 87 89
помещения, смежные с другими 77 82 86 87
Верхний и промежуточные этажи:
помещения угловые 70 75 78 80
помещения, смежные с другими 68 74 76 78
Деревянная рубленая стена из бревен толщиной 20 см, с односторонней штукатуркой
Первый этаж и одноэтажные здания:
помещения угловые 67 71 75 76
помещения, смежные с другими 65 69 72 74
Верхний и промежуточные этажи:
помещения угловые 59 64 67 68
помещения, смежные с другими 57 62 64 66
Деревянная рубленая стена из бревен толщиной 25 см, с односторонней штукатуркой
Первый этаж и одноэтажные здания:
помещения угловые 52 56 58 60
помещения, смежные с другими 51 54 57 58
Верхний и промежуточные этажи:
помещения угловые 47 50 52 53
помещения, смежные с другими 45 48 50 51
Деревянная брусковая стена с односторонней штукатуркой общей толщиной 12 см
Первый этаж и одноэтажные здания:
помещения угловые 75 80 84 86
помещения, смежные с другими 73 78 82 84
Верхний и промежуточные этажи:
помещения угловые 67 71 74 76
помещения, смежные с другими 65 70 73 75
Деревянная брусковая стена с односторонней штукатуркой общей толщиной 20 см
Первый этаж и одноэтажные здания:
помещения угловые 47 50 52 53
помещения, смежные с другими 46 49 51 52
Верхний и промежуточные этажи:
помещения угловые 42 45 46 47
помещения, смежные с другими 41 44 46 47
Окна с двойным остеклением (переплетами) и балконные двери 100 108 112 115
Двери сплошные деревянные двойные 175 187 195 200
Чердачное перекрытие 26 28 29 30
Деревянные утепленные полы над подвалом или подпольем 19 21 22 23

Примечание. При определении теплопотерь через поверхности, выходящие в неотапливаемые помещения, количество тепла, приведенное в таблице, умножают на 0,7, если последние выходят наружу (неотапливаемые лестничные клетки), и на 0,4, если неотапливаемые помещения не имеют указанного сообщения.


Если при этом теплоотдача печи и будет немного выше, то в этом нет большой ошибки.

Следует напомнить, что в примере подбора печей по этой таблице опущена проверка на амплитуду колебания и другие данные.

Пример 4. Рассмотрим способ определения тепловых потерь и подбор печи для одноэтажного рубленого дома из бревен толщиной 25 см, с односторонней штукатуркой, деревянными перегородками, оштукатуренными с двух сторон, с полом, утепленным над подвалом, окном из двух остекленных переплетов (двойное остекление). Комната угловая площадью 9 кв. м. Внутренний размер комнаты: высота — 3 м, длина каждой стены — 3, ширина окна — 1, высота его — 1,7 м.

Удельные теплопотери на 1 кв. м поверхности, согласно данным таблицы, составят в данном случае: для деревянной стены рубленой толщиной 25 см, оштукатуренной в угловых помещениях, — 52 ккал/ч на 1 кв. м, для окна с двойным остеклением — 100 ккал/ч на 1 кв. м, для чердачного перекрытия (потолка) — 26 ккал/ч на 1 кв. м, для утепленного пола — 19 ккал/ч на 1 кв. м.

Охлаждающие поверхности:

наружные стены (две) (3,0+3,0)х3,0―1,7=16,3 кв. м.

пол 3,0х3,0=9,0 кв. м.

потолок 3,0х3,0=9,0 кв. м.

окно 1,0х1,7=1,7 кв. м.

Общие теплопотери комнаты составят, ккал/ч:

через наружные стены 16,3x52=848;

через пол 9,0х19,0=171;

через потолок 9,0х26=234;

через окно 1,7х100=170;

Всего 1423.

Для такого расхода тепла нужна печь с теплоотдачей 1500 ккал/ч или несколько большая. Может быть принята печь отопительная, прямоугольная оштукатуренная, размером 510х770 мм, с теплоотдачей при двух топках в сутки 1760 ккал/ч (см. соответствующий раздел). Если эта печь будет отстоять всеми своими стенками от стены или перегородки и они будут полностью отдавать тепло, то она несколько больше допустимых процентов, указанных в нормах. Когда одна стенка или будет выходить в другое помещение (комнату), или же иметь небольшую отступку от перегородки, то печь полностью отвечает расчету. Напоминаем, что у этой печи передняя и задняя стенки выделяют по 340 ккал/ч, а левая и правая — по 540 ккал/ч.

Колка и теска кирпича

В процессе кладки кирпич приходится уменьшать в размерах или придавать какую-то форму, например клиновидную, для кладки свода или стесывать одну сторону для пят.

Бывает, что кирпич требует закругления для кладки дымовых каналов, что обеспечивает лучшее движение газов, улучшая тем самым работу печи. Колка и теска кирпича приобретаются практикой. Чем чище отесан кирпич, тем лучше.

Нормально обожженный кирпич колят без насечки, а прямо по намеченной линии. Слабо обожженный кирпич с волосяными трещинами требует насечки, по которой затем и выполняют колку.

Насечку делают по всему периметру раскалываемой части глубиной до 5 мм. Во время раскалывания кирпич берут поперек левой рукой, правой держат молоток или кирочку и наносят в нужное место достаточно сильный удар, чтобы расколоть его. При этом лезвие молотка или кирочки должно быть направлено под прямым углом по отношению к кирпичу или линии раскалывания. Косой удар часто приводит к произвольному раскалыванию. Кирпич раскалывается одним ударом или несколькими, нанося один удар сильнее другого, пока кирпич не расколется. Во время раскалывания кирпич держат или по середине линии, или за большую его часть. Правильное и неправильное раскалывание кирпича показано на рисунке 23, а, б. Раскалывание кирпича вдоль показано на рисунке 23, в. При теске кирпича его берут левой рукой, которая должна опираться на левую ногу, немного выше колена, нога находится в полусогнутом положении. Сторона отески повернута к лицу. Сперва выполняют грубую отеску более тупым концом с нанесением более сильных ударов инструментом, а затем острым концом наносят частые несильные удары (рис. 23, г). Колка кирпича показана на рисунке 23, д.


Рис. 23. Колка и теска кирпича:

а — правильная колка поперек; б — неправильная колка поперек; в — колка вдоль; г — рабочее положение при теске; д — рабочее положение при колка

Приемы кладки

Чтобы получить красивую кладку и ускорить работу, кирпич следует предварительно разложить по месту его нахождения с таким расчетом, чтобы шов между кирпичами был 3–5 мм.

В процессе кладки кирпичи поочередно или все сразу снимают, укладывают рядом, а затем по одному, смочив в воде, кладут на глиняном растворе на место.

При расстилании раствора рукой печник все время ощущает его качество, особенно если он не пропущен через сито, дополнительно его переминает, перемешивает и удаляет все обнаруженные камешки. В этом определенное преимущество. Однако при этом возможны и ранения руки острыми песчинками.

Во время работы кельмой последняя предохраняет руки от ранения, но в то же время не дает возможности почувствовать различные камешки и песчинки. А это приводит к тому, что уложенный кирпич приходится снимать со своего места, удалять из раствора посторонние предметы и повторять укладку. Правда, кельмой можно сразу наложить и расстелить раствор на несколько кирпичей.

Наносят и расстилают раствор так. Левой рукой снимают уложенный насухо кирпич. Затем правой рукой забирают горсть раствора и переносят его на место укладки, двигают рукой по постели кирпича, уложенного в кладку, и пальцами разравнивают и размазывают раствор равномерным слоем нужной толщины (рис. 24, а).

Находящийся в левой руке ранее снятый с места укладки кирпич погружают на несколько секунд в воду. На вертикальную грань накладывают немного раствора, чтобы образовать вертикальный шов, укладывают его на место, сильно прижимают его одной или двумя руками и притирают к раствору, двигая взад и вперед, получая тем самым тонкий шов.


Рис. 24. Укладка кирпича на раствор:

а — наложение и разравнивание рукой глиняного раствора; б — хватка кирпича для укладки; в — подгребание раствора ребром; г — прижатие кирпича на место с выдавливанием раствора


Кладку можно вести и не накладывая раствор на тычковую грань для вертикального шва. Делают это так. Как только кирпич вынут из воды, его кладут на раствор не горизонтально, а немного приподняв заднюю сторону и опустив переднюю на раствор для того, чтобы при движении вперед тычковая грань набрала на себя раствор и подвинула его к ранее уложенному кирпичу. Кирпич плотно прижимают, придвигая вперед и выдавливая при этом излишки раствора (рис. 24, б, в, г). Выжатый из швов раствор тут же убирают, снимая его сразу двумя руками.

Некоторые печники намазывают раствор не на то место, откуда был снят кирпич, а на укладываемый кирпич, только что вынутый из воды. Работу выполняют так, как это рассмотрено выше.

Когда раствор накладывают и расстилают кельмой, то его забирают в нужном количестве, укладывают горкой в нужном месте, разравнивают, вынимают кирпич из воды, кладут на его торцевую грань раствор и укладывают так же, как это было описано выше. Накладывание раствора кельмой показано на рисунке 25.


Рис. 25. Работа кельмой:

а — наложение раствора с предварительным расстиланием (разравниванием); б — выравнивание раствора по краям кладки; в — разравнивание


Кирпич должен укладываться быстро, так как раствор, обезвоженный кирпичом, густеет и его невозможно тонко разровнять. Сильно мочить кирпич нельзя, потому что придется очень долго сушить печь.

Смачивать в воде красный кирпич следует 5-10 с, то есть до тех пор, пока пузырьки воздуха перестанут выделяться из воды. Алый кирпич мочить нельзя, так как он размокает и разламывается.

Не следует применять густой глиняный раствор, так как выдавить его излишки и получить тонкий шов практически невозможно. Раствор должен быть настолько жидким, чтобы при незначительном нажиме на кирпич во время кладки излишки его легко бы выдавливались из швов.

В печной кладке применяют различные виды швов на глиняном растворе (рис. 26). Если кладка будет оштукатуриваться, то для лучшего удержания раствора штукатурки швы оставляют незаполненными или впустошовку, если без оштукатуривания, швы заполняют полностью и раствор сравнивают в одной плоскости с кладкой. Такая кладка называется вподрезку.


Рис. 26. Разновидности швов:

а — впустошовку; б — вподрез; в — расшитый выпуклый; г — расшитый вогнутый


Трубы выше крыши кладут на более прочных растворах: известковых, сложных и цементных. Швы можно расшивать специальным инструментом, придавая им выпуклую или вогнутую форму. Такие швы украшают кладку и поэтому часто применяются при строительстве стен домов.

Кладка фундаментов под печи и трубы

Фундамент выкладывают на хорошем основании из прочных материалов: бутового камня, известняка, железняка или бетона.

Печи массой не более 750 кг разрешается устанавливать на полу при условии, что он достаточно прочен и доски при хождении не прогибаются. Но лучше устанавливать печи на отдельном для них фундаменте.

Печи массой свыше 750 кг обязательно требуют устройства отдельного прочного фундамента. Если грунт сырой, следует применять кирпич-железняк, так как обычный кирпич может от сырости разрушиться. Можно часть фундамента, находящегося в сыром грунте, выложить из бутового камня на 150–250 мм выше уровня земли, выровнять его, устроить гидроизоляцию и остальную часть класть из кирпича.

Точно из таких же материалов строят фундаменты под дымовые трубы.

Размеры фундаментов в плане шире основания печи или трубы минимум на 5 см во все стороны.

По размеру фундамента выкапывают яму, глубина которой зависит от плотности грунта. При достаточно прочном грунте ее глубина может быть от 0,2 до 0,5 м.

Выкопав яму, дно ее выравнивают по уровню, а если грунт слабый, то хорошо уплотняют тяжелой трамбовкой. Только после этого приступают к кладке.

Первый ряд выполняют из битого (мелкого) камня или кирпича насухо, то есть без раствора, уплотняя его ударами трамбовки. Тщательно уплотненные камни заливают жидким раствором (прыском). Только после этого начинают основную кладку, используя цементный раствор состава 1:3–1:6.

Для экономии цемента применяют сложные или смешанные растворы. Под фундаменты их составляют в соотношении 1:2:8 или 1:1:9, то есть на одну часть цемента берут от одной до двух частей известкового теста и восемь или девять частей песка. Прочность раствора определяют его маркой на сжатие. В печных работах применяют растворы не очень больших марок — от 10 до 25 кгс/см2.

Кладку ведут так. Лицевые (наружные) стороны фундамента выкладывают на густом растворе, с тщательной перевязкой швов. Внутрь этой кладки наливают жидкий раствор — прыск и укладывают в него сплошным слоем камни разных размеров и заливают их также прыском. Можно всю кладку вести на густом растворе с тщательным соблюдением перевязки швов.

Кладка из кирпича проще, из бутового камня — сложнее. Камни подбирают одинаковой толщины, но размер может быть разный. Это дает возможность выполнять более прочную кладку с лучшей перевязкой швов.

На прочность кладки влияет также постелистость камней, то есть они должны быть как можно ровнее. Поэтому некоторые камни приходится обкалывать, удаляя слабо держащиеся места. В процессе кладки неровности между камнями заполняют отколотыми частями (околышами).

Укладываемые на раствор камни необходимо осаживать, нанося по ним удары тяжелым молотком или кулачком массой от 1,5 до 2 кг.

Чтобы добиться хорошей перевязки камней между собой, что увеличивает прочность кладки, укладываемые камни или кирпичи чередуют ложками и тычками.

Кладку можно выполнять по шнуру, в опалубке или между стенками вырытой ямы.

Кладка любого фундамента заканчивается ниже уровня чистого пола на 140–150 мм, то есть на два ряда кирпичной кладки.

Когда фундамент кладут из камня, то поверхность фундамента тщательно проверяют прави́лом с уровнем и выравнивают цементным раствором. Затем на эту кладку укладывают один ряд кирпича как можно ровнее, даже, если можно, выравнивают цементным или сложным раствором. На этот ряд кладут в два слоя гидроизоляцию из толя или рубероида. Много лучше эти материалы уложить не насухо, а на мастике (рубероид — на битумной, толь — на дегтевой). Сверху гидроизоляции укладывают второй ряд кирпичной кладки, и она практически доходит до уровня чистого пола. Выше кладут саму печь.

Когда фундамент кладут из кирпича, то также делают на его предпоследнем ряду гидроизоляцию, по которой выполняют последний ряд кирпичной кладки.

Гидроизоляция предохранит печь в целом от подсасывания грунтовой воды, от которой печь будет парить, а кирпич постепенно разрушаться. От влаги в доме будет большая сырость.

Выкладывая фундамент печи, следует помнить, что запрещается перевязывать его с фундаментом стен дома, так как происходит разная осадка стен и печи, фундамент может перекоситься и расстроить кладку. Фундамент печи должен отстоять от фундамента дома минимум на 50 мм. Промежуток между ними засыпают песком. Фундаменты под печи и коренные трубы должны выполняться независимо друг от друга.

Выполнив фундамент, пространство между ним и грунтом засыпают и хорошо трамбуют, применяя ранее вынутый грунт или песок.

В зданиях с глубоким подпольем фундамент под печи часто устраивают на опорах в виде срубов, ряжей, заполненных внутри песком или шлаком или же оставленных открытыми. Засыпка предохраняет внутреннее пространство дома от проникновения в него холодного (возможно сырого) воздуха.

Для сруба или ряжа следует применять сухие, хорошие бревна или брусья из сосны, ели и других хвойных пород. Из лиственных желателен дуб.

Сперва выполняют сруб нужной высоты. По срубу выбирают грунт на нужную глубину и выкладывают из бутового камня кладку такой высоты, чтобы она была выше уровня земли не менее 25 см. Кладку выравнивают по уровню раствором, укладывают двухслойную изоляцию и только на нее укладывают первый венец сруба. Сруб также не доводится до уровня пола на два ряда кладки, на него настилают доски толщиной 40–50 мм, по которым кладут кирпич.

Кладка арок и сводов

При кладке печей часто приходится перекрывать различные топочные отверстия, топливники и всевозможные камеры, применяя перемычки простой и сложной формы.

Перекрытие в стене называется аркой или арочной перемычкой, а перекрытие, устраиваемое между стенами, — сводом.

Количество кирпичей в арке и рядов в своде должно быть нечетным. Средний нечетный кирпич замковый. В практике встречается и четное количество, правда, очень редко, тогда замковыми будут два кирпича. Кирпичи, на которые опирается перемычка, называются пятами, и им всегда придается нужная форма соответствующей обработкой. Пространство, перекрываемое любой перемычкой, называется пролетом. Необходимо помнить, что при выкладке любой перемычки все швы между уложенными кирпичами всегда направляют к одной точке или центру, из которого описывается кривая арки или свода. Высота подъема свода или арки называется стрелой подъема. Арки бывают высокими и низкими.

Любую перемычку начинают с закладки пят, которые выполняют по шаблону. Так как высота арки или свода бывает разная, то и угол пяты изменяется. Нельзя применять одну форму пяты для всех арок и сводов.

Во временных печах узкие топливники шириной до 420 мм перекрывают упрощенным треугольным сводом, укладывая кирпич плашмя (рис. 27) с последующим продолжением кладки стенок, которые будут прочно прижимать пяты к нижележащим рядам кладки.


Рис. 27. Перекрытие узкого топливника треугольным сводом


Если такой свод по каким-либо причинам возводят без продолжения кладки, то уложенные пяты не всегда могут прочно удерживать кирпичи треугольного свода, так как они не будут прочно прижаты сверху с достаточной силой к своей постели. Это может привести к сдвигу пят распором свода, и он может обрушиться.

Чтобы этого не случилось, уложенные под свод пяты надо стянуть или сжать брусками из квадратной, прямоугольной, угловой или тавровой стали и связать проволочным жгутом. Жгут должен находиться внутри кладки (рис. 28). Если жгут останется открытым и будет находиться в топливнике, он быстро перегорит.


Рис. 28. Укрепление пят треугольного свода путем сжатия угловой или полосовой сталью со стягиванием проволочным жгутом:

1 — тавровая сталь; 2 — проволочный жгут


Вместо проволоки можно применять полосовую сталь, прочно скрепив ее с брусками (приклепав).

В зависимости от условий и назначения печи концы брусков могут выходить наружу и стягиваться также жгутами или круглыми стальными стержнями нужной толщины, иногда с резьбой и гайками на концах. Конечно, для них следует просверлить в концах брусков соответствующие отверстия.

При кладке пологих сводов у русских печей иногда приходится также применять бруски для стягивания пят, скрывая жгуты или другие виды стяжек внутри кладки, или выводить их наружу. На такой печи можно сушить различные продукты в большом количестве, не боясь разрушения свода.

Топливники с пролетами до 380 мм можно перекрывать кирпичом, выпущенным из боковых стенок кладки (рис. 29).


Рис. 29. Перекрытие топливника путем выпуска кирпича из боковых сторон кладки


Для прочного защемления свешивающихся опорных кирпичей из стенки кладку выводят выше перекрываемого ряда не менее четырех рядов. Вообще, чем больше выкладывается рядов, тем лучше, так как предупреждается опрокидывание перекрытия внутрь печи.

В процессе кладки приходится перекрывать топочные отверстия различными перемычками, так как запрещается опирать кирпичи на рамку дверки.

Топочное отверстие при ширине менее кирпича перекрывают так называемым кирпичом взамок, а если это отверстие шириной более одного кирпича, то перекрытие выполняют кирпичной клинчатой перемычкой (рис. 30, а, б). Если перекрываемое отверстие большое, то приходится делать арочное перекрытие (рис. 30, в).


Рис. 30. Перекрытие проемов печей и топливников над топочными дверками:

а — кирпичной перемычкой взамок; б — кирпичной клинчатой перемычкой; в — аркой


Топливники комнатных и русских печей перекрывают только кирпичными сводами толщиной не менее полкирпича. Опираются своды на боковые стороны (стенки) топливника, у которого плоскости стесаны под определенным углом, называемым пятами. Свод должен также опираться на заднюю и переднюю стенки топливника.

Своды бывают высокие или крутые, плоские или пологие (рис. 31). Полуциркульный свод высокий и равен половине окружности.


Рис. 31. Форма сводов:

а — полуциркульный; б — пологий; в — трехцентровый


Пологий свод менее крутой, но лучший из них трехцентровый. Он более пологий и лучше излучает тепло на под печи, что весьма важно для выпечки хлебобулочных изделий и варки различной пищи. Под от такого свода нагревается равномерно во всех точках. Имеются более пологие своды, применяемые в хлебопекарных печах.

Чем круче свод, тем он больше выдерживает нагрузку, то есть на печь накладывают большое количество различных продуктов для сушки, и наоборот.

Для выкладки правильного и прочного свода его следует выполнять по опалубке. Кирпичи свода должны прочно прилегать друг к другу и опираться на стенки топливника. Поэтому последний или верхний ряд стенок выкладывают из специально отесанного кирпича.

Чтобы получить кружала и шаблоны пят, надо вычертить свод нужной формы, но с таким расчетом, чтобы в нем уложилось нечетное количество рядов кладки.

Свод строят на листе бумаги, картона, фанеры или на двух досках — широкой и узкой, сбитых под прямым углом. Широкая доска должна быть на 30–50 мм больше высоты подъема свода.

Рассмотрим построение свода на двух досках. Это удобно тем, что на широкой доске остается форма кружала, которую следует только вырезать.

Сперва, посередине узкой доски проводят ось (обозначена пунктиром), но так, чтобы она пересекла и широкую доску. От нижней кромки широкой доски на расстоянии 30–50 мм проводят прямую линию А — Б и откладывают на ней ширину топливника, но так, чтобы ось была строго посредине. Края топливника метят буквами В и Г. На оси от линии А — Б отмеряют кверху стрелу подъема свода и обозначают ее буквой Д. После этого опытным путем подбирают центр О так, чтобы проводимая из него кривая, образующая свод, проходила через точки В и Г и верхнюю точку стрелы подъема свода.

Таким образом, получается форма кружала 1 и пяты 2, по которой в дальнейшем изготовляют шаблон для разметки пят на кирпиче и проверки его после тески (рис. 32).


Рис. 32. Построение кружала для свода и шаблона для пят:

а — построение кружала; б — кружало и шаблоны; 1 — кружало; 2 — шаблон пяты; 3 — шаблон для тески пят; 4 — проверка отесанного кирпича


Изготовив два кружала, можно приступить к устройству опалубки. В пролете свода устанавливают стойки, но не прямо на уложенные доски или под, а на клинья (по два под каждую стойку). Клиньями выравнивают опалубку, но они способствуют и более легкому удалению ее из топливника после кладки свода.

На стойки кладут прогоны, а на них кружала. На кружала укладывают доски, устраивая обшивку или настил. Их применяют узкими и слегка прибивают к кружалам. Сильно прибивать не следует, так как это затруднит разборку. Устроив опалубку, ее вторично проверяют и выравнивают, вынимая или подбивая клинья (рис. 33).


Рис. 33. Опалубка для кладки сводов:

1 — дощатый настил по кружалу; 2 — пята; 3 — кружало; 4 — прогоны; 5 — стойки; 6 — клинья


Однако лучше опалубку сделать разъемной, так как она легко вынимается и при необходимости ее можно использовать многократно (рис. 34). Стойки изготовляют обычно с проушинами глубиной не менее 50 мм и такой ширины, чтобы в них плотно входило кружало. Для свода изготовляют не менее двух кружал. Кружала рекомендуется устанавливать в стойки так, чтобы они выступали на 20–30 мм. Монтируют стойки с кружалами также на клиньях, которые, в свою очередь, опираются на два ряда уложенного кирпича. Конечно, можно и три ряда кирпича, тогда опалубка при разборке опускается в горниле (топливнике) намного ниже, что создает удобство при разборке. Сами кружала делают такой длины, чтобы они не доходили до стенок печи на 20 мм, что дает им возможность свободно опускаться при удалении опалубки.


Рис. 34.Устройство разъемной опалубки:

а — стойка с пазом; б — установка кружала в стойке; в — установка опалубки на кирпичах и клиньях; г — кружало с вырезами для укладки реек; д — расположение реек в кружале; 1 — кирпичи; 2 — клинья; 3 — вырезы; 4 — шпильки; 5 — рейки; 6 — зазоры между рейками


Обшивку или настил делают из узких трех-, четырехсантиметровых реек, которые крепят к кружалам вплотную или с зазорами, но так, чтобы они приходились на середине укладываемого кирпича, а швы кладки были на середине реек. Длину брусков обшивки также берут короче горнила или топливника на 20 мм. Это также необходимо для того, чтобы опалубка при разборке свободно опускалась. Чтобы опалубка не шаталась, между кружалами и стенками печи ставят клинья, которые вынимают перед разборкой. Таким образом, опалубка прочно удерживается между стенками печи.

Кладку лучше всего вести из клиновидного кирпича, но из-за отсутствия последнего применяют обычный кирпич, сужая шов внизу и расширяя его вверху.

Устанавливают опалубку с неоднократной проверкой точности ее положения, подбивая и опуская ту или другую сторону, используя для этого клинья. Выверив опалубку, ее закрепляют, вбивая клинья между ней и стенками печи.

Выложив свод и выдержав его пять-шесть дней, опалубку разбирают. Сперва вынимают по одному клину под каждой стойкой, затем по другому, вслед за ними по первому и второму ряду уложенных кирпичей. Опалубка осядет на 180–200 мм. Когда укладывают три ряда кладки, то опалубка оседает еще больше, чем создаются лучшие условия для разборки. Рейки вынимают, стойки повертывают и снимают с кружал, которые вынимают в последнюю очередь. Можно стойки снять и после удаления клиньев и кирпичей; это еще больше упростит разборку.

Зазоры между рейками нужны для того, чтобы через них из кладки быстрее удалялась влага и свод приобретал прочность.

Вытесывать пяты и укладывать их нужно аккуратно, так как заполнение пустот раствором и щебнем приводит к осадке свода или арки и их разрушению.

После установки и закрепления опалубки необходимо найти центральную точку О, с которой вычерчивалось кружало. В эту точку вбивают гвоздь, крепят к нему прочный шпагат, необходимый для проверки рядов кладки свода и разметки укладываемых кирпичей. Если кладку делают из клиновидного кирпича, то швы имеют одинаковую толщину, а из обычного кирпича — клинообразные. Кирпич следует применять отборный.

Кладку свода начинают с краев от обоих пят одновременно, двигаясь к середине свода или к замку.

Кирпичи подгоняют так, чтобы они почти касались со стороны топливника друг друга, то есть как можно плотнее.

Продольные швы между рядами кладки должны идти от дуги арки. Направление швов кладки свода или арки проверяют шпагатом, прикрепленным к гвоздю (рис. 35).


Рис. 35. Проверка правильного расположения швов кладки в арке


Швы в кладке свода должны быть тщательно перевязаны. Для получения прочного свода кладку следует вести как можно внимательнее и аккуратнее, добиваясь самых тонких швов. Лучше, если кирпичи будут в своде примыкать друг к другу впритирку.

В последний ряд кладки свода или арки вкладывают замковый кирпич, предварительно смазав его с двух сторон глиняным раствором, и с силой вгоняют его между выложенными рядами поленом или деревянным молотком. Обычным молотком кирпич можно расколоть, и удары приходится наносить по уложенной сверху доске. Замковый кирпич, показанный в последующих рисунках может быть заштрихован.

Некоторые печники выполняют кладку свода так называемыми захватками или ступеньками (рис. 36).


Рис. 36. Кладка свода отдельными захватками:

1 — замковый ряд

Кладка основных частей печи, борьба с конденсатом

Бытовые печи имеют различное устройство, но у всех есть общие основные части: топка, дымообороты (дымоходы) и полости внутри печи, по которым выходят в атмосферу продукты сгорания; отопительная часть с теплоотдающей поверхностью; у кухонных плит чугунный настил (плиты), варочные камеры и другие устройства в зависимости от назначения печи.

Общая схема отопительной печи

Иногда печи небольших размеров и массы ставят не на полу или фундаменте, а поднимают над ними, устраивая так называемые шанцы 1 (рис. 37), то есть несколько рядов (полос) кирпичной кладки часто не выше 130–140 мм. Таким образом низ печи становится теплоотдающим.


Рис. 37. Схема отопительной печи:

1 — шанцы; 2 — поддувало; 3 — поддувальная дверка; 4 — колосниковая решетка; 5 — топочная дверка; 6 — под; 7 — топочное пространство (топливник); 8 — хайло, 9 — свод топливника; 10 — тепловоздушная камера; 11 — наружная теплоотдающая поверхность; 12 — дымообороты; 13 — перекрыша печи; 14 — дымоход: 15 — отступка; 16 — патрубок; 17 — задвижка дымовая; 18 — внутренние тепловоспринимающие поверхности


В процессе кладки печи в ее нижней части под колосниковой решеткой 4 устраивают специальную выемку, называемую поддувалом, или зольником 2, которое служит для подачи воздуха к топливу через прозоры колосниковой решетки, а также для сбора золы и шлаков. Поддувало закрывают дверкой 3. Над колосниковой решеткой расположена топка 7 (топочное пространство), закрываемая топочной дверкой 5, Нижняя поверхность топки называется подом 6, на которой укладывают топливо. Верх топки перекрывает свод 9 с расположенным вверху хайлом 8 (отверстием), необходимым для выхода из топливника продуктов сгорания в дымообороты.

Топливо, сгорая в топке, отдает наибольшее количество тепла, а продукты сгорания выходят или прямо в трубу, или предварительно под чугунный настил, духовой шкаф, водогрейную коробку плиты, в каналы, а затем в атмосферу через дымовые каналы.

В некоторых печах устраивают внутренние тепловоздушные камеры 10, в которых нагревается поступающий из помещения воздух и выходит обратно, то есть циркулирует, все время нагреваясь, и печь более равномерно выделяет тепло. Кроме внутренних тепловоздушных камер имеются наружные теплоотдающие поверхности 11, наружные стенки, которые также нагреваются горячими газами при движении по дымооборотам 12, выше которых расположена перекрыша печи 13, выполняемая не менее чем из трех рядов кладки. Продукты сгорания (горячие газы), пройдя по дымооборотам и нагрев их, поступают в дымоход 14, дымовой канал, отводящий дым наружу. Между печью и стеной устраивают воздушное пространство — отступку 15. Для соединения печи со стенным дымоходом имеется патрубок 16, закрываемый дымовой задвижкой или вьюшкой 17. Внутри топочного пространства имеются внутренние тепловоспринимающие поверхности 18 — стенки, свод и под.

В том случае, когда трубу устанавливают на самой печи, она называется насадной. Для отвода топливных газов от нескольких печей дымовые трубы объединяют в один кирпичный массив, то есть коренную трубу, выкладываемую рядом с печью на отдельном фундаменте и с отступом от фундамента здания.

Топливники

Топливники — это камеры внутри массива печи, в которых сгорает топливо. Для правильного горения топлива под каждый вид его устраивают тот или другой топливник с соблюдением всех требований. От неправильно устроенного топливника не полностью сгорает топливо, его много расходуется, и плохо нагревается печь.

Форма и размеры топливника должны быть такими, чтобы создать необходимый объем, вмещающий такое количество топлива, которое нужно для нагревания печи без последующего его добавления. В топливнике должно полностью сгорать топливо, не попадая при этом в дымообороты в виде несгоревших частиц, засоряющих дымообороты и снижающих нагревание стенок.

Топливники делают такой высоты, чтобы после укладки топлива между ними и перекрытием топливника оставалось пространство, необходимое для того, чтобы все проходящие по нему несгоревшие частицы топлива могли сгореть. В этом случае горение заканчивается внутри топливника и топливо используется полностью.

Для равномерной подачи воздуха к сгораемому топливу применяют колосниковые решетки и поддувальные отверстия.

Высота топливника зависит от вида топлива.

Топливник для дров. Дрова и торф содержат много летучих веществ и дают при горении высокое пламя. Они должны иметь большой объем топочного пространства. Высота топливника для дров, считая от колосниковой решетки, колеблется от 800 до 1000 мм (рис. 38).


Рис. 38. Топливник для дров:

1 — поддувало; 2 — топливник; 3 — свод


Под топливника имеет откосы-скаты к решетке для скатывания на нее угля. Колосниковую решетку ставят ниже уровня топочной дверки, что не позволяет углям выпадать наружу. Поэтому решетку и заглубляют на один ряд кладки против нижней кромки топочной дверки. Дрова закладывают плашмя или клеткой. Если высота наложенных дров 300–400 мм, то высота свободного пространства над ними — 500–600 мм. Дверки применяют любые, но лучше герметические. Топливник рекомендуется футеровать (облицовывать) огнеупорным кирпичом (заштрихован клеточками).

Топливник для сланцев (рис. 39). Сланцы — многозольное топливо, в котором количество золы достигает более 30 %. Поэтому он несколько отличается от топливника для дров. Высота топливника, считая от пода, должна быть не менее 670 мм. Обычная колосниковая решетка быстро забивается золой и перестает пропускать воздух. Поэтому их в таких топливниках не применяют, а устраивают порог, делая стенки топливника наклонными. Сланцы закладывают через топочную дверку в топливник в небольшом количестве. Растапливают дровами. Из сланцев в начале горения выделяется много летучих веществ, для сжигания которых через специальную дверку и канал впускают в топливник дополнительно воздух. Шуровку выполняют через нижнюю поддувальную дверку и поддувальный канал. Зола собирается в ящик из стали, устанавливаемый в углублении поддувала.


Рис. 39. Топливник для сланцев:

1 — поддувало; 2 — дверка для подачи добавочного воздуха; 3 — топливник; 4 — свод; 5 — металлический ящик для сбора золы


Топливник следует перекрывать аркой из огнеупорного кирпича. Чтобы газы не проникали в помещение при закрытой печи, в дымовой задвижке или вьюшке следует сделать сквозное отверстие диаметром не менее 10 мм.

Топливник для торфа. Торф влажностью 25–30 % может сжигаться в топливниках с колосниковыми решетками (рис. 40), но увеличенных размеров по сравнению с применяемой для дров. Желательно, чтобы все стенки топливника имели скаты к колосниковой решетке. Высота топливника — от 650 до 750 мм. Торф закладывают в топку слоем в 250 мм, чтобы оставалось пространство над слоем топлива 400–500 мм. Зольник изготовляют особой конструкции и более емкий, так как при сгорании торфа образуется много золы. Лучше всего под колосниковой решеткой установить металлический ящик, из которого по мере заполнения удаляют золу через поддувальную дверку.


Рис. 40. Топливник для торфа:

1 — поддувало; 2 — топливник; 3 — колосниковая решетка; 4 — металлический ящик для сбора золы


Влажные сорта торфа для сжигания следует просушить. Для торфа повышенной влажности применяют топливник специального типа с двумя колосниковыми решетками (рис. 41), поставленными горизонтально и вертикально. Для растопки на горизонтальную решетку сперва закладывают древесную растопку и небольшую порцию торфа. Как только торф хорошо разгорится, добавляют основное количество торфа через топочную дверку так, чтобы его слой был выше наклонных колосников. Топливник выполняют высотой 820 и шириной 455 мм. Учитывая большое количество водяных паров, образуемых при сгорании, вверху топливной камеры для их выхода устраивают специальное отверстие. Воздух для горения поступает через поддувальную дверку, а шуровку топлива выполняют через дверку, расположенную над поддувалом или между двумя колосниковыми решетками. Прозоры в колосниковых решетках делают не более 8-10 мм. Дымовая задвижка или вьюшка должны иметь сквозные отверстия. В этом топливнике также сжигают кизяк повышенной влажности. Сухой кизяк сжигают в топливниках для дров.


Рис. 41. Топливник для торфа повышенной влажности:

1 — поддувало; 2 — дверка для шуровки топлива; 3 — топочная дверка; 4 — свод; 5 — отверстие вверху топливной камеры; 6 — хайло; 7 — решетки


Топливник для каменного угля и антрацита (рис. 42). Каменный уголь и антрацит для горения требуют сильной подачи воздуха к горящему слою. Поэтому в топливниках для этого топлива необходимы колосниковые решетки, которые располагают в неглубокой шахте. Учитывая, что при горении развивается высокая температура, стенки топливника и перекрытия обязательно выкладывают из огнеупорного кирпича. Обыкновенный кирпич быстро разрушается. Колосниковую решетку заглубляют на 300–350 мм.


Рис. 42. Топливник для каменного угля:

1 — поддувало; 2 — топливник; 3 — шахта; 4 — колосниковая решетка; 5 — металлический ящик для сбора золы


Конструкция топливника такова, что нижняя часть его над решеткой значительно сужена. Это делают для того, чтобы антрацит горел сравнительно толстым слоем, что связано с его нормальным сжиганием, происходящим при высокой температуре.

Топливо загружают через топочную дверку. Колосниковую решетку следует ставить тяжелую, выдерживающую высокую температуру. В дымовых задвижках или вьюшках обязательно просверливают сквозные отверстия.

Шахтные топливники необходимы в печах, где происходит длительная топка кусковым топливом. Для разжигания такой печи на колосниковую решетку кладут мелкие дрова или другую растопку, на которую через топочную дверку засыпают немного угля и зажигают дрова. Как только они разгорятся, загружают остальное топливо. По мере сгорания нижних слоев верхние постепенно опускаются. В таких печах возможно скопление газов, поэтому для их отвода в дымоход вверху топливника устроено сквозное отверстие. Кладку следует выполнять из огнеупорного кирпича. Конструктивные особенности топливника показаны на рисунке 43. Ставят массивную колосниковую решетку или колосники. Гарнитура должна быть герметической. В задвижке или вьюшке обязательно устраивают сквозные отверстия. Кроме каменного угля в таком топливнике можно сжигать кусковой торф или торфяные брикеты.


Рис. 43. Топливник шахтный для каменного угля:

1 — поддувало; 2 — топливник; 3 — загрузочное отверстие; 4 — отверстие для отвода газов в трубу; 5 — колосниковая решетка

Дымообороты

Дымообороты (дымоходы) в отопительных печах — это каналы, расположенные внутри массива печи, которые соединяются с топливником и дымовой трубой.

Дымоходы бывают самыми короткими или с более длинным извилистым путем, с одним или несколькими поворотами — дымооборотами, которые располагаются различно. В практике их часто называют дымовыми каналами или просто каналами.

Они бывают вертикальные (стоячие) и горизонтальные (лежачие), а также подъемные и опускные. Переход из одного канала в другой поверху называют перевалом, а такой же переход внизу — подверткой.

Обычно сечение каналов бывает: кирпич на кирпич (260х260 мм), кирпич на половину кирпича (260х130 мм), половина кирпича на половину (130x130 мм). Это более удобные размеры, другие применять не рекомендуется. Внутренние поверхности каналов должны быть как можно глаже и ровнее, что уменьшает сопротивление проходу дымовых газов.

Назначение всех каналов — восприятие тепла от сгораемого топлива. В дальнейшем это тепло передается массиву печи.

Все дымообороты должны иметь достаточное сечение для свободного пропускания всего объема дымовых газов. Излишние (большие) размеры каналов уменьшают скорость движения газов и поэтому требуют увеличения размеров печи. Уменьшение скорости продвижения газов снижает нагревание печи в целом.

Следовательно, размеры каналов имеют большое значение.

Нормальная температура отходящих газов из печи перед выходом в дымовую трубу считается 120–140 °C. Высокая температура примерно 250–300 °C говорит о заниженной поверхности дымооборотов. Напомним, что слишком низкая температура отходящих газов (ниже 100 °C) говорит о том, что излишне развиты (велики) поверхности стенок дымооборотов. Это может привести к конденсату, который, проникая через кладку, постепенно разрушает ее.

Печь должна равномерно прогреваться. Перегрев верхней части нежелателен, так как в этой зоне тепло мало ощущается человеческим организмом. Немалую роль играет общая протяженность дымооборотов и особенно количество поворотов, усиливающих сопротивление дымовых газов во время прохода. Все это учтено в рекомендуемых печах.

Системы дымооборотов в печах бывают разными: канальными, бесканальными и смешанными, малооборотными и многооборотными.

Малооборотные системы имеют один подъемный канал и один или несколько опускных, соединенных параллельно, и газы в них идут в одном направлении (рис. 44).


Рис. 44. Малооборотные схемы:

а — с одним опускным каналом; б — с многими опускными каналами; Т — топливник; 1, 2, 3, 4 — каналы; 5 — дымовая труба


Многооборотные системы построены так, что дымовой канал состоит из последовательно соединенных вертикальных и горизонтальных участков, где газы, направляясь к трубе от топливника, преодолевают большое количество оборотов (рис. 45). Печи с такой системой оборотов прогреваются весьма неравномерно, требуют повышенной тяги, а обилие оборотов повышает оседание сажи. Очищать такие печи очень трудно.


Рис. 45. Многооборотные схемы:

а — с вертикальными каналами; б — с горизонтальными каналами; Т — топливник; 1, 2, 3, 4 — каналы; 5 — дымовая труба


В бесканальной системе — колпаковой (рис. 46) дымовые каналы отсутствуют, а над топливником имеется камера в виде колпака. Из топливника под камерой проходит входное отверстие, а также боковое для отвода охлажденных газов. Работает печь так. Горячие газы попадают в колпак из топливника, поднимаются до перекрыши печи, расходятся по стенкам и нагревают их, а остывая, опускаются вдоль стен к низу камеры и через второе боковое отверстие попадают в трубу. Для лучшего нагревания часто в колпаке делают продольные перегородки на всю его высоту, образуя как бы колодцы. Эта система проста в выполнении, имеет наименьшее газовое сопротивление. К недостатку можно отнести перегрев верхней части печи. Такие печи конструктора В. А. Потапова имеются в данной книге. Они даны в двух вариантах подключения их к коренной или стенной трубе или к насадной.


Рис. 46. Бесканальная схема:

Т — топливник; 1 — колпак


В системе с преимущественным нижним прогревом (рис. 47) обеспечивается наибольший нагрев нижней части печи. Работает печь так. Сначала горячие газы из топливника опускаются вниз, нагревая нижнюю часть печи, слегка охлаждаясь, они направляются вверх. Верхняя часть системы делается или однооборотной, или в виде колпака.


Рис. 47. Схема с преимущественным нижним прогревом:

Т — топливник


Эта система является более рациональной из всех существующих.

Образование конденсата и борьба с ним

Некоторые печи страдают одним дефектом — они конденсируют, то есть выделяют черную жидкость со специфическим запахом, которая образуется в результате выпадения водяных паров и паров смолистых веществ на стенках дымовой трубы. От времени конденсат пропитывает печную кладку насквозь, она становится сырой, тяга снижается, а кладка быстро разрушается. Пятна с наружной стороны печи удаляются только путем срубания кирпича и оштукатуривания таких мест цементным раствором, а чаще всего кладку заменяют новой. Выделяемые конденсатом тяжелые запахи приводят к невозможности проживания в доме.

Даже в самом сухом топливе имеется небольшое количество влаги. Кроме того, содержащийся в топливе водород, две весовые части которого соединяются с одной весовой частью кислорода, также образует водяной пар.

Дымовые газы с невысокой температурой и каким-то количеством воды, в виде пара, проходя по каналам печи и трубы, не только охлаждают их, но, соприкасаясь с холодными стенками трубы, оседают каплями на них, которые стекают вниз. Обилие стока зависит от количества конденсата.

Чтобы имеющаяся вода в горячих газах лучше испарялась, температура последних должна быть повышенной. На хорошо нагретых стенках трубы осевшие капли влаги быстро испаряются.

Нормальная температура отходящих из печи газов перед выходом в трубу считается 120–140 °C, а при выходе из трубы в атмосферу — не ниже 100 °C.

Если дымовые газы при выходе в трубу, то есть у вьюшки, достигают температуры около 250 °C, то конденсата никогда не образуется, улучшится тяга, печи быстрее нагреваются, потребляя при этом меньше топлива.

Определить температуру выходящих газов можно простейшим способом, воспользовавшись сухой лучиной, которую кладут поперек отверстия вьюшки во время топки. Если через 30–40 мин вынуть лучину и соскоблить с нее ножом закопченную поверхность, то можно установить температуру газов. Цвет лучины не меняется при температуре в пределах 150 °C. Если лучина желтеет (до цвета корки белого хлеба), значит, температура дошла до 200 °C; а если стала коричневой (до цвета корки ржаного хлеба), то температура поднялась до 250 °C. Почерневшая лучина указывает на температуру 300 °C, а когда она превращается в уголь, то температура достигает 400 °C.

Таким образом, при топке печи температуру газов надо регулировать так, чтобы у вьюшки она была в пределах 250 °C.

Следует знать, что в летнее время конденсат или совсем не образуется, или бывает в небольшом количестве.

В образовании конденсата большую роль играют размеры колосниковой решетки, правильно поднятого пода и устройства горнила у русской печи, размеры канала, толщина стенок, длина и высота дымовой трубы, температура ее нагрева, влажность применяемого топлива, температура выходящих газов из трубы и избыточное количество дымоходов в печи.

Высота дымовой трубы должна быть не менее 5–6 м, считая от уровня зольниковой камеры или пода русской печи. Толщину кладки стенок трубы следует выполнять в полкирпича (12 см). Более тонкие стенки трубы быстро нагреваются и быстро остывают, что приводит к образованию конденсата. Такие трубы необходимо утеплять.

Различные трещины в трубе и печи, сквозь которые проникает холодный воздух, также способствуют охлаждению газов и образованию конденсата. Когда сечение канала трубы (дымохода) выше требуемого для данной печи, то дымовые газы поднимаются по ней очень медленно и холодный наружный воздух охлаждает их в трубе. Большое влияние на силу тяги, то есть на выход дымовых газов, оказывает гладкость стенок дымоходов. Чем они глаже, тем сильнее тяга. Все шероховатости в трубе способствуют снижению тяги и задерживают на себе сажу.

Иногда для улучшения тяги в печах приходится перекладывать трубы, уменьшая размеры дымохода, опуская или поднимая высоту трубы на крыше. Делают это до тех пор, пока не получают удовлетворительного результата. В местах сужения дымохода следует стесывать прямые углы, чтобы обеспечить более плавный переход газов.

На тягу в трубе также влияет ветер. Это бывает тогда, когда он дует горизонтально, встретив трубу, отклоняется от своего направления в сторону выходного отверстия трубы вверх. В этом случае около трубы разрежается воздух и газы лучше выходят из дымохода, как бы высасываются из него.

Если ветер дует сверху вниз, то он задувает (опрокидывает) газы в трубу и тяга снижается до минимума.

Чтобы уменьшить действие ветра на выходящие из трубы газы, необходимо скашивать наклонные плоскости труб, а еще лучше накрывать их металлическими колпаками — зонтами со скошенными плоскостями. Ударяясь о них, ветер отклоняется от своего первоначального направления и не попадает в трубу. Кроме того, колпак предохраняет верх трубы и ее стенки от намокания и размывания дождевыми водами. В сырых трубах снижается тяга.

Большую роль играет и процесс сгорания топлива. Дерево воспламеняется при температуре не ниже 300 °C, каменный уголь — при 600 °C. Нормальный процесс горения протекает при более высокой температуре: дерево — при 800–900 °C, каменный уголь — при 900-1200 °C. Такие температуры обеспечивают непрерывное горение при условии, что воздух (кислород) поступает без перерыва в потребном для горения количестве. Когда его подается слишком много, топливник будет охлаждаться, а горение ухудшаться, так как для хорошего горения нужна высокая температура. Не следует топить печь при открытой топке. При полном сгорании топлива цвет пламени соломенно-желтый, а дым белый или почти прозрачный. В этом случае сажа почти не откладывается на стенках каналов печи и трубы.

При недостаточной подаче кислорода в печь топливо сгорает не полностью, дрова тлеют или горят темно-красным пламенем, а из трубы идет черный дым, который уносит с собой несгоревшие мельчайшие частицы топлива. В этом случае на стенках каналов печи и в трубе эти частицы оседают и быстро засоряют их.

Следует обратить самое серьезное внимание на утепление чердачного пространства и находящихся там труб, закрыв все отверстия. Сквозные ветры быстро все остужают и повышают конденсацию.

Имеются многоканальные печи или бесканальные с большими внутренними тепловоспринимающими поверхностями. В таких печах горячие газы отдают им много тепла, а сами выходят в трубу сильно охлажденными, образуя большую конденсацию.

Все рассмотренные выше рекомендации для таких печей не дают положительных результатов. Такие печи приходится перестраивать, чтобы повысить температуру выходящих газов. Эго достигается следующими мероприятиями: сокращением внутренних тепловоспринимающих поверхностей печи или устройством небольших окошек — отверстий из топливника в последний или последний и предпоследний дымоходы.

Для перестройки таких печей приходится разбирать часть кладки с передней или другой стороны, часто с двух сторон и после исправления заложить так, чтобы ремонтируемое место ничем не отличалось от ранее выполненной кладки.

Например, когда в печи имеется семь дымоходов, то для того, чтобы ликвидировать конденсат, один или два канала (последний и предпоследний) или только один из них отключают, перекрывая вверху и внизу, чем повышается температура отходящих газов.

Эти каналы можно не отключать, а устроить из топливника печи к ним небольшие окошки сечением примерно 50x50 мм. Такое квадратное окошко выкалывают в кирпиче, но это не всегда легко. Поэтому просто стесывают или скалывают кирпич с одной стороны в таком количестве, чтобы эти окошки имели площадь 25 кв. см. Этот способ надежный, так как также повышает температуру отходящих газов до нормы и струйки горячего воздуха из топливника попадают в каналы, поднимая в них температуру. Следует указать, что наибольший эффект дает небольшое сокращение каналов или внутренних тепловоспринимающих поверхностей с дополнительным устройством к ним окошечек из топливника.

Кладка печей

Печи похожи одна на другую, за исключением их размеров. Поэтому в этом разделе подробно рассмотрена кладка одной из них. Все последующие печи даются в сжатом изложении.

В первую очередь рассмотрена кладка самой простой печи — кухонного очага или плиты, затем отопительных щитков, состоящих из плит или пристроенных к ним отопительных стенок. После этого идут отопительно-варочные печи, затем отопительные и только потом русские печи, у которых более сложная часть работы — своды.

Прежде чем приступить к кладке печи, нужно внимательно познакомиться с той, которая выбрана. Изучив кладку печи, следует разобрать кладку труб. Кладку печей и труб выполняют со строгим соблюдением противопожарных мероприятий, которые даны после описания кладки каждой печи.

Важно обратить особое внимание на все разрезы и порядовки (ряды кладки). Кладку надо выполнять строго по предлагаемым порядовкам, тщательно их выполняя, особенно каналы, делать их как можно ровнее, что обеспечит лучшее движение дымовых газов. Совершенно недопустимо уменьшать или увеличивать количество дымооборотов и изменять их размеры.

Только после полного усвоения сути выполнения кладки можно приступить к работе. Материалы должны быть предварительно заготовлены и, если требуется, отсортированы.

Кухонные плиты

Многолетнее пользование кухонными плитами подтвердило рациональность их конструкций. Они служат для приготовления пищи, нагревания воды, запарки кормов для скота, сушки различных продуктов, одежды и отапливания всевозможных помещений. Теплоотдача плит не превышает 900 ккал/ч. Чтобы повысить теплоотдачу, плиты подключают к отопительным щиткам. Плиты и щитки подключают к коренным или насадным трубам. Плиты бывают разного размера и массы. Независимо от размера и конструкций стандартная высота плит считается 770 мм, но часто за счет утолщения швов кладки она немного повышается.

Все рассмотренные кухонные плиты разработаны под чугунные плиты и настилы определенного размера. От применения другого размера плиты могут изменяться как по длине, так и по ширине, но с оставлением каналов без изменения. Если для кухонных плит приходится применять приборы других размеров, то соответственно изменяют для них отверстия.

Поэтому прежде всего необходимо приобрести нужные приборы и только после этого приступить к кладке кухонной плиты, сообразуясь с размерами имеющихся приборов. Напоминаем, что у некоторых чугунных плит с нижней стороны есть выступы или ребра жесткости (бортики), которые отступают от краев плит на 15 мм. Поэтому внутренние размеры кладки должны быть такими, чтобы плита своими бортиками свободно туда вошла и имела зазор не менее 5 мм на расширение металла от нагревания. Если этого не сделать, то металл, расширяясь, будет расстраивать (разрушать) печную кладку.

Промышленность изготовляет различные приборы для печей из чугуна и стали. Если нет в наличии того или другого прибора, его приходится изготовлять собственными силами. Особенно это относится к духовкам и водогрейным коробкам. Первые должны изготовляться из черной стали толщиной не менее 1 мм, вторые — из оцинкованной. Напоминаем, что чем толще сталь, тем долговечнее прибор.

Кухонные печи по своей конструкции делятся на простые, средней сложности и сложные. Простые не имеют духовки или водогрейной коробки, средней сложности имеют чаще всего только духовку, а сложные — духовку и водогрейную коробку. Топка может быть расположена с передней или с какой-то одной из боковых сторон. Духовку и водогрейную коробку располагают или вместе справа, или слева от топки, или отдельно с двух сторон. В первом случае требуется одна задвижка, в другом — две.

Кухонные плиты обычно работают так. В простой плите горячие газы из топливника направляются под чугунную плиту или чугунный настил, а оттуда прямо по выводу (выводной канал) в трубу или отопительный щиток. В остальных очагах горячие газы также направляются сперва под чугунную плиту или настил, оттуда под духовку или духовку и водогрейную коробку, омывая их с трех сторон, и только затем направляются в трубу или отопительный щиток.

На рисунке 48 показан общий вид кухонных плит или очагов и их разрезы с движением газов внутри их.


Рис. 48. Кухонные плиты:

а — кухонная плита с духовкой и водогрейной коробкой, расположенными вместе; б — кухонная плита с духовкой и водогрейной коробкой, расположенных между топливником; 1 — поддувало; 2 — топка; 3 — чистка; 4 — задвижка; 5 — водогрейная коробка; 6 — духовка


При кладке кухонных плит следует особенно соблюдать противопожарные мероприятия.

При кладке кухонной плиты на деревянном полу или подложенном деревянном щите до начала работы надо вырезать лист кровельной стали по размеру плиты. Положить на пол или щит слой листового асбеста или два слоя листового войлока, хорошо вымоченного в глиняном растворе, накрыть стальным листом и прибить его гвоздями.

На этом листе вычерчивают форму плиты и на глиняном растворе кладут первый ряд кладки.

Выложив полностью кухонную плиту, под топкой крепят предтопочный лист размером 500х700 мм, прибивают его гвоздями через 50 мм друг от друга и на него прибивают плинтус. Но можно сначала прибить вокруг печи плинтус, а предтопочный лист загнуть на плинтус. Хотя это несколько сложнее, но лучше.

Для того чтобы верхний ряд кладки, то есть одиннадцатый, был более прочным, а печь красивее, на него укладывают обвязку из угловой стали или фаянс. Если она примыкает непосредственно к отопительному щитку, то фаянс ставят с трех сторон, если вдали от него — то с четырех. Его или надевают на кладку, или закрепляют кляммерами из стальной ленты.

Простая плита

Простая плита без духовки и водогрейной коробки (рис. 49) имеет размер: длину — 890 мм, ширину — 510 и высоту — 770 мм. Прямоугольные формы. Масса — 530 кг. Теплоотдача при двух топках в сутки — 700 ккал/ч.


Рис. 49. Кухонная плита упрощенная:

1 — два слоя войлока, пропитанного в глиняном растворе и покрытого кровельной сталью; 2 — чистка; 3 — кляммеры; 4 — угловая сталь 30х30х4 мм с укрепленными кляммерами из стальной ленты


Материалы: кирпич обыкновенный или красный — 118 штук, глина обыкновенная — 2,5 ведра; песок — 1,5 ведра; колосниковая решетка — 25х18 см; дверка топочная обыкновенная — 25х20,5 см; дверки поддувальная и прочистная — 130x140 мм; две плиты чугунные составные с конфорками размером 410х360 мм; два листа кровельной стали предтопочный — 500x700 мм и под плиту — 890x510 мм; войлок строительный — 0,7 кг; обвязка (уголок 30х30х4 мм — 2,9 м, стальная лента 25х15 мм — 2 м); задвижка дымовая 130x130 мм. Поскольку в этой плите нет ни духовки, ни водогрейной коробки, класть ее гораздо проще. Если сделан фундамент, то выравнивают его верх.

Приготовив глиняный раствор, приступают к кладке.

Первый ряд выполняют из целого кирпича в таком порядке, как указано в порядовке. Выполненную кладку ряда проверяют на прямоугольность и по размеру.

Второй ряд кладут также из целого кирпича. Кладка его проста, только следует хорошо перевязывать швы.

Третий ряд кладут, как первый, но с правой стороны печи устраивают поддувало или зольник (коробку) с установкой поддувальной дверки, опирая ее на второй ряд и зажимая с двух сторон трехчетверками.

Четвертый ряд похож на третий, но имеет с левой стороны вывод — канал, из которого дымовые газы направляются в трубу или отопительный щиток. Ширина этого канала — 140 мм. С боковой стороны печи против канала закладывают чистку, которая будет опираться на третий ряд.

Пятый ряд такой же, как и четвертый. Поддувальную дверку перекрывают кладкой и оставляют только отверстие зольника в виде коробки размером 260x260 мм. Позднее над ней будет поставлена колосниковая решетка (стрелками показан вывод дыма в трубу или щиток).

Шестой ряд кладут так, что он перекрывает выводной канал и над ним остается отверстие размером 260x260 мм, которое явится продолжением вертикального канала. Его метят черным треугольником. Поддувало при этом сужают по ширине до 200 мм, и оно остается больше ширины колосниковой решетки.

Седьмой ряд выполняют, как показано на рисунке. Вертикальный канал сужают до размера 260х130 мм. Над поддувалом с опорой на шестой ряд кладут колосниковую решетку, но так как она у́же имеющегося отверстия, то против решетки укладываемые с двух сторон кирпичи вдвигают немного во внутрь печи (см. разрез В — В). Четыре кирпича, прилегающие к колосниковой решетке, стесывают (заштриховано) для образования наклонных плоскостей — откосов или скосов, по которым топливо будет скатываться на решетку (см. разрез А — А).

Восьмой ряд образует топливник размером 520x260 мм с установкой топочной дверки с опорой на седьмой ряд.

Девятый и десятый ряды похожи на восьмой, кладут согласно порядовке, с тщательной перевязкой швов.

Одиннадцатый ряд — завершающий. Его выполняют строго горизонтально. Топочную дверку перекрывают, а перегородку или стенку, отделяющую вертикальный канал, по которому дымовые газы поступают к выводному каналу, не выкладывают.

Двенадцатый ряд как таковой не существует. Его не кладут. В этом «ряду» укладывают чугунный настил на жидком глиняном растворе. Чтобы верхние кирпичи одиннадцатого ряда не расстраивались, их скрепляют обвязкой, то есть рамкой, согнутой из уголка 30x30х4 мм, и приклепывают к нему лапки или кляммеры из ленточной стали. Кляммеры располагают по две с длинной стороны печи и по одной — с широкой стороны. Так как эту рамку с кляммерами невозможно надеть на выполненный одиннадцатый ряд, то ее устанавливают на десятый ряд и закрепляют одиннадцатым. Рамка к тому же еще и украшает печь. К рамке очень хорошо, если есть возможность, прикрепить с передней и задней сторон скобы в виде длинных ручек, на которые можно вешать для сушки мокрые полотенца. Рамку и скобы следует покрыть огнеупорным лаком, предохраняющим сталь от ржавления. Если уголок для обвязки из дюраля или алюминия и из такого же материала скобы, то покрытия не требуется.

Эта печь работает так. Дымовые газы из топливника попадают под чугунный настил, оттуда в вертикальный канал, а из него — в вывод и трубу.

После кладки печи через чистку удаляют возможно упавший глиняный раствор. Затем чистку закрывают.

После кладки печь желательно просушить, оставив открытыми все дверки и задвижку. Чем больше сушится печь, тем прочнее будет кладка.

Плита с духовкой

Плита (рис. 50) имеет размер: длину — 1020 мм, ширину — 640, высоту — 770 мм. Масса — 650 кг. Теплоотдача при двух топках в сутки — 600 ккал/ч.


Рис. 50. Кухонная плита с духовкой:

1 — чистка; 2 — духовка; 3 — топливник; 4 — поддувало, 5 — войлок, пропитанный глиняным раствором и покрытый кровельной сталью; 6 — глиняная смазка толщиной 1–1,5 см


Материалы: кирпич обыкновенный — 175 штук; глина обыкновенная — 3 ведра; песок — 2 ведра; колосниковая решетка — 250х180 мм; топочная дверка — 250x210 мм; поддувальная и прочистная дверки — 130х140 мм — 2 штуки; пять плит чугунных составных с двумя конфорками — 530x180 мм; духовой шкаф — 350х350х450 мм; два листа кровельной стали предтопочной — 50х70 мм и под плиту — 1020х640 мм; войлок строительный — 1 кг; обвязка (уголок 30x30х4 мм — 3,32 м, стальная лента 25х15 мм — 1,2 м); задвижка дымовая — 130х130 мм.

На пол укладывают два слоя асбеста или войлока, вымоченного в глиняном растворе, накрывают его кровельной сталью и прибивают. Затем приступают к кладке первого ряда.

Первый ряд кладут по вычерченной фигуре, но так, чтобы она была прямоугольной. Кладку выполняют по порядовке из целого кирпича, но можно наружный ряд из целого, а середину из половинок.

Второй ряд следует класть полностью из целого кирпича, как это показано в порядовке, соблюдая перевязку швов.

Третий ряд выкладывают согласно порядовке, с оставлением места для собирания сажи и золы, с установкой прочистной дверки, которая опирается на второй ряд.

Четвертый ряд требует более сложной кладки. Там необходимо в задней стенке оставить место или отверстие для присоединения плиты к дымоходу. Затем ставят кирпич на ребро, образуя перегородку. Между этим кирпичом и кладкой внутри печи должно быть расстояние 130 мм. Это — будущий канал, по которому горячие газы будут выходить из-под духовки к дымоходу. В этом ряду закладывают поддувало, устанавливая дверку на предыдущем ряду. Угол кирпича у выхода скашивают, но лучше его закруглить (стрелками показаны места присоединения к дымоходу).

Пятый ряд похож на четвертый. В процессе кладки перекрывают дверку чистки. Перегородку не ставят, так как ранее поставленного кирпича на ребро хватает на два ряда кладки плашмя. В порядовке имеется пунктирная линия, обозначающая место для установки духовки. Цифра десять указывает на то, что духовка должна отступать от стенки кладки на 100 мм. Имеющееся поддувало оставляют размером 260x260 мм.

Шестой ряд кладут так, что сперва устанавливают духовку на тонком слое глиняного раствора по ранее намеченным линиям, затем выполняют кладку согласно порядовке. Для образования двух каналов (черные треугольники между стенкой печи и духовкой) ставят кирпич на растворе стоймя, которого должно хватить на четыре ряда последующей кладки. Если его недостаточно, то добавляют кусок кирпича нужной высоты. Оставленное большое поддувало уменьшается до размера 260х130 мм, что зависит от размера колосниковой решетки.

Седьмой ряд кладут с установкой колосниковой решетки на шестом ряду; примыкающие к ней кирпичи с двух сторон стесывают, образуя откосы или скаты для того, чтобы топливо скатывалось на решетку. Чтобы духовка со стороны топливника быстро не прогорала, вплотную к ней на глиняном растворе выкладывают стенку из кирпича на ребро.

Восьмой ряд кладут согласно порядовке, с установкой дверки топливника размером от стенки до дверки 520x260 мм, которую опирают на седьмой ряд.

Девятый ряд похож на предыдущий, разница только в перевязке швов.

Десятый ряд выкладывают так,как показано на рисунке. Канал за задней стенкой духовки перекрывают и оставляют только один с боковой стороны. При перекрытии канала применяют целый кирпич и трехчетверки. Перегородку между духовкой и топкой поднимают на 10 или 15 мм выше духовки. Со стороны топки ребро перегородки стесывают на конус, лучше всего с закруглением, что обеспечит быстрое передвижение газов из топливника под чугунный настил.

Одиннадцатый ряд выполняют строго по уровню, так как на него нужно положить чугунный настил. Дверки духовки и топки перекрывают. Прочность верхнего ряда кладки зависит от обвязки, которую и следует устанавливать на этом ряду так, чтобы имеющиеся кляммеры опирались на десятый ряд. Таким образом, кладка одиннадцатого ряда закрепляет обвязку на плите. После кладки этого ряда остается только один вертикальный канал. Выложив этот ряд, верх духовки смазывают глиняным раствором слоем 10–15 мм, что предохранит его от быстрого прогорания. Слой глиняного раствора должен быть таким, чтобы после укладки чугунного настила между духовкой и настилом было пространство — канал, высотой не менее 70 мм.

Двенадцатый ряд — завершающий. Его не выкладывают, а только выполняют чугунный настил на тонком глиняном слое и так, чтобы одна из конфорок была над топкой. В этом ряду показаны пять плит с двумя конфорками.

Эта плита работает так. Дымовые газы из топливника направляются вверх под чугунный настил, откуда они попадают в вертикальный канал, опускаются вниз под духовку, затем поднимаются немного вверх, нагревают заднюю стенку духовки и направляются по оставленному отверстию в дымоход или обогревательный щиток.

Плита на шанцах с духовкой

Плита равномерно обогревается со всех сторон (рис. 51). Имеет размер: длину — 910 мм, ширину — 550 и высоту — 770 мм. Перекрывается целой чугунной плитой с двумя конфорками (большой и малой). Масса — 550 кг. Теплоотдача при двух топках в сутки — 900 ккал/ч.


Рис. 51. Кухонная плита на шанцах с духовкой, равномерно обогреваемой со всех сторон:

1 — поддувало; 2 — топливник; 3 — духовка; 4 — чистка


Ставят плиту не прямо на полу, а подняв ее над полом на шанцы — кирпичные стенки высотой 140 мм. Это предохраняет пол от нагревания, так как под печкой все время циркулирует холодный воздух. Шанцы укладывают или прямо на деревянный пол, или деревянный щит. В том и другом случае сперва на пол укладывают лист асбеста или два слоя войлока, вымоченного в глиняном растворе и закрытого кровельной сталью.

В некоторых конструкциях кухонных плит одну сторону духовки, примыкающую к топливнику, облицовывают кирпичом на ребро. В одном случае кирпичная стенка предохраняет металл духовки от быстрого прогорания, а во втором — это ведет к неравномерному нагреванию духовки, что не всегда удобно для выпечки различных изделий. У этой плиты такой недостаток отсутствует, так как предохранительная стенка отступает от духовки, в данном случае на 4 см, и духовка не только омывается со всех сторон газами, а вся находится в «мешке» горячих газов, сохраняя длительное время тепло.

Материалы: кирпич обыкновенный — 130 штук; глина обыкновенная — 3 ведра; песок — 2 ведра; плита чугунная — 762х456 мм; духовка — 320х270х400 мм; поддувальные и топочные дверки — 220x160 мм — 2 штуки; колосниковая решетка — 250х180 мм; прочистная дверка — 130x140 мм; задвижка — 130х130 мм; уголок для обвязки; кровельная сталь; войлок; стальная лента и другие материалы.

Если такого размера дверки для топки нет, то ее можно заменить большим размером (по высоте), но установить ниже — на восьмом или даже седьмом ряду и заложить внутри кирпичом, чтобы порог был выше колосниковой решетки.

Первый и второй ряды кладут по стальному листу, уложенному на войлок. Шанцевая кладка немного меньше размеров кладки печи: по ширине — на 50, по длине — на 100 мм.

Третий ряд размером 940х550 мм — начало кладки самой плиты. Его кладут так, как показано на рисунке.

Четвертый ряд кладут, как показано. Один кирпич с задней стороны плиты стесывают на конус (заштриховано), для того чтобы расширить выходной канал (см. разрез В — В), подключаемый к трубе или отопительному щитку. Выход газа показан стрелкой.

Пятый ряд кладут в следующей последовательности. Сперва устанавливают дверки для чистки и поддувала, опирая их на четвертый ряд. Заднюю стенку выполняют в четверть кирпича. На расстоянии 18 см от левой стороны печи выкладывают стенку в четверть кирпича. Поддувало уменьшают по длине, для чего ставят кирпичи на ребро. С задней стороны стенки выпускают кирпич внутрь плиты. К нему кладут кирпич перпендикулярно. Таким образом образуется стенка, похожая на букву Г или на сапог. Она служит основанием для установки духовки и кладки вертикальной стенки, необходимой для образования в дальнейшем вертикального канала между духовкой и правой боковой стенкой. Края кирпича под духовкой скашивают и закругляют. Основные размеры даны в порядовке. Кроме того, внутри кладки со стороны левой перегородки укладывают кусок кирпича, примерно равный половине. Он необходим для опирания на него духовки. Его края скашивают и закругляют.

Шестой ряд кладут, как пятый, дымоход перекрывают, тщательно соблюдая перевязку швов.

Седьмой ряд выполняют согласно порядовке. Прежде всего устанавливают духовку так, чтобы она отступала от правой стороны печи на 90 мм, а от перегородки с левой стороны — на 40 мм. С задней стенки духовки, но на одной линии с ее правой стороной ставят перегородку, образуя тем самым два канала. Один обогревает левую и заднюю стенки духовки, другой — правую.

Поддувало уменьшают по длине, а ее дверку перекрывают.

Восьмой ряд кладут согласно порядовке. Отверстие над поддувалом уменьшают до таких размеров, чтобы оно было перекрыто колосниковой решеткой.

Девятый ряд выполняют так. Сначала устанавливают колосниковую решетку и топочную дверку. В этом ряду заканчивают кладку вертикальной части перегородки между топкой и духовкой.

Десятый ряд кладут так, что первоначально перекрывают отверстия между перегородкой и духовкой с укладкой кирпича с наклоном под некоторым углом. Острые грани кирпича стесывают и закругляют. В процессе кладки перекрывают канал с левой стороны духовки, и он остается только с правой стороны.

Одиннадцатый ряд выполняют строго горизонтально с установкой обвязки. Духовку смазывают сверху глиняным раствором слоем 10–15 мм или толще, чтобы пространство между верхом духовки и чугунной плитой было высотой не менее 70 мм.

Двенадцатый ряд — завершающий. На тонком слое глиняного раствора укладывают чугунную плиту с большой конфоркой над духовкой.

Кладка плиты с духовкой, омываемой со всех сторон газами, возможна для очагов любой конструкции, только увеличивают их длину на 40–50 мм, не уменьшая при этом размеры каналов.

Плита с духовкой и водогрейной коробкой

Плита (рис. 52) имеет размер: длину — 1150 мм, ширину — 640 и высоту — 770 мм. Масса — 750 кг. Теплоотдача при двух топках в сутки — 900 ккал/ч.


Рис. 52. Кухонная плита с духовкой и водогрейной коробкой:

1 — чистка; 2 — водогрейная коробка; 3 — духовка; 4 — топливник; 5 — поддувало; 6 — глиняная смазка толщиной 1–1,5 см; 7 — войлок, пропитанный глиняным раствором и покрытый кровельной сталью


Материалы: кирпич обыкновенный — 185 штук; глина обыкновенная — 3,5 ведра; песок — 2,5 ведра; колосниковая решетка — 250х180 мм; топочная дверка — 250x210 мм; поддувальная и прочистные дверки — 130х140 мм — 2 штуки; пять плит чугунных составных с двумя конфорками 530x180 мм; духовой шкаф 350х530х450 мм; два листа кровельной стали предтопочный — 500х700 мм и под плиту — 1150x640 мм; войлок строительный — 1,2 кг; водогрейная коробка — 150х350х450 мм; обвязка плиты (угловая сталь — 30x30x4 мм — 3,6 м, стальная лента — 2,5х15 мм — 1,2 м); задвижка дымовая — 130х130 мм.

На полу вычерчивают размер печи. Укладывают листовой асбест или два слоя войлока, вымоченного в глиняном растворе, накрывают кровельной сталью, прибивают, чертят на ней размеры печи и приступают к кладке.

Первый ряд кладут согласно порядовке по вычерченным размерам печи.

Второй ряд кладут с соблюдением перевязки швов.

Третий ряд выполняют согласно порядовке с закладкой чистки, необходимой для удаления золы и сажи из-под духовки. Чистка может быть любой конструкции.

Четвертый ряд кладут с соблюдением всех указанных размеров. В этом ряду закладывают поддувало с установкой дверки, опирая ее на третий ряд. С задней стороны плиты оставляют выходное отверстие для подключения плиты к трубе или обогревательному щитку. Размер отверстия — 140 мм. Там же ставят перегородку из кирпича на ребро с отступом от задней стенки на 70–80 мм, а от стенки поддувала — на 130 мм. Длина перегородки — 350 мм (почти полтора кирпича). Чтобы перегородка не сдвинулась с места, между ней и задней стенкой укладывают кусочек кирпича толщиной до 20 мм, но можно и без него, или его сперва ставят, а затем вынимают. На эту перегородку в дальнейшем устанавливают духовку и водогрейную коробку. Угол кирпича у отверстия скашивают на конус, но лучше закруглить (стрелками показаны места присоединения к дымоходу).

Пятый ряд кладут, как четвертый, с соблюдением перевязки швов. Чистку перекрывают. Пунктирными линиями помечено место для водогрейной коробки и духовки с оставлением канала между ними шириной до 150 мм.

Шестой ряд начинают с установки на тонком слое глиняного раствора водогрейной коробки и духовки. Между ними с задней стороны устанавливают перегородку (кирпич на ребро), образуя этим два канала. Один — между боковыми сторонами водогрейной коробки и духовки, другой — с задних сторон. В процессе кладки перекрывают выходное отверстие, а поддувало сужают до размера примерно 130x260 мм.

По этим двум каналам будут проходить газы, нагревая водогрейную коробку и духовку, которые к тому же подняты над третьим рядом кладки на 140–150 мм, образуя нижний третий канал. В таком случае эти приборы нагреваются с боковой, задней и нижней сторон.

Седьмой ряд начинается с установки колосниковой решетки и облицовки стенки духовки, со стороны топки, кирпичом на ребро. При укладке кирпича вокруг колосниковой решетки его с задней и передней сторон скашивают (заштриховано, см. разрез В — В). Так над решеткой образуются скаты. Таким образом, колосниковая решетка находится на 65–75 мм ниже топочного отверстия. Решетку прорезями кладут по длине топливника с уклоном к дверке на 20–30 мм.

Восьмой и девятый ряды кладут, как показано. Только на восьмом ряду устанавливают топочную дверку. В девятом ряду показаны разрезы и размеры по ширине духовки, водогрейной коробки и топливника.

Десятый ряд в процессе кладки требует применения трехчетверок для перекрытия заднего канала так, чтобы кирпич вплотную прилегал к водогрейной коробке и духовке. В этом ряду заканчивается облицовка стенки духового шкафа, которая должна быть выше его на 10–15 мм. Выступающие кромки кирпича стесывают на конус, а еще лучше закругляют (см. разрез по А — А).

В этом ряду по лицевой (передней) стороне плиты показана ширина (размеры) стенок, приборов и топливника.

Размер канала между духовкой и водогрейной коробкой равен 150 мм. Однако он может быть несколько у́же или шире, что зависит от толщины швов и некоторых погрешностей в размерах приборов.

Одиннадцатый ряд — окончательный. В процессе кладки устанавливают и закрепляют обвязку или фаянс. Водогрейную коробку закрывают сверху кирпичом, и остается только один вертикальный канал. Сверху духовку смазывают глиняным раствором. Этот ряд кладки должен быть выполнен строго горизонтально, так как на него будет укладываться чугунная плита.

Двенадцатый ряд практически кладки не имеет. Только на тонком слое глиняного раствора укладывают плиту с конфорками над топливником и духовкой.

Все рассмотренные кухонные очаги выполнены с отводом дымовых газов с продольной стороны, но иногда их приходится располагать так, чтобы газы выходили с торцевой стороны. На рисунке 53 показаны варианты такого вывода газов для плиты размером 1150х640 мм, то есть с духовкой и водогрейной коробкой. Здесь выкладывают по-другому только четвертый — седьмой ряды, остальные остаются без изменения.


Рис. 53. Варианты отвода дымовых газов с торцевой стороны плиты:

а — место присоединения плиты к щитку или дымоходу


Как было сказано ранее, плиты часто подключают не к дымовой трубе, а к отопительному щитку. Предлагаем варианты подключения плиты размером 1150x640 мм к отопительному щитку размером 890х380 мм. Здесь же даны основные размеры площади, занимаемой плитой и щитком (рис. 54).


Рис. 54. Схемы присоединения плиты к отопительным щиткам


Плита с духовкой и водогрейной коробкой производительностью 100 обедов в смену (рис. 55) предназначена для столовых, полевых станов, общежитий. Можно устроить ее в кухне или на улице под навесом. Имеет размер: длину — 1550 мм, ширину — 770 и высоту — 910 мм. Масса — 790 кг. Теплоотдача при двух топках в сутки — 900-1000 ккал/ч.


Рис. 55. Кухонная плита с духовкой и водогрейной коробкой производительностью 100 обедов в смену


Материалы: кирпич обыкновенный — 200 штук; глина обыкновенная — 4,5 ведра; песок — 3,5 ведра; колосниковая решетка — 252х300 мм; топочная дверка — 260x240 мм; поддувальная дверка — 160x170 мм; две прочистные дверки — 150х95 мм; водогрейная коробка — 850х180х420 мм; духовой шкаф — 650х380х400 мм; шесть плит чугунных составных с двумя конфорками 55х20; сталь полосовая 800х100х3 мм; угловая сталь — 30х30х4 мм — 5,1 пог. м; предтопочный лист — 500х700 мм. Если плиту ставят на деревянном основании, то под нее укладывают два слоя войлока, смоченного в глиняном растворе, покрывают стальным листом и крепят гвоздями.

Печь кладут в том же порядке, что и ранее описанную. Полосовую сталь укладывают над рамкой духового шкафа в двенадцатом ряду для того, чтобы на нее можно было опереть тринадцатый ряд кладки, на которую укладывают составные плиты. Для прочности этого ряда его облицовывают фаянсом, для чего и требуется угловая сталь.

Отопительные щитки

В кухонных очагах или плитах только небольшая часть тепловой энергии, выделяемой топливом, идет на приготовление пищи. Остальное тепло расходуется на нагревание кирпичной кладки плиты. В коротких дымоходах кухонных плит мало поглощается тепла, большая его часть теряется в трубе с отходящими дымовыми газами и попадает в атмосферу. Поэтому, чтобы избежать потерь тепла, к отопительным щиткам подключают плиты.

Отопительный щиток — это небольшая приставная стенка с дымооборотами внутри. Чаще всего отопительные щитки нагреваются отходящими от кухонной плиты газами и не имеют при этом самостоятельной топки. В этом случае щитки не могут выделять большого количества тепла. Были разработаны конструкции щитков со своими небольшими топками. Они удобны тем, что их можно нагревать независимо от плиты.

Щитки чаще всего выкладывают толстостенными, в полкирпича, которые требуют хорошего прогрева и оправдывают себя при длительной работе плиты. К тому же они менее опасны в пожарном отношении. Бывают (много реже) щитки тонкостенные со стенками толщиной в четверть кирпича. Работают они удовлетворительно. В целях противопожарной безопасности такие щитки лучше всего выполнять в металлических кожухах.

Поверхности щитков облицовывают изразцами (только в процессе кладки щитка), оштукатуривают или просто оставляют кирпичными.

Работать щитки могут в летнем и зимнем вариантах. В первом случае у них нагревается только одна часть щитка, во втором — весь щиток. Щитки необходимо класть на прочном фундаменте, с обязательной укладкой гидроизоляции и строгим соблюдением противопожарной безопасности.

Конструкций щитков очень много. Они бывают с малой и большой теплоотдачей. На рисунке 56 показана кухонная плита 5 с отопительным щитком 4, дымовой задвижкой 3, поставленной в дымоходе трубы, перегородками (стенками) 2, кирпичной разделкой 1, поставленными между щитком и перегородками, толщина которых должна быть не менее 25 см. Этот щиток всегда нагревается отходящими от плиты горячими газами.


Рис. 56. Кухонная плита с постоянно нагреваемым отопительным щитком:

1 — кирпичная разделка; 2 — перегородки (стенки); 3 дымовая задвижка; 4 — щиток, 5 — плита


В щитке другой конструкции (рис. 57) все дымовые задвижки расположены вверху. Задвижка 3 показывает зимний ход газов, задвижка 2 — летний. Дымовые газы можно прямо направлять в дымовую трубу (открыть задвижку 2 и закрыть задвижку 3). Если закрыть задвижку 2 и открыть задвижку 3, то газы направятся в дымообороты щитка. Проходя по каналам, они отдают часть тепла стенкам и охлажденными уходят в трубу.


Рис. 57. Отопительный щиток с двумя ходами: зимним и летним


Плита с отопительным щитком, имеющим летний и зимний ход, показана на рисунке 58.


Рис. 58. Разрез щитка с задвижками, расположенными вверху и внизу:

1 — чугунный настил (плита) с двумя конфорками; 2 — щиток; 3 — дымовая задвижка в трубе; 4, 5 — задвижки для регулировки движения газов в летнее и зимнее время

Щиток толстостенный

Отопительный щиток (рис. 59) имеет размер: длину — 890 мм, ширину — 380 и высоту — 2240 мм. Теплоотдача при одной топке в сутки — 430 ккал/ч, при двух топках в сутки — 600 ккал/ч. Масса — 1210 кг. Лицевые поверхности оштукатуривают.


Рис. 59. Отопительный щиток толстостенный:

1 — места присоединения кухонной плиты; 2 — чистка; 3 — гидроизоляция; 4 — самоварник; 5 — вентиляционная решетка с клапаном


Движение горячих газов в щитке регулируют тремя домовыми задвижками. В теплое время года задвижки № 1 и № 3 открыты и газы напрямую направляются в трубу. В холодное время года задвижку № 3 закрывают, а задвижки № 1 и № 2 оставляют открытыми. В этом случае горячие газы, проходя весь дымоход щитка, нагревают его. В насадной трубе для вентиляции помещения устраивают вентиляционный канал, закрываемый решеткой с клапанами (жалюзи), что дает возможность или держать решетку открытой, или прикрывать ее частично, или же полностью закрывать.

Материалы: кирпич обыкновенный — 309 штук; глина обыкновенная — 6 ведер; песок — 3–4 ведра; три задвижки дымовые — 130х130 мм; три прочистные дверки 130x140, одна из них для самоварника; вентиляционная решетка с клапаном — 150–200 мм; толь для гидроизоляции — 1,5 м.

Фундамент под щиток возводят на два ряда кирпичной кладки ниже уровня пола. На него кладут ряд кирпичной кладки, по которой настилают гидроизоляцию, размечают фигуру печи и кладут второй ряд кирпичной кладки, который доходит до уровня чистого пола. Затем выкладывают щиток.

Первый ряд кладут из целого кирпича.

Четвертый ряд кладут, как показано в порядовке, с установкой двух чисток с оставлением места или окна для присоединения к щитку кухонной плиты.

Пятый ряд кладут, как четвертый, но только с соблюдением перевязки швов.

Шестой ряд кладут так, чтобы оставить два канала с перекрытием чисток и места для кухонной плиты.

Седьмой ряд, а также другие нечетные ряды до двадцать пятого кладут так, как показано в порядовке, образуя три канала.

Восьмой ряд и другие четные ряды до двадцать шестого кладут согласно порядовке.

Десятый, одиннадцатый, семнадцатый, двадцать третий и двадцать четвертый ряды похожи на предыдущие, но для надежной перевязки швов кладку выполняют по-другому.

Восемнадцатый ряд кладут, как десятый и двадцать четвертый, и на канале с правой стороны ставят задвижку № 2.

Ряды двадцать первый и двадцать второй кладут с установкой самоварника.

Двадцать седьмой ряд кладут так, чтобы два канала с левой стороны объединить в один. В этом же ряду перекрывают самоварник.

В двадцать восьмом ряду устанавливают задвижку № 3. Двадцать девятый ряд кладут согласно порядовке. Он похож на предыдущий ряд только с тщательной перевязкой швов.

В тридцатом ряду с левой стороны перекрывают канал, а с правой ставят задвижку № 1.

Тридцать первый и тридцать второй ряды выполняют с соблюдением перевязки швов. Из порядовок видно, что верх щитка (перекрышу) кладут в три ряда, что отвечает противопожарным требованиям.

Тридцать третий — тридцать шестой ряды кладут, как показано. В тридцать шестом ряду остаются вентиляционный и дымовой каналы.

Щиток облегченной конструкции

Отопительный щиток — в металлическом каркасе, с облицовкой асбофанерой или металлическими листами (рис. 60). Облицовочные листы заранее раскраивают строго по шаблонам в соответствии с размерами стенок печи и со всеми полагающимися отверстиями для дверок, чисток.


Рис. 60. Отопительный щиток облегченной конструкции в металлическом каркасе, облицованный асбофанерой:

1 — патрубок, 2 — место присоединения плиты к щитку; 3 — чистка; 4 — задвижка; 5 — самоварник


По наружному каркасу щиток имеет размер: длину — 730 мм, ширину — 340 и высоту — 1930 мм.

Теплоотдача зависит от того, как подключен щиток к кухонной плите. Масса — 650 кг. Щиток устанавливают на прочном полу. Каркас устроен так, что внизу имеются ножки высотой 65 мм, обеспечивающие хорошую вентиляцию нижней части щитка. Кладка — из обыкновенного кирпича на ребре или в четверть кирпича.

Материалы: кирпич обыкновенный — 141 штука; глина — 2,5 ведра; песок — 2,5 ведра; три дымовые задвижки — 130х130 мм; три дверки — 130x130 мм; патрубок из кровельной стали диаметром — 150 мм, длиной 150 мм, нужный для подключения щитка к трубе или печке. После установки патрубка его облицовывают кирпичом. На патрубок надевают рукав из кровельной стали для отвода дыма в трубу. Каркас — комплект 730x340x1930 мм, облицованный асбофанерой или металлическими листами. Его изготовляют из угловой стали 30х30х4 мм — 12 пог. м, из асбофанеры толщиной 5 мм — 4 кв. м.

Кладку выполняют в следующей последовательности. Сперва устанавливают каркас печи или щитка, имеющий внизу сварную раму из стального уголка 30x30x5 мм. Если печь или щиток возводят на деревянном полу, то последний предварительно подготавливают, укладывая два слоя войлока, пропитанного в глиняном растворе, или по асбесту, обитому сверху листовой сталью.

Каркас должен прочно опираться на подготовленное основание всеми четырьмя ножками и быть строго вертикален. Установив и выверив каркас, закладывают нижний ряд облицовочных листов (асбофанеру или сталь) и приступают к кладке. Ранее к нижней части каркаса к четырем угловым металлическим стойкам приваривают или приклепывают уголки, на которые затем кладут лист кровельной стали или асбестоцементную плиту, служащую основанием. На это основание укладывают слой войлока, а на него — первый ряд из кирпича плашмя. Напоминаем, что если пол несгораемый, то можно устанавливать печь или щиток прямо на полу. Выложив под, кладку ведут до уровня первого ряда облицовки, то есть на высоту 625 мм.

Кирпичи укладывают на ребро, но так, чтобы они очень плотно, без пустот, прилегали к стенкам облицовки каркаса. Для этой цели применяют тонкий слой глиняного раствора. Пустоты между стенками облицовки каркаса и кирпича снижают нагревание стенок печи или щитка.

Выложив первый ряд, устанавливают облицовку каркаса для второго ряда и продолжают работу.

Напоминаем, что каркас следует выполнять весьма строю, соблюдая все размеры для дверок, чисток, задвижек.

Плита со щитком, имеющим самостоятельную топку

Конструкция плиты (рис. 61) имеет два хода — зимний и летний. Она удобна тем, что можно топить одну плиту, не нагревая щитка, или наоборот — топить только один щиток. Размер плиты: длина — 1400 мм, ширина — 1020, высота — 2170 мм. Масса со щитком — 2800 кг. Теплоотдача — 3100 ккал/ч при двух топках в сутки. Лицевые стороны плиты и щитка штукатурят.


Рис. 61. Кухонная плита со щитком, имеющим самостоятельную топку:

1 — вентиляционная решетка; 2 — самоварник; 3 — задвижка; 4 — топка; 5 — поддувало; 6 — чистка; 7 — водогрейная коробка; 8 — духовка


Материалы: кирпич обыкновенный — 680 штук; глина — 22 ведра; песок — 20 ведер; колосниковая решетка — 262х300 мм; колосниковая решетка — 130х300 мм; топочная дверка — 205х205 мм; топочная дверка — 130x205 мм; две поддувальные дверки — 130х140 мм; две прочистные дверки — 130х140мм; три дымовые задвижки — 240х130 мм; водогрейная коробка — 120х340х560 мм; самоварник диаметром 100 мм или дверка — 130х140 мм; шесть плит чугунного настила с двумя конфорками — 200х520 мм; сталь полосовая — 50x22x550 мм; 4 м стали угловой 30х30х4 мм; предтопочный лист из кровельной стали — 500x700 мм.

Перед кладкой плиты выполняют прочный фундамент с гидроизоляцией.

Первый и второй ряды кладут, как показано.

Третий ряд выполняют, как предыдущие, с оставлением зольника под топку.

В четвертом ряду устанавливают две задвижки для летнего и зимнего ходов, а также две поддувальные и две прочистные дверки. Прочистные имеют внутри кирпичные закладки.

Пятый ряд выполняют, как четвертый, с соблюдением перевязки швов.

В шестом ряду перекрывают все дверки, уменьшают все каналы и ставят духовой шкаф и водогрейную коробку.

Седьмой ряд кладут, как показано. Укладывают две колосниковые решетки: для топливника плиты и топливника щитка. Кирпич с двух сторон каждой решетки стесывают. В порядовке они показаны черточками (см. разрезы А — А и В — В). С левой стороны длинный канал перекрывают для образования двух коротких.

Восьмой ряд кладут по порядовке и устанавливают топочные дверки: бо́льшую по размеру — для топливника плиты, меньшую — для топливника щитка.

Девятый и десятый ряды кладут, как показано. Над духовкой в десятом ряду кладут стальную полосу длиной 550 мм.

В одиннадцатом ряду перекрывают дверки. Верх духовки смазывают глиняным раствором. С правой стороны водогрейной коробки канал закрывают кирпичом, а с левой стороны оставляют незаложенным.

Двенадцатый ряд заканчивает кладку плиты, то есть в нем укладывают чугунный настил, укрепляют вокруг плиты фаянс из угловой стали.

Оставшиеся порядовки относятся к кладке щитка. Они показаны на рисунке.

В шестнадцатом ряду кирпич у второго канала справа стесывают (заштриховано, см. разрез А — А).

В девятнадцатом ряду ставят задвижку, закрывающую трубу. Начиная с этого ряда и кончая двадцать пятым, из имеющихся трех каналов образуется пять. В двадцать втором ряду ставят самоварник. Затем в последующих рядах остается один канал-труба. Перекрышку щитка кладут в три ряда кладки. Для уширения канала трубы в тридцать первом ряду кирпич стесывают (заштриховано).

В тридцать втором и тридцать третьем рядах ставят вентиляционную решетку, для чего образуют отдельный канал.

Отопительно-варочные печи

Отопительно-варочные печи представляют собой соединение отопительной печи и кухонной плиты. Такие печи имеют много преимуществ. Они удобны в эксплуатации, занимают меньше места, чем две стоящие отдельно печи. Горячие газы, имеющие большую теплоотдачу, используются более рационально.

В варочной камере имеется вытяжка, через которую уходят в атмосферу все запахи приготовляемой пищи. Печи имеют два дымохода: один летний, по которому горячие газы прямо из плиты направляются в дымовую трубу; другой зимний, когда горячие газы из плиты направляются по каналам, нагревая печь.

Уход за отопительно-варочной печью гораздо меньше, чем за двумя отдельно стоящими печами. Поэтому они нашли широкое распространение в небольших квартирах, малоэтажных домах, в дачном строительстве.

Печи бывают разных размеров, теплопроизводительности и конструктивных решений. Чаще всего их оштукатуривают.

Ниже приведены различные конструкции печей.

Печи конструкции В. А. Потапова

Печи конструкции В. А. Потапова имеют два варианта исполнения. Небольшая прямоугольная печь (рис. 62) имеет размер: длину — 510 мм, ширину — 640, высоту — 1820 мм. Теплоотдача: при одной топке в сутки 850 ккал/ч, при двух — 1300 ккал/ч. В печи имеется варочная камера с чугунной плитой, вентиляционным отверстием в варочной камере и духовым шкафом. Топится она только по-зимнему. Печь может присоединяться к стенному дымоходу, коренной трубе или насадной трубе. В последнем случае шесть последних рядов кладут по-другому. Она может закрываться одной задвижкой или двумя, одной вьюшкой или двумя или в комбинации вьюшкой и задвижкой. Ставят их в переходном патрубке, или стенном канале, или же в насадной трубе.


Рис. 62. Отопительно-варочная печь конструкции В. А. Потапова (первый вариант):

1 — поддувало; 2 — топливник; 3 — варочная камера; 4 — духовка; 5 — колосниковая решетка; 6 — чистки 140х140 мм; 7 — вытяжное отверстие (вентиляционный канал); 8 — чугунная плита; 9 — дымовая труба


Эта печь устроена так, что над чугунной плитой расположена варочная камера, закрываемая дверкой. Для удаления запахов внутри камеры предусмотрено вентиляционное отверстие или канал диаметром 60 мм, что хорошо показано в разрезах. Выше варочной камеры расположен духовой шкаф. Горячие газы из-под чугунной плиты направляют по каналу под этот шкаф, нагревая его с нижней и задней сторон, и только после этого попадают в дымовой канал.

Материалы: кирпич обыкновенный — 260 штук; глина — 10 ведер; песок — 10 ведер; топочная дверка — 130х190 мм; поддувальная и прочистная дверки — 130х130 мм; дымовая задвижка — 130x240 или 130х130 мм; колосниковая решетка — 180х200 мм; плита чугунная — 350х450 мм (цельная с одной конфоркой); духовой шкаф — 290x420x280 мм; предтопочный лист; металлическая пластинка — 4х25x250 мм (см. 23-й ряд); войлок для предтопочного листа и два слоя гидроизоляции (толь) — 510x640 мм.

Печь должна стоять на прочном фундаменте с уложенной гидроизоляцией, лучше в два слоя. Первый ряд выполняют по фигуре или нанесенным линиям.

Первый ряд кладут из целого кирпича строго горизонтально, укладывая кирпич на раствор.

Во втором ряду закладывают канал размером 140x260 мм и чистку против него (выдвинут кирпич) или ставят прочистную дверку.

В третьем ряду — тот же канал и чистку, устраивают зольник и укрепляют дверки для него.

Четвертый ряд перекрывает чистку, оставляя поддувало без изменения.

Пятый ряд ведут согласно порядовке, устанавливают колосниковую решетку со стесыванием кирпича с передней и задней сторон топливника. Размеры канала оставляют без изменения. В шестом ряду устанавливают дверку топливника. Канал остается без изменения.

Седьмой ряд такой же, как предыдущий, только изменяют перевязку швов.

Восьмой ряд перекрывает топочную дверку, образуя отверстие для укладки на него чугунной плиты с оставлением с правой стороны канала для выхода газов из-под плиты в ранее имеющийся канал.

Девятый ряд показывает размеры варочной камеры и установленной в ней чугунной плиты.

Десятый ряд кладут, как показано. С левой и задней сторон стенку делают толщиной в четверть кирпича, уширяя тем самым размер камеры. В этом ряду ставят дверку варочной камеры.

Одиннадцатый и двенадцатый ряды кладут, как показано в порядовках.

Тринадцатый ряд имеет с правой стороны варочной камеры отверстие для вытяжного канала. Заднюю стенку оставляют в четверть кирпича. С левой стороны кладку ведут в полкирпича с небольшим стесыванием, уширяющим камеру. Необходимо напомнить, что вытяжное отверстие делают круглым или квадратным.

В четырнадцатом ряду оставляют отверстие вверху камеры для увеличения ее высоты.

Пятнадцатый ряд перекрывает предыдущий и оставляет только один канал, идущий со второго ряда.

В шестнадцатом и семнадцатом рядах оставляют чистки (выдвинуты кирпичи).

Восемнадцатый — двадцать первый ряды кладут согласно порядовке. Устанавливают духовой шкаф. В последнем ряду с задней стороны выдвигают кирпич для устройства канала, с помощью которого печь подключают к коренной трубе или стенному дымоходу.

Двадцать второй и двадцать третий ряды похожи друг на друга. В последнем ряду ставят металлическую пластинку, необходимую для поддержания кирпича следующего ряда.

Двадцать четвертый ряд и последующие показывают перекрытие верха печи и канала.

В том случае, когда на печи приходится устраивать насадную трубу (разрезы Д — Д и Г — Г), кладку с двадцать третьего по двадцать восьмой ряды выполняют согласно порядовкам.

Другая печь В. А. Потапова (рис. 63) имеет больший размер: длину — 1160 мм, ширину — 640, высоту — 1890 мм. Теплоотдача печи при одной топке в сутки — 2400 ккал/ч, при двух топках — 3900 ккал/ч.


Рис. 63. Отопительно-варочная печь конструкции В. А. Потапова (второй вариант):

1 — поддувало; 2 — топливник; 3 — варочная камера; 4 — верхняя задвижка; 5 — нижняя задвижка; 6 — водогрейная коробка; 7 — духовка; 8 — чистка; 9 — вентиляционное отверстие; 10 — полосовая сталь


Печь может работать на всех видах твердого топлива. Если печь будет топиться каменным углем и антрацитом, то сильно нагревающиеся ее части выкладывают из огнеупорного кирпича, а колосниковую решетку опускают на один ряд кладки ниже.

Чтобы увеличить теплоотдачу, печь выкладывают выше, повторяя двадцать второй и двадцать третий ряды кладки, то есть доводя высоту печи до тридцати пяти рядов, если, конечно, позволяет высота дома. Следует помнить, что если высота печи увеличивается сверх (перекрыши) указанных двадцати семи рядов, то верхнюю часть печи, обращенную к потолку, всегда выполняют в три ряда (на рисунке 63 показано два ряда). Потолок над перекрышей оштукатуривают.

Печь состоит из зольника или поддувала 1, топки 2, духового шкафа 7, чистки 8, варочной 3 и верхней камеры, закрываемой двумя дверцами. Внутри камеры с нижней стороны располагается чугунная плита, а вверху вентиляционное отверстие для вывода различных запахов из камеры в дымовой канал. Рядом с варочной камерой 3 расположена водогрейная коробка 6, над которой выше располагают две дымовые задвижки 4, 5. Нижняя задвижка 5 служит для пользования летом, когда она открыта, через нее выходят газы прямо в трубу, при этом верхняя задвижка 4 должна быть открыта. Для нагревания помещения в зимнее время нижнюю задвижку 5 закрывают, и тогда горячие газы, пройдя водогрейную коробку 6, поворачивают через первый канал в верхнюю камеру с насадкой, нагревают и выходят через второй канал, расположенный на одном уровне с первым, в дымовую трубу, которая находится над нижней — летней задвижкой. Назначение верхней задвижки — закрывать печь после топки.

Материалы: кирпич красный — 580 штук; глина — 3,2 ведра; песок — 2,3 ведра; дверка топочная — 200х210 мм; две поддувальные и прочистные дверки — 130х130 мм; дверка варочной камеры 620x420 мм; две дымовые задвижки — 140x270 мм; чугунная плита с двумя конфорками — 750x530 мм; колосниковая решетка — 190х250 мм; духовой шкаф — 570х450х350 мм; водогрейная коробка — 580x120x205 мм, один предтопочный лист.

Печь ставят на прочный фундамент с хорошей гидроизоляцией. Верх фундамента кладут по уровню.

Первый ряд укладывают выше уровня пола строго по угольнику. Для работы можно применять половинки, которые выкладывают так, как это указано в третьем ряду.

Второй ряд ведут по указанной порядовке из целого кирпича, но можно использовать и половинки или трехчетверки.

В третьем ряду соблюдают тщательную перевязку швов. Закладывают поддувало, дверку ставят на второй ряд.

Четвертый ряд кладут согласно порядовке, с закладкой чистки 8, ставят ее на третий ряд. Внутри кладки укладывают целый кирпич на ребро (рис. 63, а).

В пятом ряду отверстие над поддувалом с задней стороны перекрывают кирпичом (половинкой) для того, чтобы ее длина была не более 250 мм. Кирпич на ребро не ставят, так как один кирпич, поставленный на ребро, равен двум рядам кладки плашмя. В процессе кладки дверку перекрывают кирпичом.

Шестой ряд выкладывают так. Сперва укладывают колосниковую решетку и духовой шкаф с опорой на пятый ряд. Заднюю стенку за духовым шкафом кладут в четверть кирпича, устанавливаемого на ребро. С правой стороны духовка слегка опирается на кирпич (рис. 63), уложенный на ребро, или только соприкасается с ним. Пространство между духовкой и стенкой печи шириной 130 мм следует разделить на две части для образования двух каналов (рис. 63, б, в) длиной по 165 мм. Для этого кирпич и в дальнейшем устанавливают на ребро до восьмого ряда. Колосниковая решетка должна быть уложена так, чтобы между ней и кладкой было пространство в 15–20 мм, необходимое на расширение металла. Задняя часть пода должна быть поднята по сравнению с передней частью на 20–30 мм. Кирпич вокруг решетки стесывают на конус с таким расчетом, чтобы вокруг него образовался как бы колодец, обеспечивающий скатывание топлива на решетку (см. разрезы А — А и В — В).

В седьмом ряду с левой стороны духового шкафа выкладывают стенку из кирпича на ребро, которая вплотную на растворе примыкает к шкафу. Эта облицовка необходима для того, чтобы предохранить стальную стенку шкафа от быстрого пригорания. В этом же ряду закладывают топочную дверку 2. Облицовку выполняют до одиннадцатого ряда.

Восьмой и девятый ряды кладут согласно порядовке. На кирпич (рис. 63, а) ставят кирпич (рис. 63, г), образуя стенку между двумя каналами, которая идет до одиннадцатого ряда. Стенку за духовкой выполняют в четверть кирпича.

В десятом ряду топочную дверку перекрывают. Кромку верхнего ряда облицовки стесывают и закругляют (заштриховано), обеспечивая лучшее передвижение горячих газов из топки в пространство между духовкой и плитой. Эта облицовка должна быть поднята над духовкой на 5-10 мм. Верх духовки смазывают или покрывают глиняным раствором толщиной 5-20 мм. Правую сторону задней стенки за духовкой выкладывают не из кирпича на ребро, а из кирпича плашмя. С передней стороны над духовкой кладут полосовую сталь толщиной не менее 5 мм, чтобы предохранить духовку от нагрузки на нее кирпича.

Одиннадцатый ряд выполняют полностью из кирпича плашмя. Около канала (рис. 63, б) укладывают кирпич (рис. 63, д), три четверти которого опирается на духовку. Этим кирпичом закрывают боковую сторону канала (рис. 63, б). Точно на такую же высоту должен выступать кирпич (рис. 63, г), разделяющий два канала. Таким образом, одиннадцатый ряд кладки должен быть на 60–70 мм выше верха духового шкафа. Если на кирпич (рис. 63, д) и переднюю стенку положить кирпич (рис. 63, е), то есть закрыть канал (рис. 63, в), то между кирпичом (рис. 63, е) и духовкой останется пространство или канал высотой 60–70 мм, длиной 165 мм. На этот ряд кладут плиту большой конфоркой над топливником.

Одиннадцатый ряд А показывает уложенную плиту. Она может быть целой или составной, но такого размера, чтобы доходила до самых каналов и опиралась там на кирпичи. В дальнейшем на эту плиту будут опираться стенки печи. Опирать ее на духовку нельзя. Если же по каким-либо причинам невозможно положить вплотную к каналам плиту, то следует под стенку уложить стальную, а еще лучше чугунную полосу.

В двенадцатом ряду с опорой на одиннадцатый ряд ставят дверку варочной камеры. Левую стенку до семнадцатого ряда кладут из кирпича на ребро. С правой стороны печи остается только один канал (рис. 63, б). С левой стороны канала кирпич укладывают на чугунный настил или плиту.

Тринадцатый ряд кладут, как показано в порядовке.

Четырнадцатый ряд выкладывают так, чтобы с правой стороны печи стенки вокруг канала (рис. 63, б) были в четверть кирпича. С передней стороны против канала закладывают чистку размером 70x130 мм (в половину кирпича плашмя), из которой он выдвинут на лицевую сторону печи.

Пятнадцатый ряд похож на четырнадцатый; в нем перекрывают чистку.

Шестнадцатый ряд в первую очередь требует установки водогрейной коробки так, чтобы она находилась над каналом (рис. 63, б), а с двух сторон коробки образовалось два канала. У стенки левого канала закладывают вентиляционное отверстие размером 70х130 мм, которое закрывают дверкой или же оставляют открытым.

Семнадцатый ряд в основном кладут из кирпича плашмя и только с правой стороны печи на ребро. После кладки ряда на него укладывают три полоски из полосовой стали, на которые укладывают кирпич для перекрытия варочной камеры.

Восемнадцатый ряд рассматривает укладку кирпича на стальные полосы, уложенные в семнадцатом ряду.

Девятнадцатый ряд перекрывает водогрейную коробку так, что из двух длинных каналов остаются два коротких, проходящих с боковых сторон коробки.

Двадцатый ряд в основном кладут в полкирпича. С левой стороны печи закладывают две чистки размером 70х130 мм (выдвинуты кирпичи). С правой стороны остаются те же каналы. В середине печи ставят перегородку толщиной в полкирпича, а поперек ее — два кирпича на ребро. Перегородка обеспечивает повышенное нагревание верхней части печи. Каналы при этом уменьшаются.

Двадцать первый ряд похож на предыдущий, чистки перекрывают, у перегородки кладут кирпич только плашмя. С правой стороны стенку у каналов выполняют в четверть кирпича.

Двадцать второй ряд практически кладут так же, как и предыдущий, из кирпича плашмя. Устраивают два канала с правой стороны печи, для чего укладывают два кирпича (рис. 63, ж), примыкающих к внутренней перегородке.

Двадцать третий ряд выкладывают, как показано в порядовке, но над одним из каналов, выходящих на переднюю сторону, ставят нижнюю или зимнюю задвижку 5.

Двадцать четвертый и двадцать пятый ряды одинаковы, выкладывают их с соблюдением перевязки швов.

Двадцатьшестой ряд перекрывает верхнюю камеру с оставлением двух каналов. Выкладывают этот ряд несколько больше предыдущих примерно на половину кирпича по длине и ширине, то есть по всем сторонам напускают по 1/4 кирпича, образуя карниз.

Двадцать седьмой ряд — второй ряд перекрытия верха печи или камеры. На нем ставят вторую верхнюю задвижку 4, которой закрывают печь после топки.

Двадцать восьмой и двадцать девятый ряды показывают кладку трубы в пятерик размером 260х130 мм. Это ряды чередуются между собой во время кладки трубы.

Обычная печь с тепловым шкафом

Печь (рис. 64) имеет размер: длину — 1020 мм, ширину — 640, высоту — 2240 мм. Масса без трубы — 1900 кг. Теплоотдача при двух топках в сутки — 2800 ккал/ч.


Рис. 64. Отопительно-варочная печь обычная и с тепловым шкафом:

1 — чистка; 2 — самоварник; 3 — зимняя задвижка; 4 — летняя задвижка; 5 — зимний ход; 6 — летний ход; 7 — вентиляция; 8 — топочная дверка; 9 — чугунная плита; 10 — дымовая задвижка для закрывания печи; 11 — стальные полосы 50х5 мм длиной 500 мм; 12 — угловая сталь 50х50х5 мм длиной 620 мм; 13 — кирпичная кладка на ребро; 14 — гидроизоляция; 15 — уголок; 16 — уровень пола; а — изготовление дверки и решетки для духового шкафа; б — изготовление дверки для варочной камеры


Печь может быть выполнена в двух вариантах: как отопительно-варочная или с устройством теплового шкафа, в котором можно подогревать пищу и сохранять ее длительное время в горячем состоянии. Приготовлять пишу в тепловом шкафу нельзя, так как омывающие его горячие газы, проходя по дымовым каналам, достаточно охлаждаются. Такую печь топят по-летнему и по-зимнему, то есть летом дымовые газы направляются прямо в трубу, а в зимнее время — по дымовым каналам.

Материалы: кирпич красный и огнеупорный (для кладки сильно нагревающихся частей топливника и первых каналов). Если невозможно приобрести огнеупорный кирпич, его заменяют отборным красным. Кирпича красного требуется 397 штук; тугоплавкого или огнеупорного — 68 штук; глины обычной — 8 ведер; глины тугоплавкой или огнеупорной с шамотом — 34 кг; песка — 4 ведра; одна колосниковая решетка 250x252 мм; одна дверка обыкновенная топочная 250х205 мм; две полоски (для кляммеры) из стальной ленты толщиной 1 мм, шириной 20 мм и длиной по 650 мм или 1,3 м; четыре дверки 130х140 мм; дверка на вентиляционном канале 130х75 мм; три задвижки дымовые 130х140 мм; две плиты чугунные составные — 360х410 мм с конфоркой; плита чугунная без конфорки 190х410 мм (см. одиннадцатый ряд); для перекрытия варочной камеры балочки требуется 0,62 пог. м угловой стали 50х50х5 мм и 1 пог. м полосовой стали 50x5 мм; для одного комплекта теплового шкафа с решеткой нужно 1,5 пог. м угловой стали 30х30х4 мм; 1,1 кв. м кровельной стали, 1,75 пог. м ленты стальной 50x15 мм, то же 25x15 мм — 4 пог. м; петли; затвор для дверки шкафа; дверка для варочной камеры с рамкой (комплект 510х350 мм); угловая сталь 30х30х4 мм — 2 пог. м; кровельная сталь (6 кгс/м2) — 0,3 кг, лента стальная 25х15 мм — 2,2 пог. м; четыре петли; один затвор; кровельная сталь (5 кгс/м2) для предтопочного листа 500x700 мм — 0,35 кг, толь для гидроизоляции — 1,5 кв. м.

Печь ставят на прочном фундаменте, не доходящем до уровня пола на два ряда кирпичной кладки. После выкладывания первого ряда из кирпича, который следует хорошо выровнять, на него укладывают два слоя толя, а на него — второй ряд кладки на одном уровне с полом. Предпочтительнее делать гидроизоляцию на двух уровнях, один слой которого укладывают на 100–150 мм выше уровня земли. Выполнив фундамент, приступают к кладке самой печи.

Первый ряд выкладывают строго в угольник, с проверкой выложенного ряда на горизонтальность. С правой стороны печи устраивают зольниковую камеру или поддувало. С передней стороны против камеры кладут трехчетверки, стесывая их внутренние стороны в направлении к камере на конус для того, чтобы удобнее было выбирать золу.

Второй ряд имеет указатели всех разрезов печи. Кладут его так. Устанавливают сперва дверку поддувала, а затем кладут первый ряд с соблюдением тщательной перевязки швов.

Третий ряд кладут согласно порядовке. Поддувалу придают нужную форму, стесывая кирпич с двух боковых сторон. Высота кладки этого ряда равняется высоте рамки поддувальной дверки.

Четвертый ряд кладут в такой последовательности. Сперва выкладывают левую сторону печи, устанавливают дверку чистки и ведут кладку так, как показано в порядовке. Дверку поддувала перекрывают кирпичом, но так, чтобы сверху отверстие над зольником стало квадратным. Для этого кладут два кирпича, один из которых скалывают.

Пятый ряд похож на четвертый. Отверстие над зольником еще больше сужают, так как с передней стороны печи кладут два кирпича плашмя.

Шестой ряд выкладывают из обычного, но лучше огнеупорного кирпича (заштрихован клеточками). С передней стороны перед отверстием над зольниковой камерой, а проще перед колосниковой решеткой кирпич стесывают на конус (заштриховано) для того, чтобы топливо скатывалось на решетку. Колосниковую решетку кладут на пятый ряд кладки. Кладка шестого ряда не должна доходить до решетки по всем ее сторонам на 10–15 мм или несколько больше. Это необходимо для свободного расширения металла в процессе нагревания. Если такого зазора не оставить, то расширяющийся нагреваемый металл расстроит печную кладку. Зазор между решеткой и кладкой засыпают золой или песком. Укладка решетки хорошо показана в разрезе Г — Г.

Седьмой ряд кладут согласно порядовке. Ранее устроенный канал в виде буквы П перекрывают кладкой для образования трех каналов: двух квадратных размером в полкирпича (130х130 мм) и одного в полтора кирпича. В этом ряду устанавливают топочную дверку, но она опирается на шестой ряд и на нем же закрепляется.

Восьмой и девятый ряды похожи на седьмой и отличаются только перевязкой швов. В девятом ряду стенку, отделяющую топку от канала, вверху стесывают с двух сторон на конус, что обеспечивает более плавный переход газов из топки в этот канал (см. разрезы А — А и Б — Б).

Десятый ряд также выкладывают из огнеупорного кирпича как можно горизонтальнее, так как на него будет укладываться чугунный настил (плиты с одной конфоркой). В процессе кладки оставляют только два канала квадратного сечения с перекрытием топочной дверки и вдвиганием двух кирпичей против топливника задней стенки на 20 мм внутрь печи, что связано с размерами применяемых чугунных плит для варочной камеры (плиты несколько коротки). Основные размеры кладки этой порядовки даны в сантиметрах.

Одиннадцатый ряд кладут из обычного кирпича. С левой стороны печи остаются те же два канала, отверстие над топкой перекрывают чугунным настилом, сверху которого делают кладку. Чтобы оставить зазор 20 мм, между кладкой и настилом в кирпиче приходится срубать его кромки (показано в разрезах А — А и Б — Б). В этом же ряду с опорой на десятый ряд ставят дверку варочной камеры размером 570х410 мм, прочно закрепляя ее.

Двенадцатый ряд кладут согласно порядовке. Из двух квадратных каналов устраивают один в виде прямоугольника длиной в полтора кирпича.

Тринадцатый ряд выкладывают, как показано, и опять, как в ранее выполненных рядах; прямоугольный канал перекрывают для образования двух квадратных каналов 130х130 мм.

Четырнадцатый ряд практически кладут, как тринадцатый, но только с установкой задвижки, которая открывается летом, когда не требуется нагревать печь.

Пятнадцатый ряд выполняют, как и предыдущие, с соблюдением перевязки швов и перекрытием задвижки. В этом же ряду укладывают угловую сталь сечением 50x50x5 мм, длиной 620 мм и перекрывают верх варочной камеры на одном уровне с верхом рамки дверки, на которые затем укладывают кирпич.

Шестнадцатый ряд кладут согласно порядовке, с перекрытием дверки камеры, устройством в камере отверстия и установкой дверки в него размером 130х75 мм, которая необходима для вентиляции варочной камеры (удаление пара, гари, запахов).

Семнадцатый ряд кладут согласно порядовке, с перекрытием поставленной дверки и укладкой над верхом камеры двух стальных полос сечением 50х5 мм, длиной 500 мм, по которым и будет перекрываться верх варочной камеры.

Восемнадцатый и девятнадцатый ряды перекрывают верх камеры и кладут так, как показано, с соблюдением перевязки швов и оставлением двух каналов квадратного сечения с левой стороны печи.

Двадцатый ряд выкладывают так, что остается только один квадратный канал. Здесь же устанавливают дверку для самоварной трубы, задвижку, открываемую зимой, и чистку. Внутри кладки (печи) на верх перекрытой варочной камеры кладут два кирпича на ребро, с отступом от задней стенки на 40 мм, а от передней — на 110 мм.

Двадцать первый ряд кладут, как двадцатый, только с соблюдением перевязки швов.

Двадцать второй ряд выкладывают так, что образуются два канала квадратного сечения с левой стороны печи, перекрываются дверки и задвижки. Внутри печи кладку ведут на ребро так, чтобы оставить три продольных канала (два крайних шириной по 110 мм и средний — 50 мм).

Двадцать третий ряд кладут таким образом, чтобы остались два квадратных канала с левой стороны печи. В середине длинные каналы поперек перекрывают стенкой на ребро, с образованием двух прямоугольных каналов, внутри которых ставят кирпич на ребро, точно на таком же расстоянии, как и в двадцатом ряду.

Двадцать четвертый ряд кладут, как двадцать третий, только с соблюдением перевязки швов.

Двадцать пятый и двадцать шестой ряды аналогичны двадцать второму и выполняют с соблюдением строгой перевязки швов.

Двадцать седьмой ряд кладут так, что остается с левой стороны печи только один квадратный канал 130х130 мм. Внутри печи ставят три кирпича на ребро на равном расстоянии от стенок печи и друг от друга.

Двадцать восьмой ряд такой же, как и двадцать седьмой; кладку ведут с соблюдением перевязки швов.

Двадцать девятый ряд выполняют так, что с левой стороны печи остается один канал квадратного сечения 130х130 мм, а со стороны передней стенки укладывают два кирпича с выходом внутрь на половину их длины. Они опираются на ранее уложенные кирпичи на ребро.

Тридцатый ряд перекрывает тепловую камеру с установкой задвижки для закрывания печи в целом. Задвижку крепят над квадратным каналом. Расположение кирпича показано в порядовке.

Тридцать первый и тридцать второй ряды выполняют, как показано в порядовках, с соблюдением перевязки швов. Таким образом, над верхом печи, то есть над тепловой камерой (у потолка), кладка выложена в три ряда, что необходимо для противопожарной безопасности.

Тридцать третья и тридцать четвертая порядовки показывают кладку трубы в четыре кирпича с дымовым каналом размером 130х130 мм. Одинаково кладутся нечетные и четные ряды, соответственно чередуясь.

Эту же печь, но с тепловым шкафом выкладывают обычно, как было рассмотрено выше, но, начиная с двадцать первого по двадцать девятый ряды, кладут тепловую камеру, в которую вставляют тепловой шкаф, выполненный согласно чертежам из кровельной или утолщенной стали. Лучше всего его выполнять в закрой или сваркой.

При этом в ранее выполненном двадцатом ряду внутри тепловой камеры кирпичи на ребро не ставят.

Двадцать первый ряд кладут так же, как и двадцатый, с перевязкой швов, но в середине тепловой камеры, вместо двух кирпичей, поставленных на ребро, кладут столбик в половину кирпича, состоящий из двух рядов, на который затем будет опираться тепловой шкаф (разрез А — А).

Двадцать второй ряд кладут согласно порядовке, с установкой теплового шкафа.

Двадцать третий — двадцать пятый ряды кладут, как двадцать второй, но с соблюдением перевязки швов.

Двадцать шестой ряд делают согласно порядовке, с оставлением двух квадратных каналов с левой стороны печи и как бы шахты над тепловым шкафом.

Двадцать седьмой ряд кладут, как показано в порядовке, с выпуском четырех кирпичей внутрь шахты, что повышает ее теплоемкость.

Двадцать восьмой ряд выполняют в соответствии с порядовкой. В нем оставляют только один квадратный канал 130х130 мм, а другой канал не меняют.

Двадцать девятый ряд кладут так, как и двадцать восьмой, но только со стороны передней стенки укладывают два цельных кирпича с выпуском внутрь на половину их длины. В дальнейшем по ним будет перекрываться верх печи тремя рядами кладки с постановкой задвижки (см. 30-32-й ряды). Трубу кладут, как указано выше. Чистку под тепловым шкафом лучше устроить небольшую, размером 130х75 мм и как можно плотнее закрываемую.

На рисунке 64, в показан тепловой шкаф из кровельной стали с решеткой, а на рисунке 64, г — рамка с дверкой для варочной камеры, которые изготовляют сами. Внутри теплового шкафа крепят два уголка, согнутых из стальной ленты, на которые будет укладываться стальная решетка (она свободно вынимается). Изготовить их можно также самим.

В процессе кладки необходимо строго придерживаться указанных размеров и чаще проверять качество кладки.

Печь конструкции И. Ф. Волкова

Печь (рис. 65) работает на всех видах твердого топлива. Размер печи: длина — 890 мм, ширина — 1020, высота — 2240 мм. Теплоотдача при одной топке в сутки — 2260 ккал/ч, при двух топках — 3400 ккал/ч. Обеспечивает теплом одну-две комнаты с одновременным приготовлением пищи на шесть человек.


Pиc. 65. Отопительно-варочная печь конструкции И. Ф. Волкова:

1 — поддувало; 2 — топка; 3 — варочная камера; 4 — чистка; 5 — дымовая задвижка, закрывающая печь, после топки; 6 — задвижка, открываемая зимой; 7 — самоварник; 8 — задвижка, открываемая летом; 9 — чистка; 10 — водогрейная коробка; 11 — духовка; 12 — чистка; 13 — металлическая сетка в рамке; 14 — гидроизоляция; 15 — замкнутая внутренняя камера; 16 — канал для вентиляции камеры; 17 — чугунные плиты; 18 — вентиляционное отверстие с дверкой


Печь топят по-летнему и по-зимнему, регулируя движение горячих газов задвижками 6, 8. При топке по-летнему горячие газы проходят под плитой, духовым шкафом и водогрейной коробкой, а затем направляют сперва в одну, затем в другую камеру, нагревая их, и только после этого через задвижку в трубу (см. разрезы А — А и Б — Б).

Материалы: кирпич красный — 520 штук; огнеупорный — 100 штук (применяют для топливника и первого канала), который можно заменить обычным; глина обычная — 12 ведер; огнеупорная — 5 ведер; песок — 10 ведер; топочная дверка — 220х25 мм; пять дверок размером 130х130 мм для поддувала, чистки, и самоварника; дверка для варочной камеры — 380х640 мм; три дымовые задвижки — 130x240 мм; колосниковая решетка — 180х250 мм; две составные чугунные плиты с конфоркой и одна глухая размером 180x530 мм; духовой шкаф 300х280х570 мм; водогрейная коробка — 150х280х380 мм и решетка для сушки — 350x580 мм.

Такие приборы, как дверку для варочной камеры, духовки и решетки для сушки, нужно изготовить самим (рис. 66). Рамку дверки варочной камеры делают из угловой стали сечением 30х30 мм, а непосредственно дверку — двухпольной, состоящей из двух половинок. Рамку для однопольной дверки духовки также изготовляют из угловой стали. Решетка для сушки состоит из рамки, выполненной из угловой стали 25x25x30 мм с сеткой из оцинкованной стали, выполненной из проволоки диаметром 1 мм с ячейками 10х10 мм. Вместо стальной сетки можно применять алюминиевую, луженую, медную или латунную.


Рис. 66. Изготовление дверок, решеток, водогрейной коробки для отопительно-варочной печи:

а — дверка пищевой камеры; б — духовой шкаф; в — вставная решетка духового шкафа; г — рамка дверок пищевой камеры; д — рамка с сеткой для пищевой камеры (ячейки 10х10 мм); е — водогрейная коробка


Выложив фундамент и уложив гидроизоляцию, приступают к кладке печи точно по порядовкам, соблюдая тщательную перевязку швов.

Первый ряд — сплошной. С левой стороны печи оставляют зольник под поддувалом размером 250x250 мм. Для удобства очистки зольника с внутренней стороны укладываемый кирпич стесывают на конус.

Второй ряд кладут согласно порядовке, с установкой дверки поддувала, которая опирается на первый ряд.

Третий ряд кладут, как указано. С правой стороны на втором ряду выполняют чистку под духовкой размером 130х130 мм. Кладку поддувала сужают, стесывая кирпич с двух ее сторон.

В четвертом ряду с правой стороны закладывают чистку, опирая ее на третий ряд. В процессе кладки перекрывают дверку поддувала, оставляя отверстие над поддувалом размером 260х130 мм, которое в пятом ряду будет закрыто колосниковой решеткой, уложенной на четвертый ряд. Около чистки с правой стороны печи на расстоянии 190 мм от задней стенки кладут половину кирпича (рис. 66, а), на который затем устанавливают духовку. Этот кирпич с внутренней стороны кладки закругляют.

Пятый ряд выполняют из огнеупорного кирпича (заштрихован клеточками). На нем укладывают колосниковую решетку так, чтобы она свободно лежала между кладкой, а зазор между ней и кладкой засыпают песком или золой. Кирпич вокруг решетки стесывают со всех сторон, чтобы образовалось как бы корыто, необходимое для того, чтобы на решетку скатывалось топливо (особенно уголь), и также укладывают половину кирпича (рис. 66, а).

Шестой ряд выкладывают так. Сначала ставят на пятый ряд топочную дверку, чтобы она опиралась на ранее поставленные половинки кирпича и между поставленной духовкой и кирпичной кладкой оставался зазор шириной примерно 100 мм. Такая установка духовки образует канал, для закрытия которого на ранее уложенную половину кирпича устанавливают целый кирпич, которого хватает на четыре ряда кладки стенок печи.

В процессе кладки образуются два канала: один вертикальный с правой стороны духовки, второй горизонтальный, расположенный с задней стороны духовки. Чтобы духовка со стороны топки быстро не прогорала, ее облицовывают кладкой кирпича на ребро, уложенного на растворе вплотную к духовке.

В седьмом ряду горизонтальный канал перекрывают целым кирпичом для того, чтобы сделать один канал за топкой, а другой за духовкой. Уложенный целый кирпич не перекрывает канал, так как он не доходит до духовки на 70 мм. В дальнейшем его перекрывают в восьмом ряду. В этом же ряду продолжают облицовывать духовку со стороны топливника.

Восьмой ряд выполняют, как и седьмой. Канал за духовкой полностью перекрывают.

В девятом ряду заканчивают облицовку духовки с выпуском верхнего кирпича на 10–15 мм выше верха духовки. Кромки этого кирпича со стороны топки стесывают, закругляя его (сверху заштрихован), чтобы обеспечить лучшее движение горячих газов. Верх духовки смазывают глиняным раствором на уровне с выпущенными кирпичами облицовки, а возможно и выше, так, чтобы между раствором и чугунной плитой остался канал высотой 60–70 мм.

В процессе кладки перекрывают дверку топки и перегородку между духовкой и стенкой печи, укладывая на нее кирпич (рис. 66, б) длиной примерно 210 мм. С задней стороны печи образуется горизонтальный канал, примерно шириной 100–120 мм, длиной около 520 мм. В этом ряду остаются три канала — горизонтальный сзади топки и два вертикальных около духовки.

В десятом ряду остаются горизонтальный и вертикальный каналы, а также пространство (канал) над топкой и духовкой.

Перед закладкой одиннадцатого ряда топку и часть верха духовки перекрывают чугунными плитами (с конфоркой над топкой), затем ставят водогрейную коробку и дверку варочной камеры. После этого кладут перегородку из кирпича на ребро, которая опирается на чугунную плиту с левой стороны плиты. Эта перегородка отделяет варочную камеру от водогрейной коробки. При этом надо помнить, что между перегородкой и водогрейной коробкой должен быть канал размером 50–70 мм. Каналы сзади печи такие же, как и в десятом ряду.

Двенадцатый и тринадцатый ряды кладут одинаково. Горизонтальный канал перекрывают на половину его длины.

В четырнадцатом ряду горизонтальный канал снова удлиняют, а кирпич, уложенный сзади водогрейной коробки, стесывают на конус (заштрихован).

Пятнадцатый ряд аналогичен четырнадцатому ряду, только канал за водогрейной коробкой удлиняют, кирпич стесывают (заштрихован), а водогрейную коробку перекрывают кирпичом.

В шестнадцатом ряду канал над водогрейной коробкой подвигают ближе к передней стенке на половину кирпича. Чтобы удержать уменьшающий длину канала кирпич, с задней стороны печи под него укладывают два куска полосовой стали размером 150х25х30 мм (показано пунктиром). Чтобы удержать решетку для сушки, в варочной камере по трем сторонам камеры в швах кладут пять кусков полосовой стали размером 120х25х3 мм с выпуском концов вовнутрь камеры на 20 мм. Эти куски стали в дальнейшем будут прижаты кирпичами последующего ряда.

Семнадцатый ряд выполняют так. Укладываемую решетку для сушки размером 350х580 мм закладывают чисткой на шестнадцатом ряду. Канал над водогрейной коробкой подвигают к передней стенке на половину кирпича, для чего укладывают целый кирпич, под который устанавливают два куска полосовой стали.

Восемнадцатый ряд кладут, как предыдущий, с уменьшением канала над чисткой.

Девятнадцатый ряд выкладывают с таким расчетом, чтобы удлинить канал сзади печи до 750–770 см. Канал над чисткой перекрывают задвижкой летнего хода, которую открывают тогда, когда не требуется нагревания печи.

В двадцатом ряду вверху варочной камеры, то есть с ее правой стороны, ставят дверку 130х130 мм, необходимую для вентилирования камеры во время приготовления пищи и т. д. С внутренней стороны лицевого ряда кладут угловую сталь (показана пунктиром) размером 600x50x50x5 мм, а на нее — кирпич.

Двадцать первый ряд аналогичен двадцатому, только над верхом варочной камеры укладывают три куска полосовой стали размером 500x50x5 мм. Эти полоски нужны для удержания кирпича, перекрывающего камеру.

В двадцать втором ряду перекрывают камеру, вытяжку, большую часть (630–640 мм) заднего канала и оставляют только два отверстия с правой стороны печи. В целом выполняют первый ряд перекрытия.

Двадцать третий ряд выполняют по порядовке, устраивая второй ряд перекрытия с закладкой с передней стороны печи самоварника.

Двадцать четвертый ряд кладут с таким расчетом, чтобы оставить внутри кладки замкнутую камеру, которая хорошо нагревается; ее в основном подключают в холодное время года. В этом ряду закладывают две чистки с левой стороны печи и с передней. В процессе кладки образуется большой горизонтальный канал.

Двадцать пятый ряд кладут, как предыдущий, только соблюдают перевязку швов и перекрывают самоварник.

Двадцать шестой ряд в процессе кладки перекрывает горизонтальный канал в двух местах с задней и левой сторон, с оставлением замкнутой внутренней камеры. Чистки при этом перекрывают.,

Двадцать седьмой ряд кладут согласно порядовке. С лицевой стороны с опорой на двадцать шестой ряд ставят задвижку. Замкнутая камера остается.

Двадцать восьмой ряд кладут по-другому. Замкнутая камера остается и образуется один большой горизонтальный канал вместо трех.

Двадцать девятый ряд аналогичен двадцать восьмому.

Тридцатый ряд перекрывает верх печи. Около задвижки нижнюю сторону кирпича стесывают на конус, и остается только один канал, направляемый в трубу.

Тридцать первый ряд вторым слоем кладки перекрывает верх печи с тщательным соблюдением перевязки швов. На нем устанавливают задвижку, закрывающую печь после топки.

Тридцать второй ряд является третьим слоем кладки верха печи или перекрыши. Выше его идет труба.

Тридцать третий ряд и другие показывают кладку трубы в пять кирпичей (пятерик), с оставлением канала размером 260х130 мм.

Русские печи

Общие сведения о печах

Русские печи бывают обыкновенными, то есть самыми простыми, со щитками и различных улучшенных конструкций (более сложные в изготовлении).

Обыкновенные печи имеют ряд недостатков. Они расходуют много топлива, из которого только 25–30 % выделяемого топливом тепла идет на нагревание печи, остальное уходит в трубу. Происходит это потому, что у печей нет никаких дымооборотов. Количество тепла, выделяемого печью, одинаково как зимой, так и летом. Печь прогревается только до уровня шестка или пода, остальная часть (800–900 мм от пола) остается холодной. Это приводит к большой разности температур воздуха: у потолка плюс 20–25 °C, а у пола около 0 °C. На полу часто замерзает вода, стены до уровня подоконников бывают холодными и сырыми. Поэтому в холодное время года приходится ставить печь-времянку, загромождающую помещение.

В предлагаемых вниманию конструкциях печей рассмотрены стандартные размеры, но они могут быть увеличены или уменьшены.

Рассмотрим детали простой обыкновенной русской печи без самоварника (рис. 67). В нижней части печи оставляют свободное пространство — подполье 1 для хранения различного инвентаря. Подполье перекрывают кирпичным сводом, бетонными плитами, кирпичной кладкой по стальным балкам (уголкам), иногда деревянным настилом 2 из толстых досок или пластин, но так, чтобы они опирались на стенки кладки минимум на 50 мм (лучше 100 мм). По деревянному настилу обязательно укладывают двух-, трехслойную войлочную изоляцию из вымоченного в глиняном растворе войлока и обитого сверху кровельной сталью, которую предварительно окрашивают с двух сторон. Эта изоляция предохраняет доски от излишнего нагревания и предупреждает высыпание засыпки 17 из-под пода 16. Швы между бетонными плитами промазывают любым раствором.


Рис. 67. Детали обыкновенной русской печи:

а — сбоку; б — спереди; в — в плане; г — по своду; 1 — подполье; 2 — деревянный настил; 3 — холодный печурок; 4 — шесток; 5 — окно шестка; 6 — чело или устье; 7 — газовый порог; 8 — перетрубье; 9 — вьюшка; 10 — задвижка; 11 — труба; 12 — засыпка; 13 — свод; 14 — варочная камера, или горнило; 15 — перекрыша; 16 — под; 17 — засыпка под подом; 18 — зольник; или очелок; 19 — щечки, или скулы


Часто в передней стенке печи образуют холодную печурку 3 для хранения мелкой посуды. С передней стороны на уровне пода печи, примерно на высоте 800–900 мм от пола, выкладывают шесток 4 (ровную площадку), над которым оставляют отверстие или окно 5 шестка. На шесток ставят посуду с различной пищей до варки или после.

Перекрывать шесток следует по уложенной угловой стали, которая должна находиться с наружной стороны печи, и полосовой сталью — с внутренней. Не следует применять для этой цели деревянные бруски. Во всех других случаях кладки печей в местах сильного нагрева не рекомендуется применять сталь; нагреваясь, она расширяется и расстраивает кладку.

Против шестка находится главная часть печи — варочная камера 14, которую также называют горнилом или топливником. В передней стенке камеры устраивают отверстие-чело или устье 6 прямоугольной формы или в виде свода шириной 500 и высотой 350 мм (могут быть и другие размеры), через которое в камеру закладывают топливо, ставят посуду с пищей. Устье устроено так, что над ним до верха камеры имеется стенка — газовый порог 7, благодаря которому в подсводном пространстве, расположенном выше устья, задерживаются горячие газы, которые полностью там сгорают и лучше нагревают печь в целом.

Устье печи закрывают заслоном или заслонкой нужной формы с ручкой посередине после топки или прикрывают во время топки, чтобы из камеры меньше уходило тепла.

В шестке с правой или правой и левой сторон устья имеются впадины или отгороженные места — зольники, или очелки 18.

Над шестком кладут стенки для образования щитка или перетрубья 8, то есть камеры в виде опрокинутого ящика, в котором собираются дым и горячие газы и прямо направляются в трубу. У улучшенных печей там имеется перегородка с отверстием, называемым хайлом, через которое дым и горячие газы направляются в трубу.

В улучшенных печах для улавливания искр перед выходом в дымовую трубу, но перед вьюшкой 9 или задвижкой 10 устраивают стенку со скосом, образуя как бы ящик (зуб), в котором собирается спадающая со стенок трубы сажа. При постановке вьюшки впереди ее крепят дверку. Печь можно закрывать или одной задвижкой, или одной вьюшкой, но более плотно она закрывается тем и другим или двумя задвижками. Выше их начинается труба 11.

На кладку варочной камеры, горнила или топливника обращают самое серьезное внимание и выполняют их из отборного кирпича. Особое внимание уделяют кладке свода 13. Боковые и заднюю стенки камеры кладут в 3/4 или один кирпич, переднюю стенку — в половину кирпича. Так как свод вверху наклонен к устью, то при устройстве последнего ряда над ней или верхней плоскостью печи 15 перекрыши кладку над сводом приходится выравнивать, устраивая песчаную засыпку 12.

В нижней части камеры (поде) 16 выпекают изделия из теста, ставят посуду с пищей. На 0,5 кв. м пода можно одновременно выпечь 20–25 кг ржаного хлеба. В варочной камере с правой и левой сторон устья остаются стенки, называемые щечками или скулами 19.

Для пода отбирают самый ровный, гладкий кирпич. Его укладывают на засыпку 17, которой заполняют колодец над настилом или сводом. Засыпка — это масса, накапливающая в себе тепло и равномерно прогревающаяся во всей своей массе под подом. Поэтому под хорошо пропекает хлебобулочные изделия с нижней стороны и различные запеканки.

Засыпку производят сухим крупнозернистым песком, лучше смешанным с битым стеклом, или из песка, смешанного с гравием или щебнем.

Однако над засыпкой из гравия или щебня следует выполнять выравнивающую засыпку из песка слоем 2–3 см.

Под настилают с небольшим подъемом к задней стенке камеры на 3–4 см выше шестка, от которого подъем идет постепенно. Эти условия необходимы для лучшего притока воздуха к задней части камеры, чем обеспечивается полное равномерное сгорание топлива.

Настилают под различно. В одном случае, когда выложен один ряд кладки стенок выше уровня пода, в другом — после того, как камера полностью выполнена. Все это зависит от привычки мастера, но в первом случае выкладывать под гораздо проще и удобнее.

Если под и свод выполнены горизонтально, то топливо сгорает медленно и печь нагревается слабо.

Свод камеры устраивают еще с большим подъемом к задней стенке, чем под. Например, если у устья высота камеры — 460–480 мм, то к задней стенке свод поднимается над подом на 500–520 мм. Такой подъем свода направляет горячие газы к задней части камеры и обеспечивает ее лучшее нагревание, особенно пода. Если же свод устроен горизонтально, то задняя часть камеры по сравнению с передней будет нагреваться слабее.

Форма свода играет большую роль. Своды полуциркульной формы выполнять легче, но от них неравномерно отражаются горячие газы и слабо нагревается под. Пологие трехцентровые своды класть труднее, но они обеспечивают более равномерное и сильное нагревание пода.

Многие квалифицированные печники выполняют трехцентровый свод бочкообразной формы. Кроме обычного подъема к задней стенке, он еще имеет подъем на 30 мм в средней части, превышающий подъем у задней стенки. Ширина свода также увеличивается в середине на 50–60 мм. Такой свод выкладывать труднее, но печь работает гораздо лучше: пламя от топлива как бы расстилается и не выбивает из устья, искры не вылетают в перетрубье, а это более безопасно в противопожарном отношении. Многие мастера также рекомендуют класть варочную камеру к устью на 40–90 мм у́же, чем к задней стенке, что также улучшает работу печи по сравнению с печами, имеющими камеру одинаковой ширины (рис. 68).


Рис. 68. Форма сводов:

а — полуциркульный; б — трехцентровый; в — бочкообразный


Свод любой формы следует класть одновременно с обеих сторон, начиная от пят к середине, до тех пор, пока не останется промежуток меньше, чем в четверть кирпича, в который закладывают замковый кирпич, обмазанный с трех сторон глиняным раствором. Этот кирпич должен с большим усилием входить в оставленное для него место, иногда его просто вбивают киянкой или поленом. Пяты или площадки в стенах для опоры свода вытесывают с нужным уклоном, который лучше всего проверять шаблоном.

Чтобы выложить свод из нечетного количества кирпичей, последний из которых будет замковым, свод следует рассчитать, то есть вычертить в натуре.

Прежде всего на засыпку насыпают песок, придают ему нужный уклон и на него без раствора укладывают кирпич как можно плотнее и ровнее. Затем на под насыпают мелкий песок и с помощью кирпича хорошо притирают отдельные неровности пода.

Класть под на глиняном растворе нельзя, так как он от нагревания обжигается, сильно схватывается с кирпичом и в дальнейшем при ремонте его трудно разобрать. Щели между кирпичами пода засыпают мелким песком или золой.

Легче всего выполнять глинобитные своды любой формы так, как это описано в разделе «Глинобитная печь».

Самоварники или душники могут быть в виде квадратного отверстия со вставленной дверкой, круглого самоварника из кровельной стали или просто отверстия, закрываемого металлической коробкой или деревянной чуркой, выполненной по форме отверстия. Для самоварника следует обязательно выводить отдельный канал, закрываемый задвижкой. Если его оставить без задвижки, то через него в зимнее время из помещения будет уходить много тепла и в канал проникать холодный воздух до самого самоварника. Ранее было сказано, что для лучшего удержания тепла в печи ставят вместо одной задвижки две или задвижку и вьюшку. Располагают их на расстоянии трех — пяти рядов одна над другой. Многие печники у начала трубы сначала ставят вьюшку, а над ней на нужном расстоянии задвижку. Если канал самоварника вывести так, чтобы он находился между вьюшкой и задвижкой, то при постановке самовара достаточно открыть только задвижку. Кроме того, задвижка над вьюшкой удобна тем, что при топке печи, для лучшего нагревания щитка или перетрубья, задвижку немного прикрывают, регулируя выход газов.

Печурки устраивают с одной или двух сторон печи, а иногда небольшую печурку с передней стороны, в которой хранят мелкие предметы. Печурки следует располагать так, чтобы они перекрывались не одним, а двумя-тремя рядами кладки. Ширину печурок следует делать 150–200 мм, высоту — 210 мм, перегородки между ними — в половину кирпича, что дает возможность перекрыть печурки целым кирпичом. Высоту печурок берут на два-три ряда кладки — 140–200 мм.

Рассмотрев основные детали русских печей и требования, предъявляемые к ним, можно приступить к кладке, строго соблюдая все порядовки и тщательно выполняя перевязку швов.

Простая печь

Простая русская печь несложная по устройству и уходу. Кладут из красного кирпича или изготавливают из глины (глинобитные) с применением минимального количества приборов — заслонки и дымовой задвижки.

Самая простая печь (рис. 69) имеет размер: ширину — 1270 мм, длину — 1650, высоту — до потолка 2380, до полатей (перекрыша печи) — 1540 мм.


Рис. 69. Русская обыкновенная печь:

1 — гидроизоляция; 2 — мелкий гравий и речной песок, смешанный с битым стеклом


Теплоотдача печи: при одной топке в сутки — 2100 ккал/ч, при двух топках — 3000 ккал/ч. Задняя и боковые стенки при одной топке в сутки выделяют по 1200 ккал/ч, передняя стенка — 400 и перекрытие — 500 ккал/ч. При двух топках соответственно: 1750, 550 и 700 ккал/ч.

Под шестком печи имеется подпечье (отверстие) для хранения ухватов, кочерги, совка и других приспособлений для топки.

Печью можно отапливать помещение площадью 20–30 кв. м.

Материалы: кирпич — 1610 штук; глина обыкновенная — 66 ведер; песок — 60 ведер; дымовая задвижка — 300х300 мм (лучше ставить две); самоварник — 130x130 мм; заслонка — 430x340 мм.

Класть печь следует строго по порядовкам, с тщательной перевязкой швов. Кирпич предварительно отбирают и самый лучший применяют для свода, стенок горнила и пода.

Первый ряд кладут из целого кирпича.

Второй ряд выкладывают в виде колодца, нужного для образования подпечья.

Третий, четвертый и пятый ряды похожи на второй, с соблюдением перевязки швов. Свод закладывают с пятого ряда с продолжением до восьмого ряда, с обязательным вытесыванием пят, устанавливают опалубку и полностью выкладывают свод, опирая его с передней и задней сторон на стенки.

Восьмой, девятый и десятый ряды показывают кладку стенок печи с устройством холодного печурка в девятом и десятом рядах.

Одиннадцатый ряд похож на предыдущий с соблюдением перевязки швов. Он перекрывает печурку. Колодец над сводом заполняют засыпкой, которую выравнивают и уплотняют так, чтобы она имела подъем от шестка к задней стенке топливника или горнила.

Двадцатый ряд показывает настилку пода с укладкой кирпича на песок без глиняного раствора. Чтобы под был ровнее, его посыпают песком и трут, как бы шлифуют, кирпичом, удаляя все заусенцы у кирпича пода и делая его более гладким, лучше всего применять подовый кирпич.

Тринадцатый — шестнадцатый ряды показывают закладку шестка, устья печи и варочной камеры-горнила. Кладку стенок выполняют в три четверти кирпича — 190 мм (половина и четверть кирпича). Их не связывают между собой, а только перевязывают швы. Здесь же показан порядок устройства замков у устья печи (концы кирпичей стесаны под углом 45°). Под имеет подъем 30 мм от устья к задней стороне печи.

Семнадцатый ряд полностью оформляет заднюю стенку и устье по форме горнила. На боковых стенках кладку в четверть кирпича вверху стесывают для образования пят. Ставят опалубку, по которой будет выкладываться свод с опорой на выполненные ранее стенки. Чаще всего с этого ряда заканчивают кладку свода.

В восемнадцатом ряду показан полностью законченный свод, который кладут с тщательной перевязкой швов и постановкой замкового кирпича и кладут стенки.

Девятнадцатый ряд, выложенный в виде арки, перекрывает проем над шестком. Одновременно кладут стенки печи, выравнивая тем самым кладку свода.

Двадцатый ряд кладут с уменьшением отверстия над шестком с выравниванием стенок печи.

Двадцать первый ряд начинают класть, как девятнадцатый, с соблюдением перевязки швов.

Двадцать второй ряд полностью выравнивает кладку над сводом и еще больше уменьшает отверстие над шестком. В этом ряду закладывают самоварник. Кирпич с правой стороны перетрубья стесывают, чтобы обеспечить лучшее передвижение газов. Здесь закладывают ящик для сбора сажи со стесыванием кирпича (см. разрез А — А).

С двадцать третьего по тридцать второй ряд показана кладка перетрубья. В двадцать третьем ряду заканчивают кладку самоварника и ящика для сбора сажи. Все ряды выполняют согласно порядовкам, с постановкой двух задвижек и устройства канала дымовой трубы размером 26х26 см. Выше тридцать второго ряда кладут трубу.

Конструкция заслонки показана на рисунке 70. Следует учесть, что раму для заслонки нужно делать из угловой стали 25х25х3 мм. Весьма желательно изготовить также раму из полосовой или угловой стали и вставить ее в кладку устья, соответственно закрепив. В данном случае она будет являться опалубкой при выполнении арки.


Рис. 70. Заслонка:

1 — полотно из кровельной стали; 2 — ручка из полосовой стали; 3 — лапки из полосовой стали для устойчивости заслонки; 4 — рамка из угловой стали 25х25х3 мм

Печь с плитой и обогревательным щитком

Русские печи с плитой и обогревательным щитком гораздо лучше. Щиток представляет как бы самостоятельную печь, имеющую несколько дымооборотов. Он очень хорошо нагревается во время топки плиты. В зависимости от условий печь можно не топить, а использовать только плиту. Для топки применяют то же топливо, что и для обыкновенной печи.

Печь (рис. 71) обладает большим преимуществом перед обычной.


Рис. 71. Русская печь с плитой и обогревательным щитком:

1 — чистка; 2 — водогрейная коробка; 3 — шесток; 4 — чугунная плита; 5 — самоварник; 6 — перекрыша; 7 — труба; 8 — щиток обогревательный; 9, 10 — задвижки; 11 — вьюшка, закрываемая дверкой; 12 — гидроизоляция; 13 — засыпка; 14 — чистка 130х130 мм


Размер печи: ширина — 1530 мм, длина — 1650, высота до потолка — 2380 и до полатей — 1540 мм.

Теплоотдача при одной топке в сутки — 4000 ккал/ч, при двух топках — 5600 ккал/ч. При одной топке в сутки передняя стенка выделяет 400 ккал/ч, задняя — 1000, левая — 1400 и правая — 1200, а при двух топках в сутки — соответственно 500, 1400, 2000 и 1700 ккал/ч.

Под шестком с левой стороны печи располагается топливник для щитка, плиты и водогрейной коробки. По желанию плиту можно использовать летом только для приготовления пищи с выпуском дымовых газов прямо в трубу. В холодное время года горячие газы направляются в щиток, нагревая его. При этом задвижку 10 закрывают, а задвижку 9 оставляют открытой (см. разрез А — А). Топливник щитка или плиты работает на всех видах твердого топлива. При использовании каменного угля или антрацита его выкладывают из огнеупорного кирпича.

Варочная камера или горнило печи работает также на твердом топливе, за исключением каменного угля.

Печью можно отопить дом площадью 30–40 кв. м.

Располагать эту печь рекомендуется так, чтобы боковая стенка со щитком выходила в комнату, отделенную от остального помещения глухой перегородкой.

Материалы: до потолка (без трубы) кирпич красный — 2000 штук; глина с песком — 170 ведер; топочная дверка — 140х250 мм; самоварная дверка — 130х130 мм или круглый самоварник; поддувальная дверка — 130х130 мм; две дымовые задвижки — 300х250 и 300х170 мм; колосниковая решетка — 260x280 мм; настил из пяти чугунных плит — 180х445 мм с двумя конфорками; заслонка — 430х340 мм; водогрейная коробка — 400х160х280 мм; подтопочный лист из кровельной стали — 500х700 мм; вьюшка диаметром 220 мм с дверкой — 140х25 мм; угловая сталь — 25x25x1150 мм; два куска полосовой стали — 4x25x1100 мм.

Имеющиеся в печи две чисткизакрывают дверками 130х130 мм или закладывают кирпичом. Водогрейную коробку изготовляют из оцинкованной стали, заслонку — из черной.

В первом ряду наружные стороны можно выполнить из целого кирпича, а середину заполнить половинками и четверками.

Второй ряд кладут стенками разной толщины, соблюдая перевязку швов.

Третий и четвертый ряды кладут одинаково. Сначала на втором ряду ставят поддувальную дверку, закрепляют ее кладкой и оставляют против нее зольник (поддувало). В этом же ряду оставляют чистку. В результате получается зольник и канал, отгороженный стенкой толщиной в кирпич. Сверху канал перекрывают перемычкой. Острый угол внутри канала закругляют.

Пятый ряд перекрывает чистку и дверку поддувала. Боковые стенки кладки стесывают для образования пят, устраивают опалубку для кладки свода. На этом своде будет держаться засыпка, необходимая для укладки пода.

Шестой ряд кладут согласно порядовке, с полным выполнением свода, подъем которого доходит до восьмого ряда. Выложив свод, опалубку убирают, выкладывают стенки с установкой водогрейкой коробки.

В седьмом ряду выкладывают стенки и перекрывают ранее устроенный канал, оставляя над ним три отверстия для вертикальных каналов: один — около водогрейной коробки и два — в обогревательном щитке. Пространство между сводом и стенками заполняют глиняным раствором.

В восьмом ряду кромки кирпичей, укладываемых над поддувалом, стесывают для образования наклонных поверхностей. Колосниковую решетку укладывают так, чтобы она лежала свободно, то есть между решеткой и кладкой оставляют зазор по всем сторонам не менее 10 мм. Это дает ей возможность расширяться при нагревании, не расстраивая кладку. Каналы остаются без изменения.

В девятом ряду с левой стороны печи против колосниковой решетки ставят и закрепляют топочную дверку для топливника плиты и щитка. Каналы остаются без изменения. С задней стороны топливника (около водогрейной коробки) кирпич стесывают под углом 45°. Образованный уклон обеспечивает скатывание топлива на колосниковую решетку (см. разрез А — А).

Десятый ряд перекрывает водогрейную коробку двумя кирпичами со стесанными сторонами (см. разрез А — А), срезая тем самым острые углы в канале и топливнике. В этом ряду со стороны щитка закладывают чистку и оставляют четыре канала, из них три канала в щите, один из которых длинный. В процессе кладки над сводом образуется как бы ящик, который заполняют засыпкой из мелкого сухого гравия, смешанного с песком, или крупнозернистым сухим песком. Эти материалы хорошо уплотняют. Конечно, эту работу можно выполнить после укладки одиннадцатого ряда. Если применяют засыпку с мелким гравием, то его засыпают до уровня кладки десятого ряда, а в одиннадцатом ряду сверху насыпают сухой песок, выравнивая тем самым гравий. Эту засыпку делают с подъемом к задней стенке, и она является нижней частью пода, которая сильно нагревается, отдавая тепло варочной камере.

Одиннадцатый ряд похож на десятый. Дверку топливника перекрывают, чистку оставляют. Вместо четырех каналов остаются только три со стороны щитка, один из которых прямо идет в трубу. Насыпанный песок выравнивают, придавая ему нужный угол наклона от задней стенки варочной камеры к устью.

Двенадцатый ряд показывает сплошную кладку стенок и пода печи. Если под настилается тут же, то сначала выкладывают заднюю стенку варочной камеры в четверть кирпича. Лучше всего под настилать после того, как вырисовались размеры варочной камеры, то есть после двух-трех рядов кладки, но часто его настилают после кладки печи полностью. Со стороны щитка остаются три канала. Средний из них длинный. Настил из чугунных плит укладывают на тонком слое глиняного раствора строго горизонтально, образуя тем самым шесток. С передней стороны уложенных плит крепят угловую сталь, предохраняя кладку от быстрого расстройства. Чистку перекрывают.

Под печи должен быть размером 950x890 мм, с подъемом от шестка к задней стенке камеры на 30 или 40 мм. Под настилают по насыпанной засыпке без раствора из самого ровного кирпича, начиная от шестка. Выстлав под, его посыпают мелким песком и тщательно протирают кирпичом, сглаживая все неровности. Чем ровнее под, тем легче передвигается по нему посуда. Швы между кирпичами засыпают мелким песком или золой.

Тринадцатый ряд показывает кладку стенок варочной камеры толщиной в 3/4 кирпича (190 мм). С наружной стороны ее выполняют в половину кирпича, с внутренней — из кирпича на ребро. Такой толщины делают только три стенки: две боковых и заднюю. Стенки шестка закладывают в половину кирпича. Такой же толщины (сказано выше) выполняют и переднюю стенку варочной камеры с отверстием-устьем, через которое в камеру загружают топливо и посуду. Устье лучше всего выкладывать по дуге, выполненной из угловой или полосовой стали (из угловой лучше) с приклепанными лапками, которыми ее закрепляют в кладке. Между дугой и кирпичной кладкой рекомендуется проложить асбест, чтобы закрыть щель, так как глиняный раствор быстро выпадает. По обеим сторонам передней стенки варочной камеры остаются щечки шириной по 250 мм. В обогревательном щитке ранее оставленный длинный горизонтальный канал перекрывают, в результате образуются пять каналов, разделяемых стенками толщиной в половину кирпича. Эти каналы до двадцать восьмого ряда включительно остаются без изменения.

Четырнадцатый — шестнадцатый ряды выполняют согласно порядовкам. Кирпич, укладываемый на ребро по двум боковым стенкам, рекомендуется слегка наклонять вовнутрь камеры, как бы закругляя ее. Это происходит за счет утолщения шва (глиняной прослойки) или вставки тонких пластинок кирпича. Некоторые печники этот кирпич укладывают вертикально вплоть до пят закладываемого свода.

Семнадцатый ряд завершает кладку передней и задней стенок варочной камеры по форме свода. Высота передней стенки — 480 мм, задней — 510 мм, считая от пода. При кладке свода он опирается на стенки. Внутри камеры на ее боковых сторонах, выложенных в четверть кирпича, выполняют пяты, то есть площадки, стесывая для этого кирпич. Они, как и свод, должны иметь подъем к задней стенке на 30 мм. Устанавливают опалубку для кладки свода, который выполняют от пят к середине. Кладку ведут поочередно то с одной, то с другой стороны. Если опалубку тяжело вынуть, ее выжигают, лучше всего опалубку делать разборной.

В восемнадцатом ряду заканчивают кладку свода. Работу ведут попеременно то с одной, то с другой стороны, укладывая одновременно по одному-двум рядам. В этом ряду перекрывают шесток, для чего с наружной стороны укладывают угловую сталь, с внутренней — полосовую и на них в дальнейшем кладут перетрубье. Применять деревянный брус вместо стали запрещается. Это опасно в пожарном отношении.

С этого ряда начинают выкладывать печурки шириной от 150 до 200 и высотой 210 мм, с перегородками между ними в полкирпича. Перекрывают печурки последним или предпоследним рядом кладки обязательно целым кирпичом, причем так, чтобы он опирался на стенки перегородки своими концами минимум на 25 мм.

Свод имеет подъем к задней стенке. Горячие газы также сначала направляются к задней стенке и тем самым способствуют более сильному нагреванию камеры. Кроме того, газы задерживаются на какое-то время под сводом, чему способствует газовый порог-стенка высотой 160 мм, устроенный над устьем варочной камеры. Таким образом, не только хорошо нагреваются свод, стенки камеры, но и под. Под, поднятый к задней стенке, обеспечивает полное сгорание топлива, находящегося вдали от устья.

В девятнадцатом ряду при кладке стенок с левой стороны перетрубья с двух сторон стесывают кирпич, образуя небольшие пяты для кладки перекрытия под отдельный канал самоварника. Выкладывая стенки, кирпичи, примыкающие к своду, также стесывают, чтобы они плотнее ложились на него. Кладку ведут на глиняном растворе. Начиная с этого ряда, перетрубье постепенно укорачивается (закладывается кирпичом), что необходимо для образования полки-ящика, куда собирается выпадающая из трубы сажа. Полку-ящик выкладывают до двадцать третьего ряда включительно. Сверху и с нижней стороны этого ящика кирпич стесывают. Все это показано в разрезе по А — А.

Двадцатый ряд выполняют по порядовке, устраивая перекрытие под каналом для самоварника. Перетрубье уменьшается по длине еще больше. Кирпичи, укладываемые на свод, стесывают.

В двадцать первом ряду еще больше уменьшается перетрубье. Стенки печи над сводом выравнивают за счет укладки глиняного раствора разной толщины (к перетрубью толще, см. разрез В — В). Это необходимо для того, чтобы свод был выложен с уклоном в 30 мм.

Двадцать второй ряд полностью выравнивает перекрытие над сводом. В этом ряду ставят самоварник или дверку размером 130х130 мм. Штриховка в перетрубье показывает, что верх полки-ящика стесывают.

В двадцать третьем ряду кладут перетрубье и щиток. В нем заканчивается кладка ящика для сбора сажи, на что указывает штриховка.

Двадцать четвертый ряд кладут как двадцать третий, отверстие перетрубья увеличивают, самоварник перекрывают.

Двадцать пятый и двадцать шестой ряды схожи с кладкой предыдущего ряда. Их выкладывают с соответствующей перевязкой швов.

Двадцать седьмой ряд перекрывает перетрубье, что необходимо в дальнейшем для установки вьюшки. В этом ряду ставят две задвижки: задвижку 10 размером 300x250 мм — с передней стороны печи в канале трубы и задвижку 9 размером 300х170 мм — с правой стороны печи, то есть в щитке. Таким образом, последний канал щитка перед выходом в трубу перекрывается задвижкой (разрез по Б — Б).

Двадцать восьмой ряд кладут с перекрытием перетрубья, установкой дверки и вьюшки (см. разрезы А — А и Б — Б).

Двадцать девятый ряд кладут по порядовке. Из пяти каналов со стороны щитка остаются только три, самый меньший из них средний.

Тридцатый ряд выполняют так, что из трех каналов остаются только два горизонтальных, один из которых берет начало от вьюшки.

Тридцать первый ряд образует горизонтальный канал от самоварника к трубе. Для перекрытия этого канала его сужают, укладывая с внутренней стороны перетрубья четверти кирпича.

Тридцать второй ряд перекрывает все каналы, за исключением трубы сечением 250x380 мм.

Тридцать третий ряд кладут, как предыдущий, соблюдая перевязку швов и уменьшая сечение канала трубы до 250х250 мм или 1х1 кирпич.

Тридцать четвертый ряд показывает кладку шейки печи в шесть кирпичей без изменения сечения канала. Шейку кладут до распушки.

Улучшенная печь «Теплушка»

Печи улучшенных конструкций нагреваются до самого пола, например печь «Теплушка» конструкции И. С. Подгородникова. Однако кладка их более сложная и требует определенного мастерства.

Улучшенная русская печь с отопительным щитком конструкции В. П. Протопопова хороша тем, что только небольшая часть топочных газов выпускается из варочной камеры в трубу через устье и перетрубье для поддержания необходимой тяги, большая же их часть направляется в дымообороты отопительного щитка непосредственно из варочной камеры, минуя перетрубье.

Печи под названием «Теплушки» (рис. 72) представляют собой одну общую камеру-колпак от пола до свода, разделенную подом на две части: верхнюю варочную камеру 1 и нижнюю отопительную камеру 2. Варочная камера такая же, как у русской печи. Она так же закрывается заслонкой, но более плотно. Для поддержания пода печи внутри отопительной камеры имеется несколько столбиков. Отопительная и варочные камеры соединены между собой четырьмя отверстиями, расположенными с боков пода. Через эти отверстия газы из топливника попадают сперва в варочную камеру, а затем опускаются в отопительную, то есть нагрев варочную камеру, они нагревают низ печи и только оттуда направляются в дымовую трубу 5 высотой не менее 5 м.


Рис. 72. Улучшенная русская печь «Теплушка» с плитой конструкции И. С. Подгородникова:

1 — варочная камера; 2 — отопительная камера; 3 — канал; 4 — водогрейная коробка; 5 — труба; 6, 10, 13, 17 — задвижки; 7 — два отверстия для выхода остывших газов; 8 — канал; 9 — водогрейная коробка; 11 — вьюшка; 12 — заслонка; 14 — кухонная плита; 15 — топливник; 16 — задвижка прямого хода; 18 — связи


Печь «Теплушка» имеет небольшой размер, требует меньше топлива, выделяя при этом в 2,5 раза больше тепла, чем русская печь таких же размеров, на топку которой требуется почти 3 ч, а на «Теплушку» — всего 30–60 мин.

Кроме того, «Теплушки» обогревают помещение по всей его высоте, то есть от пола до потолка с разницей в 2–3 °C. При желании «Теплушку» можно топить, как обычную русскую печь. Расход материалов и стоимость такая же, как русской печи. Для топки используют твердое топливо, кроме каменного угля.

Рассматриваемая печь «Теплушка-4» с кухонным очагом имеет размер: ширину и длину — 1290 мм, высоту — 2380 и 1680 мм. Теплоотдача печи при двух топках в сутки — 3200 ккал/ч. Кухонная плита 14 расположена в шестке. Этой печью можно отопить дом площадью до 35 кв. м и обслужить семью в шесть человек. С боку шестка расположена дымовая труба, имеющая внизу два отверстия 7, через которые удаляются остывшие газы из отопительной камеры печи 2. Через отверстие 16 (задвижка прямого хода) дымовые газы от плиты направляются в трубу.

Выше этого отверстия расположено отверстие 6 (задвижка летнего хода), через которое в летнее время выпускаются газы из варочной камеры 1. Для удаления газов, выходящих из печи при открытой заслонке 12, и вентилирования во время топки плиты служит верхняя задвижка 13. Тягу в дымовой трубе создают задвижкой 10. Работу плиты регулируют задвижкой 16, через которую газы из топливника 15 могут направляться непосредственно в дымовую трубу, а также и щитковой задвижкой 17, с помощью которой газы направляются в нижнюю отопительную камеру. Из отопительной камеры остывшие газы направляются в дымовую трубу через отверстия 7.

Материалы: кирпич обыкновенный — 1000 штук, при возможности желательно иметь 50 штук огнеупорного кирпича для кладки топливника; глина обыкновенная — 40 ведер; песок — 28 ведер; две задвижки — 260х260 мм; задвижка летнего хода — 180х140 мм; две задвижки к плите — 140х140 мм; колосниковая решетка — 250x250 мм; колосниковая решетка — 380x250 мм; вьюшка с отверстием — 230 мм (не менее); две топочные дверки — 250x205 мм; две поддувальные дверки — 250х140 мм; дверка под вьюшку, вставляемую в трубу, — 250х140 мм; две прочистные дверки — 130x140 мм; плита на две конфорки размером 700х400 мм; водогрейная коробка — 500х120x280 мм; заслонка — 450х350 мм с глазком, закрываемым круглой задвижкой (волчком); полосовая сталь — 50х12х1000 мм (для перекрытия шестка над плитой); семь кусков полосовой стали — 25x2x1430 мм; четырнадцать стальных шайб — 50х50х5 мм для связки или стягивания кладки в нескольких местах печи (показаны квадратиками в разрезах и порядовках).

Количество кирпича и глины приведено для кладки печи только до потолка, без трубы.

Из описания и рисунка видны особенности и сложность кладки печи. Однако эта печь весьма интересна. Пищу варят при закрытой заслонке и следят за процессом варки через глазок, открывая для этого задвижку.

Прежде чем класть такую печь, рекомендуется выполнить ее макет, проверить работу и учесть, что в двадцать первом ряду над перекрытием выполняют засыпку кирпичным щебнем толщиной 20–30 мм с раствором глины и песка.

Глинобитная печь

Практика показала, что хорошую русскую печь можно устроить не только из кирпича, но и из глинобита. В этой печи применяют кирпич только для настилки пода и кладки трубы.

При хорошем выполнении и уходе глинобитная печь может служить длительное время. Для кладки печи необходимо приготовить нужное количество глиняного раствора, тщательно подобрав состав так, как это было описано ранее. Для печи средних размеров требуется примерно 3,5 м3 раствора. Перемешивают раствор очень тщательно. Густота раствора должна быть такова, что если изготовить из него кирпич стандартного размера, положить его серединой на руку или палку, он не должен прогибаться. При небольшом прогибании качество кирпича удовлетворительное (рис. 73, а). Глину и песок для приготовления раствора насыпают на деревянный щит таким слоем, чтобы после трамбования получился слой толщиной 150 мм. На хорошо утрамбованном растворе, если на него стать, почти незаметны отпечатки ног. Слой 150 мм удобен тем, что из него нарезают куски или бруски нужного размера для устройства печи. Более тонкий слой малопроизводителен, а более толстый с трудом уплотняется во время работы. Приготовленную глину таким образом нарезают полосами шириной 200 м, которые затем режут на прямоугольные бруски (кирпичи) длиной по 300–400 мм. Концы брусков срезают на ус или же на половину их толщины, то есть так, как выполняют сопряжение древесины в полдерева (рис. 73, б).


Рис. 73. Приспособление и порядок устройства русской глинобитной печи:

а — проверка жесткости раствора; б — форма брусков и их укладка в печь; в — деревянный валек и скребок со стальным лезвием; г — стенки под свод; д — рама для устья; е — закладка свода (цифры показывают порядок укладки кусков, стрелки — направление ударов)


Бруски укладывают с перекрытием швов с дополнительным тщательным уплотнением валком или трамбовкой, которыми наносят сильные удары поверху и боковым сторонам (рис. 73, в). Чем сильнее уплотнение, тем выше прочность печи и наоборот.

После уплотнения и выравнивания кладки скребком срезают лишнюю глину, а стенки проверяют на вертикальность и горизонтальность.

Необходимо знать, что толщина стенок печи может быть от 190 до 250 мм. Чем толще стенки, тем дольше печь держит тепло.

При укладке последующего ряда брусков нижележащие бруски водой не смачивают. Если же их смачивать, то в местах соприкосновения брусков слой раствора окажется более слабым. При перерыве в работе верхние стороны уложенных брусков закрывают смоченными в воде и отжатыми от ее излишков тряпками.

Как известно, под подом необходима песчаная засыпка, которую насыпают на ранее устроенный настил или свод. Настил также можно устроить деревянным, но на расстоянии от уровня пода 450–500 мм. Сперва на деревянный настил насыпают 250–300 мм земли, хорошо ее выравнивают и уплотняют, а на землю — песок или смесь из песка и гравия слоем 150–180 мм, но можно и больше. Очень хорошо на деревянный настил предварительно уложить два слоя асбеста или войлока, вымоченного в глиняном растворе. Это предохраняет от сильного нагревания древесину.

До устройства свода необходимо устроить две стенки по форме горнила или камеры и установить их на месте (рис. 73, г). В дальнейшем в передней стенке вырезают отверстие-устье. Форма устья может быть полуциркульной или в виде пологой арки таких размеров, которые имеет ранее рассмотренная заслонка.

Желательно в устье вставить металлическую раму, изготовленную из полосовой или угловой стали, но можно из круглой арматурной стали толщиной от 7 мм и выше. В этом случае проволоку изгибают по форме заслонки. Изготовив три — пять прутков, их складывают вместе, связывают проволокой. У любой рамы отгибают лапки. Они необходимы для их закрепления в уложенной массе (рис. 73, д). Рама будет служить опорой для стенки и упором для заслонки. Ее следует закрепить.

Лучше всего устроить переднюю стенку с устьем так. Изготовить деревянное кружало-опалубку по форме устья, надеть на нее рамку, уложить нарезанные глиняные полосы, тщательно уплотняя их, обрезать с боковых сторон, предварительно начертив форму стенки, и срезать излишки по этой форме.

Свод лучше всего устраивать по опалубке, которая должна быть весьма прочной. Опалубку сверху покрывают бумагой в один или два слоя; это облегчит снятие ее с глины. Глиняным брускам перед укладкой на опалубку придают необходимую форму, срезая излишки ножом. Укладку ведут так, как показано на рисунке 73, е. Срезав излишки глины, все зачищают. Укладываемые бруски хорошо уплотняют.

Свод можно сделать и без опалубки, но это сложнее, к тому же приходится зачищать свод внутри скребком, что очень неудобно и трудоемко.

Вообще все внутренние поверхности печи следует выполнять особенно гладкими, чтобы улучшить тягу и обеспечить более свободный, без дымления, выход дымовых газов.

Выполнив чело и перекрыв его глиняными брусками в два-три слоя, тщательно уплотняют их между собой. Выше ведут кладку из кирпича.

Готовую печь следует просушить не менее пяти — семи дней с открытыми приборами. Затем протапливают сухим топливом, закладывая сначала небольшие порции, а затем их постепенно увеличивая. После сгорания топлива заслонки, задвижки или вьюшки оставляют открытыми. Нагреваясь, глина выделяет много пара, который должен выходить в трубу. По мере остывания печи, обычно через 6–8 ч, топку повторяют, Такую сушку производят пять-шесть суток до тех пор, пока печь полностью не просохнет. После этого берут сухое топливо (дрова колют мелко) и впервые по-настоящему топят печь. Во время этой топки не только окончательно досушивается печь, но и обжигается глина с внутренней стороны горнила или варочной камеры. Раскаленные угли следует равномерно распределить по всему поду. Хорошо протопленную печь закрывают. Через день топку повторяют. Правильная сушка и обжиг обеспечивают прочность и монолитность печи.

Необходимо напомнить, что под также можно выполнять из сырцового кирпича, но, к сожалению, при вытекании воды из посуды во время кипения она может размыть неокрепшую глину.

Выполнив печь, зачищают наружные или лицевые стороны и затирают глиняным или известково-глиняным раствором. После просыхания раствора печь белят два-три раза известью, разведенной на снятом молоке, получая прочную, не пачкающуюся краску.

Отопительные печи

Отопительные печи различаются продолжительностью топки (кратковременного или длительного горения), величиной теплоотдачи и степенью прогрева (умеренного и повышенного).

Печи умеренного прогрева, как правило, имеют стенки толщиной не менее полкирпича. Они медленно прогреваются во время топки и долго держат тепло, но и медленно остывают. При одной или двух топках в сутки поддерживают в помещении равномерную температуру воздуха. На их поверхности температура максимального прогрева в среднем не более 55–60 °C, а в отдельных точках — 85–90 °C. Все это исключает пригорание пыли и улучшает гигиенические условия в помещении. Печи широко распространены в северном и среднем поясах нашей страны. Срок их службы — 30–40 лет. Такие печи имеют некоторые недостатки: большую массу, требующую прочного фундамента и большого количества всевозможных материалов, и занимают достаточно большую площадь.

У печей повышенного прогрева более тонкие стенки в пол- или четверть кирпича. Они быстрее прогреваются и остывают, температура на их поверхности в среднем 65–75 °C, а в отдельных точках доходит до 120 °C. При такой температуре на них начинает пригорать пыль, издавая неприятный запах. Кроме того, они не поддерживают равномерную температуру в помещении и, таким образом, уступают печам толстостенным (умеренного прогрева). В основном в этих печах только топливники выполняют со стенками толщиной в полкирпича, остальную часть печи кладут в четверть кирпича. Такие печи занимают меньше места, требуют меньше материала и средств.

Печи по форме в плане бывают квадратные или прямоугольные, круглые и угловые (трехугольные). Квадратные и прямоугольные печи более просты в кладке. Круглые печи, более привлекательные на вид, обязательно устраивают в металлических футлярах. Угловые печи удобно ставить в углах помещения.

По системе дымооборотов они бывают многооборотные, в которых последовательно расположены вертикальные и горизонтальные каналы с большим числом поворотов. Могут быть одно- и двухоборотные, с одним или несколькими опускными каналами, расположенными параллельно, а также бесканальные или колпаковые, с нижним прогревом и с комбинированной системой дымооборотов.

Дым отводится по коренной или насадной трубам или же по стенным дымовым каналам.

Эти печи могут быть кирпичными, облицованными изразцами, в металлическом футляре, из гладкой или гофрированной листовой стали, а также в металлическом каркасе без отделки или облицованные листами асбофанеры, листовой сталью или глазурованными деталями. Кроме печей, складываемых из кирпича, имеются блочные из керамики или жароупорного бетона. Эти печи легко и быстро собираются.

Печи выполняют одноэтажными и многоэтажными. В зависимости от конструкции и назначения печи бывают с обычным (периодическим) режимом топки и замедленного или непрерывного горения. В последних печах процесс горения удлиняется по времени или происходит непрерывно. В силу этого поверхность печи не остывает.

Многие рассматриваемые печи имеют тепловую характеристику при двух топках в сутки на каждую стенку печи отдельно. Делается это потому, что не все они одинаково нагреваются. У некоторых печей передняя и задняя стенки нагреваются почти наполовину меньше, чем правая и левая. Бывает, что передняя стенка нагревается гораздо сильнее, чем остальные.

Оштукатуривают отопительные печи после полной просушки и осадки кладки. Швы при этом выбирают на глубину не менее 1 см. Раствор наносят на горячие стенки печи.

В данном разделе более подробно рассмотрена кладка первой печи, остальные описаны более сжато. Таким образом, первая печь должна быть проработана весьма основательно.

Оштукатуренная печь с теплоотдачей 1760 ккал/ч

Отопительная печь (рис. 74) имеет размер: ширину — 510 мм, длину — 770, высоту — 2150 мм. На переднюю и заднюю стенки приходится по 340 ккал/ч, на левую и правую — по 540 ккал/ч.


Рис. 74. Оштукатуренная отопительная печь с теплоотдачей 1760 ккал/ч:

1 — задвижки; 2 — чистка; 3 — топливник; 4 — поддувало; 5 — гидроизоляция; 6 — чистка


Материалы: кирпич обыкновенный — 210 штук; кирпич тугоплавкий — 76 штук; глина обыкновенная — семь ведер; глина тугоплавкая — 23 кг; песок — 3,5 ведра; колосниковая решетка — 252х250 мм; топочная дверка — 250x205 мм; поддувальная дверка — 130х140 мм; прочистная дверка — 130х140 мм; две дымовые задвижки — 130х130 мм; предтопочный лист — 500х700 мм; 2 м гидроизоляции (толь) — 800х550 мм. Тугоплавкий кирпич, заштрихованный клеточками, может быть заменен обыкновенным отборным кирпичом.

Первый ряд выполняют прямоугольным строго по размеру, с устройством посередине кладки зольника размером 260х260 мм. С левой стороны порядовки кирпич стесывают (см. разрез А — А), что обеспечивает более легкое удаление золы.

Во втором ряду устанавливают поддувальную дверку, опирая ее на первый ряд и тщательно закрепляя.

Третий ряд похож на второй, только изменяют порядок укладки кирпича, что обеспечивает перевязку швов.

Четвертый ряд перекрывает поддувальную дверку и уменьшает в размерах отверстие над поддувалом до 260x200 мм, на которое в следующем ряду укладывают колосниковую решетку.

В пятом ряду сначала укладывают над отверстием четвертого ряда колосниковую решетку, затем кладку выполняют так, чтобы между решеткой и кладкой оставался зазор по всему периметру не менее 10 мм, необходимый на расширение нагреваемого металла. Кирпич со стороны топочной дверки (с левой стороны) стесывают на конце для того, чтобы топливо скатывалось на колосниковую решетку и нормально сгорало.

В процессе кладки обращают внимание на порядовки.

Шестой ряд — образует топливник. Кирпич с задней стороны топливника стесывают. С передней стороны устанавливают и закрепляют топочную дверку.

Седьмой и восьмой ряды одинаковы, за исключением перевязки швов. Если в шестом ряду заднюю стенку печи (топливника) выкладывали толщиной в три четверти кирпича, то в этих рядах ее кладут в половину кирпича.

Девятый — одиннадцатый ряды совершенно одинаковы, за исключением перевязки швов. Девятый ряд перекрывает топочную дверку.

Двенадцатый ряд кладут согласно порядовке, в которой применяют восемь трехчетверок и одну половину кирпича. Этой кладкой топливник сужается, что необходимо для его перекрытия в следующем ряду. В данной порядовке он напоминает букву Т.

Тринадцатый и четырнадцатый ряды одинаковы, за исключением перевязки швов. С их правой стороны остается только один канал, остальная часть перекрывается.

В пятнадцатом ряду с правой стороны остается тот же канал, а с левой устраивают чистку с установкой дверки в четырнадцатом ряду против канала трубы.

Шестнадцатый и семнадцатый ряды похожи, только семнадцатый ряд перекрывает дверку чистки, и в нем остается прямоугольный горизонтальный канал.

Восемнадцатый — двадцатый ряды кладут одинаково, но с соблюдением перевязки швов, с делением большого канала на два. Канал с левой стороны размером 260x130 мм направляется в трубу.

Двадцать первый ряд кладут так, что левый канал трехчетверкой перекрывается, уменьшая его на 1/4 часть. Это необходимо для дальнейшего удержания кирпича, перекрывающего половину канала.

Двадцать второй ряд перекрывает половину канала с левой стороны печи, и на оставшейся половине ставят задвижку.

Двадцать третий ряд кладут согласно порядовке, образуя над задвижкой канал размером 130х130 мм.

С двадцать четвертого по двадцать седьмой ряд включительно кладку выполняют одинаково, только с соблюдением перевязки швов.

С левой стороны печи канал расширяется до размера 260х130 мм. Канал с правой стороны, начиная с восемнадцатого ряда, остается без изменения размером 260x260 мм.

Двадцать восьмой ряд похож на двадцать первый ряд, только канал с правой стороны уменьшают до размера 260x130 мм.

Двадцать девятый ряд перекрывает верх печи, и на нем ставят вторую задвижку.

Тридцатый и тридцать первый ряды также перекрывают верх печи с оставлением канала трубы и соблюдением перевязки швов.

На тридцать втором ряду показана кладка трубы в четыре кирпича с размером канала 130х130 мм.

Если помещение высотой 2,7 м, то между девятнадцатым и двадцатым рядами следует вставить три ряда: 20´, 21´ и 22´ с соблюдением перевязки швов.

Сложив печь, приступают к кладке трубы, строго соблюдая перевязку швов и противопожарные мероприятия при прохождении через чердачное перекрытие и крышу.

Оштукатуренная печь с теплоотдачей 1940 ккал/ч

Отопительная печь (рис. 75) имеет размер: ширину — 510 мм, длину — 890, высоту — 2150 мм. На переднюю и заднюю стенки приходится по 335 ккал/ч, а на правую и левую — по 635 ккал/ч.


Рис. 75. Отопительная печь, оштукатуренная, с теплоотдачей 1940 ккал/ч:

1 — чистка; 2 — гидроизоляция; 3 — слой глинопесчаного раствора; 4 — насадная труба с каналом 140х140 мм


Материалы: кирпич обыкновенный — 245 штук; кирпич тугоплавкий 110 штук; глина обыкновенная — восемь ведер; глина тугоплавкая — 11 кг; песок — семь ведер; колосниковая решетка — 252х250 мм; топочная дверка — 250x205 мм; поддувальная решетка — 130х140 мм; две прочистные дверки — 130х140 мм; две дымовые задвижки — 130х130 мм; предтопочный лист — 500х700 мм; 2 м гидроизоляции (толи) — 1000x1000 мм. Тугоплавкий кирпич заштрихован клеточками. Он может быть заменен отборным обыкновенным кирпичом. Поскольку предыдущая печь описана подробно, эта, во многом схожая с ней, будет разобрана более кратко.

Заштрихованные на рисунке первый, пятый, шестой и седьмой ряды показывают, что кирпич внутри каналов и с двух сторон колосниковой решетки стесывают (разрез А — А).

Тринадцатый ряд перекрывает ранее выполненный топливник в виде прямоугольника так, чтобы над ним остался канал в виде буквы Т. В дальнейшем его сужают и уменьшают до размера 130х260 мм.

В шестнадцатом и двадцать пятом рядах кирпичные плоскости выравнивают, укладывая на них 10 мм глинопесчаного раствора, делая их тем самым более гладкими, что облегчает удаление сажи.

Канал трубы кладут в четыре кирпича размером 130x130 или 140х140 мм, что зависит от толщины швов. Топливник предназначен для дров. В помещениях высотой 2,7 м между двадцать шестым и двадцать седьмым рядами вставляют ряды 27´, 28´ и 29´.

Конструкция этой печи предложена В. И. Стрежневым.

Оштукатуренная печь с теплоотдачей 2400 ккал/ч

Отопительная печь (рис. 76) имеет размер: ширину — 510 мм, длину — 1400, высоту — 2150 мм. На переднюю и заднюю стенки приходится по 280 ккал/ч, а на правую и левую — по 920 ккал/ч.


Рис. 76. Отопительная печь, оштукатуренная, с теплоотдачей 2400 ккал/ч:

1 — гидроизоляция; 2 — чистка


Материалы: кирпич обыкновенный — 380 штук; кирпич тугоплавкий — 190 штук; глина обыкновенная — одиннадцать ведер; глина тугоплавкая — 57 кг; песок — десять ведер; колосниковая решетка 250x252 мм; топочная дверка — 250х205 мм; поддувальная дверка 130x140 мм; две прочистные дверки — 130x140 мм; две дымовые задвижки — 130х130 мм; предтопочный лист — 500х700 мм; гидроизоляции (толь) — 1450х550 мм (2 кв. м).

Кладку выполняют согласно порядовкам, с тщательной перевязкой швов. Тугоплавкий кирпич может быть заменен хорошим обыкновенным. Если внутри каналов показана штриховка, то это указывает на стесанный кирпич. Следует внимательно познакомиться с разрезами печи.

С двадцатого по двадцать пятый ряды внутри каналов больших размеров укладывают половину кирпича, что необходимо для устройства перегородок в верхней части печи. С тридцать второго ряда начинается кладка трубы в пять кирпичей, размер канала — 130x260 мм.

Для помещений высотой 2,7 м между двадцать третьим и двадцать четвертым рядами нужно вставить 24´, 25´ и 26´ ряды.

Оштукатуренная печь с теплоотдачей 3020 ккал/ч

Отопительная печь (рис. 77) имеет размер: ширину — 770 мм, длину — 1020, высоту — 2150 мм. На переднюю и заднюю стенки приходится по 610 ккал/ч, а на правую и левую — по 900 ккал/ч.



Рис. 77. Отопительная печь, оштукатуренная, с теплоотдачей 3020 ккал/ч:

1 — гидроизоляция; 2 — чистка


Материалы: кирпич обыкновенный — 400 штук; кирпич тугоплавкий — 220 штук; глина обыкновенная — тринадцать ведер; глина тугоплавкая — 66 кг; песок — десять ведер; колосниковая решетка — 250x180 мм; топочная дверка — 200x205 мм; поддувальная дверка — 130х140 мм; две прочистные дверки — 130x140 мм; две задвижки — 240х130 мм; предтопочный лист — 500х700 мм; гидроизоляции (толь) — 770x1020 мм (2 кв. м).

Кладку печи выполняют согласно порядовкам, с тщательной перевязкой швов. Тугоплавкий кирпич может быть заменен обыкновенным отборным. В пятом и шестом рядах кирпич стесывают, о чем говорит штриховка на рисунке внутри топливника и около колосниковой решетки. Для закрывания печи ставят две задвижки (см. 25-й и 29-й ряды). Трубу кладут в пять кирпичей с каналом 130x260 мм.

Для помещений высотой 2,7 м между двадцать шестым и двадцать седьмым рядами необходимо вставить 27´, 28´ и 29´-й ряды.

Оштукатуренная печь с теплоотдачей 3850 ккал/ч

Отопительная печь (рис. 78) имеет размер: ширину — 1020 мм, длину — 1020, высоту — 2150 мм. На переднюю стенку приходится 1000 ккал/ч, а на остальные — по 950 ккал/ч.


Рис. 78. Отопительная печь, оштукатуренная, с теплоотдачей 3850 ккал/ч:

1 — задвижки; 2 — чистки; 3 — топка; 4 — поддувало; 5 — гидроизоляция; 6 — канал


Материалы: кирпич обыкновенный — 552 штуки; кирпич тугоплавкий — 206 штук; глина обыкновенная — четырнадцать ведер; глина тугоплавкая — 91 кг; песок — тринадцать ведер; колосниковая решетка — 252x300 мм; топочная дверка — 250х205 мм; поддувальная дверка — 250х140 мм; пять прочистных дверок — 130x140 мм; две дымовые задвижки — 240х130 мм; предтопочный лист — 500х700 мм; гидроизоляции (толь) (2 кв. м).

Кладку печи выполняют согласно порядовкам, с тщательной перевязкой швов. Тугоплавкий кирпич можно заменить отборным обыкновенным.

Из разреза А — А видно, что переднюю и заднюю стенки кладут из тугоплавкого кирпича толщиной в 3/4 (19 см). Один ряд кладки ведут плашмя, другой — на ребро, с утолщенным швом. Если имеется возможность футеровать (облицовывать) топливник тугоплавким кирпичом, то его кладут на ребро. Точно в таком же порядке выполняют стенки из обыкновенного кирпича. Следует помнить, что применение утолщенной кладки из тугоплавкого кирпича связано с высокой температурой в топливнике, быстро разрушающей обычный кирпич.

Практически половину печи кладут из тугоплавкого кирпича. Задвижки ставят в двадцать пятом и двадцать девятом рядах. Для помещений высотой 2,7 м между двадцать шестым и двадцать седьмым рядами вставляют еще два ряда кладки двадцать пятого и один двадцать шестого ряда. Трубу выполняют в пять кирпичей с каналом 130x260 мм.

Печь в металлическом футляре с теплоотдачей 3920 ккал/ч

Отопительная печь (рис. 79) имеет размер: ширину — 890 мм, длину — 1140, высоту — 2150 мм. Теплоотдача для каждой стенки не указана.


Рис. 79. Отопительная печь в металлическом футляре с теплоотдачей 3920 ккал/ч


Материалы: кирпич обыкновенный — 400 штук; кирпич тугоплавкий — 253 штуки; глина обыкновенная — тринадцать ведер; глина тугоплавкая — 110 кг; песок — двенадцать ведер; топочная дверка — 250x205 мм; поддувальная дверка — 250х140 мм; пять прочистных полудверок — 130х160 мм; две дымовые задвижки — 240x130 мм; колосниковая решетка — 300х252 мм; предтопочный лист — 500х700 мм, кровельная сталь для футляра 10 кв. м, толь 2 кв. м для гидроизоляции.

После изготовления футляра с внутренней и наружной сторон его покрывают огнеупорным лаком. Футляр состоит из нескольких звеньев. Нижнее, или первое, звено делают высотой не более 700 мм. При большей высоте работать в нем при закладке первых рядов очень неудобно. В футляре должны быть тщательно размечены и выполнены места для поддувала, дверок, чисток, задвижек. На внутренней стороне футляра ставят 6-10 кляммер из ленточной стали для крепления футляра к массиву печи. Передние и задние стенки кладут в половину, а боковые — в четверть кирпича.

Первый ряд кладут предварительно и на него надевают футляр или же сперва ставят футляр, а затем выполняют кладку. Кирпич должен прилегать к футляру как можно плотнее и лучше всего на слое глиняного раствора, так как воздушная прослойка между футляром и кладкой сильно снижает теплоотдачу. Кладку ведут согласно порядовкам, со стесыванием кирпича в нужных рядах. Как только будет заполнено кладкой первое звено, на него надевают второе и кладут дальше и т. д. Трубу кладут в пятерик с каналом 260х130 мм. Для помещений высотой 2,7 м между двадцать шестым и двадцать седьмым рядами необходимо вставить 27´, 28´ и 29´ ряды.

Изразцовая печь с теплоотдачей 4150 ккал/ч

Отопительная печь (рис. 80) имеет размер: ширину — 1020 мм, длину — 1020, высоту — 2150 мм. Теплоотдача для каждой стенки не указана.


Рис. 80. Отопительная печь изразцовая с теплоотдачей 4150 ккал/ч:

1 — гидроизоляция; 2 — чистки


Материалы: кирпич обыкновенный — 425 штук; кирпич тугоплавкий — 155 штук; глина обыкновенная — четырнадцать ведер; глина тугоплавкая с шамотом — 75 кг; песок — тринадцать ведер; топочная дверка — 250x205 мм; поддувальная дверка — 250х140 мм; шесть прочистных дверок — 130х140 мм; две дымовые задвижки — 240x130 мм; колосниковая решетка — 300х252 мм; предтопочный лист — 500х700 мм; изразцы терракотовые угловые — 52 штуки, то же прямые — 162 штуки, толь для гидроизоляции — 2 кв. м.

Перед тем как класть печь, сортируют по цвету и размеру изразцы, притачивают отдельные неточности, сортируют кирпич. Прежде всего каждый ряд кладут без раствора, исправляют, разбирают и затем последовательно кладут на растворе. Изразцы крепят в кладке так, как это было описано ранее. Кладку ведут строго по порядовкам, с тщательной перевязкой швов. Трубу кладут в пять кирпичей с каналом 260х130 мм.

Для помещений высотой 2,7 м между двадцать шестым и двадцать седьмым рядами вставляют 27´, 28´ и 29´ ряды.

После кладки лицевые поверхности очищают от пыли и грязи, швы между изразцами в зависимости от цвета заполняют белым или подкрашенным гипсовым раствором.

Устройство дымовых труб

Дымовые трубы служат для отвода продуктов горения и образования тяги в печах. Они делятся на насадные и коренные трубы и стенные каналы или дымоходы.

Насадные трубы устанавливают непосредственно на самой печи, они служат как бы ее продолжением. Лучше их ставить не на печную кладку, а на железобетонную плиту, укладываемую на перекрышу. Толщина плиты должна быть не менее 50 мм и хорошо армирована.

Коренные трубы выполняют в виде отдельного стояка на прочном фундаменте. Они занимают место в помещении и требуют больше кирпича. Их следует применять только тогда, когда невозможно устройство дымоходов или насадных труб. Печи рекомендуется располагать по возможности ближе одна к другой, и конечно, к трубе. В такой трубе делают два-три канала и обязательно один вентиляционный. Категорически запрещается подводить к вентиляционному каналу дымоходы печей.

Стенные дымоходы предусматривают внутри капитальных стен во время их кладки. В исключительных случаях допускается устройство их в наружных стенах, но для этого с внутренней стороны помещения необходимо утолщение в виде пилястры. При этом следует учитывать, что во избежание охлаждения дымохода, который приводит к конденсации паров и ухудшению тяги, от дымохода до наружной поверхности стен должно быть: 2,5 кирпича при стене толщиной в 3 кирпича, 2 кирпича при стене толщиной в 2,5 кирпича и 1,5 кирпича при стене толщиной в 2 кирпича. Чтобы не ослаблять прочность стен, дымоходы нельзя располагать в углах и местах пересечения стен. Если стены из силикатного кирпича, шлакобетона, самана, сырцового кирпича или естественного камня, то дымоходы выполняют из обыкновенного (красного) кирпича толщиной неменее в полкирпича. Стенки и перегородки между дымоходами должны быть также не менее чем в полкирпича.

Присоединение печей к дымоходам

Рис. 81. Коренные трубы с подключенными печами:

1 — печь; 2 — коренная труба; 3 — вентиляционный канал; 4 — дымовые каналы; 5 — разделка; 6 — изоляция из двух слоев войлока, вымоченного в глиняном растворе; 7 — стена; 8 — кирпичная стенка; 9 — плита


На рисунке 81 показаны коренные трубы и присоединение к ним в отдельности печи и плиты — кухонного очага. Если же к одному дымоходу присоединить две печи, и особенно на разных этажах, то возможен перебой тяги верхних печей печами нижнего этажа. В исключительных случаях допустимо присоединение к одному дымоходу двух печей, находящихся на одном этаже. Для этого в общем канале выполняют рассечку, то есть перегородку высотой от 750 до 1000 мм (рис. 82), или присоединяют печи на разных уровнях. Это делают для того, чтобы не получилось встречного движения дымовых газов. При этом надо помнить, что размер общего дымового канала должен быть не менее 140x270 мм.


Рис. 82. Присоединение двух печей к одному дымоходу:

1 — от одной печи; 2 — от другой


Когда коренная труба или стенные дымоходы находятся на некотором расстоянии от печей, то последние подключают к дымоходам с помощью патрубка или перекидного рукава (горизонтального дымового канала), выложенного из кирпича в футляре из кровельной стали длиной не более 2000 мм (рис. 83).


Рис. 83. Перекидной рукав:

1 — угловая сталь; 2 — кирпич; 3 — кровельная сталь; 4 — чистка


Перекидной рукав выполняют на балочках из угловой стали, которые опираются одними концами на стенку с дымоходами или на коренную трубу, другими — на стенку печи. Стенки и дно рукава выкладывают из кирпича на ребро (четверть кирпича), а перекрышу или верх рукава — из двух рядов кладки кирпича плашмя.

Для удаления сажи из рукава в нем устраивают прочистную дверку. Перекидной рукав выполняют с подъемом в сторону движения газов под углом 10°, что обеспечивает лучшую тягу, при этом строго соблюдают противопожарные требования. Когда потолок защищен от возгорания (оштукатурен, обит двумя слоями войлока или асбеста, кровельной сталью), то расстояние между верхом патрубка и потолком должно быть не менее 380 мм, а если потолок не защищен от возгорания, то рукав должен быть на расстоянии не менее 500 мм. Такие же условия соблюдают при нахождении патрубка около сгораемых стен и перегородок.

Иногда перекидной рукав делают не внутри помещений под потолком, а на чердаке, называя его боровом, но это очень опасно в пожарном отношении. Лучше всего от каждой печи вывести свою трубу. Такие трубы удобны для очистки сажи и ухода за ними. Кроме того, борова часто снижают тягу в печи, что не всегда хорошо.

Расположение труб над кровлей

Дымовые трубы располагают в здании так, чтобы они как можно ближе выходили к коньку крыши, выше которой делают головку трубы. В насадных трубах эти условия зависят от расположения печи в помещении. Так как дымовая труба находится сверху крыши, то есть ее головка подвергается воздействиям различных атмосферных явлений, рекомендуется ее класть не на глиняном, а на известковом, цементно-известковом или цементном растворе. Высота трубы сверх крыши зависит от того, на каком расстоянии она отстоит от конька (рис. 84). Головку выводят на 500 мм выше конька в том случае, если она расположена не далее 1,5 м от конька по проведенной горизонтальной линии. Головку выводят до уровня конька крыши в том случае, если она находится от конька на расстоянии 1,5–3 м и ниже уровня конька крыши до прямой под углом 10° к горизонту, при нахождении трубы от конька более 3 м. Труба во всех случаях должна возвышаться над уровнем крыши не менее чем на 500 мм. Если труба будет расположена близко к высокой стене или деревьям с густой кроной, ее наращивают стальной или асбестоцементной трубой, чтобы избежать опрокидывания дыма ветром.


Рис. 84. Расположение труб на крыше

Размеры дымовых каналов

Дымовые каналы в зависимости от мощности печей могут быть различных размеров: 1/2х1/2 кирпича при печах с теплоотдачей до 3000 ккал/ч, 1/2х3/4 при печах с теплоотдачей до 4500 ккал/ч и 1/2х1 кирпича при печах с теплоотдачей до 6000 ккал/ч при двух топках в сутки, но могут быть и другие размеры, которые встречаются в порядовках печей.

Ниже приведены размера дымовых каналов:


Канал Размеры каналов
в кирпичах мм см2
А 1/2х1/2 140х140 200
Б 1/2х3/4 140х210 295
В 3/4х3/4 210х210 440
Г 1/2х1,0 140х270 380
Д 3/4х1,0 210х270 567
Е 1,0х1,0 270х270 730
Ж 1,0х11/2 270х390 1050

Примечание. В зависимости от толщины швов эти размеры могут быть меньше, например канал А 130х130 мм и т. д.


В зависимости от размера канала кладку ведут по-разному (рис. 85): в четыре кирпича, в пять, в шесть или в четыре кирпича с двумя трехчетверками — это канал Д и т. д.


Рис. 85. Размеры дымовых каналов и их кладка:

1 — нечетные ряды; 2 — четные ряды


На рисунках каналы обозначены буквами, а ряды цифрами. Нечетные ряды — цифра 1, четные — цифра 2. В процессе кладки ряды чередуют. Их выполняют из целых кирпичей, целых кирпичей и трехчетверок или половинок. Все это требуется для перевязки швов. Конечно, лучшая труба та, которая выполнена из целого кирпича, лучшая кладка та, у которой над вертикальным швом нижнего ряда приходится середина кирпича верхнего ряда. Она называется перевязкой в полкирпича, обеспечивающей высокую прочность кладки. Не всегда приходится правильная перевязка кладки через один ряд по всей высоте. На рисунке 86 показана кладка двух спаренных каналов. Если их выложить на всю высоту чередованием рядов Б и В, то наружные стенки кладки будут иметь правильную перевязку, обеспечивающую необходимую прочность. Стенка, разделяющая трубу на два канала, не будет иметь надлежащей перевязки, так как укладываемые кирпичи все время находятся впритык к наружным стенкам. При чистке трубы внутренняя стенка может быть легко разрушена. Чтобы этого не произошло, через каждые четыре чередующихся ряда Б и В необходимо выложить один ряд Г, располагая кирпич так, как показано на рисунке.


Рис. 86. Кладка трубы при двух спаренных каналах:

а — общий вид трубы; б — кладка нечетных рядов; в — кладка четных рядов; г — кладка пятого ряда


Когда применяют для кладки труб колотый кирпич, то тесаную грань следует располагать наружу, а гладкую — вовнутрь. Это необходимо потому, что при теске кирпича нарушается его структура и на тесаной поверхности образуются мельчайшие трещины, способные легко увеличиваться и разрушаться под действием горячих дымовых газов.

Кладка трубы с распушкой и выдрой

Прежде чем приступить к кладке трубы, следует знать, из каких основных частей она состоит. Насадную трубу всегда устанавливают на печи, то есть на перекрыше, которую не доводят на два-три или более рядов до междуэтажного перекрытия, или на шейке печи, то есть шейке распушки. В шейке печи можно поставить задвижку или, как дополнение, и вьюшку.

Над шейкой печи при подходе к междуэтажному перекрытию кладку уширяют, образуя разделку или распушку толщиной, считая от дыма, 260 или 380 мм. Выкладывают ее в несколько рядов кладки по высоте. Выше распушки по чердачному пространству проходит стояк, то есть ровная часть трубы, которая доводится до самой кровли. Выше кровли выполняют вторую распушку, называемую выдрой, которая нависает на 100 мм над кровлей по всем четырем сторонам. Это нависание обеспечивает отвод стекаемой атмосферной воды на кровлю. Если же этого не сделать, то вода будет стекать по стояку, разрушая его и увлажняя чердачное пространство. Выше выдры кладут шейку трубы такого же сечения по наружным размерам, как и стояк. Дальше кладку уширяют, образуя оголовок. Для предохранения трубы от разрушения над ней устанавливают колпак или флюгарку из кровельной стали, которые, кроме предохранительных функций, еще и улучшают тягу в печах (рис. 87).


Рис. 87. Труба и ее части:

1 — металлический колпак; 2 — оголовок трубы; 3 — шейка трубы; 4 — цементный раствор; 5 — выдра; 6 — кровля; 7 — обрешетка; 8 — стропила; 9 — стояк трубы; 10 — распушка (разделка); 11 — балка с перекрытием; 12 — изоляция; 13 — дымовая задвижка; 14 — шейка печи


Все выступающие части трубы над кровлей следует покрыть кровельной сталью или обработать цементным раствором, придав ему уклон, обеспечивающий стекание воды. Трубы лучше всего оштукатурить цементно-известковым или цементным раствором и побелить известью. Оштукатуренные трубы служат более длительное время.

Как было сказано выше, сечение каналов дымоходов бывает разным и класть распушку и выдру приходится по-другому, но строго перевязывая швы. Рассмотрим кладку распушки и выдры с каналами разного сечения.

Кладка распушки и выдры с дымовым каналом 140x270 мм (рис. 88). В зависимости от толщины швов размеры канала могут быть на 10 мм меньше. Кладка распушки и выдры рассматривается с таким расчетом, что они по длине и ширине увеличиваются по каждому ряду на 1/4 кирпича (60–70 мм), что в основном зависит от толщины швов.


Рис. 88. Кладка распушки и выдры с дымовым каналом 14х27 см:

а — общий вид трубы; б — порядовки распушки; в — порядовки выдры


Кладка распушки начинается на некотором расстоянии от перекрыши печи, на которой обосновывается насадная труба. Это расстояние может состоять из нескольких рядов кладки, часто называмых шейкой печи. В данном случае распушка состоит из шести рядов.

Первый ряд — это шейка трубы, выполненная из пяти кирпичей с размерами дымового канала 140х270 мм и наружными сторонами 510x380 мм.

Второй ряд — это начало распушки с наружными размерами 590x450 мм. Для получения таких размеров в кладку вставляют четверки и половинки кирпича. Внутри распушки для ограничения размеров канала вставляют «пластинки», колотый кирпич толщиной по 30–40 мм. Размер дымового канала во всех рядах кладки распушки остается без изменения.

Третий ряд распушки имеет размеры 650x510 мм. Внутри кладки распушки вставляют «пластинки» кирпича толщиной около 6 см.

Четвертый ряд имеет наружные размеры 710x570 мм. Внутри распушки вставляют кирпичи толщиной 90-100 мм.

Пятый ряд кладут полностью из целого кирпича.

Шестой ряд такой же, как и пятый, только строго соблюдают перевязку швов. При увеличении высоты распушки пятый и шестой ряды чередуют.

Седьмой ряд — это начало кладки стояка трубы в пять кирпичей. Его доводят на один-два ряда выше уровня кровли, а затем возводят выдру.

Ее кладут на стояке с тщательной перевязкой швов. Эта кладка рассматривается девятью рядами. Каждый ряд выступает вперед на 1/4 кирпича. В середине, то есть внутри выдры около дымового канала, вставляют кирпичные пластинки такой толщины, чтобы они не уменьшали и не увеличивали размеры канала.

Первый ряд кладут в пять кирпичей. Он является стояком.

Второй ряд увеличивает только кладку по длине с выступом по 1/4 кирпича на обе стороны, для чего приходится вставлять половину и трехчетверку, а внутри выдры в канале ставить пластинку из кирпича.

Третий ряд кладут так, что его длина остается без изменений, а ширина с одной стороны (нижней части выдры) увеличивается всего на половину кирпича для образования свеса.

Четвертый ряд кладут, как показано. Свес увеличивается и с боковых сторон.

Пятый ряд выполняют, как показано в порядовке.

Шестой ряд выкладывают так, что свес с боковых сторон удлиняется. Его ширина и длина равняются двум кирпичам.

Седьмой ряд полностью завершает кладку свеса по трем сторонам.

Восьмой ряд кладут согласно порядовке и у него выпускают свес с последней четвертой стороны.

Девятый ряд кладут, как восьмой, с тщательным соблюдением перевязки швов.

Десятый ряд показывает кладку шейки трубы в пять кирпичей. Выложив полностью шейку трубы, приступают к оголовку, кладка которого не представляет труда, так как выполняется таким же порядком, как распушка.

В рассмотренном варианте кладки выдры следует обратить внимание на то, что ее правая сторона, начиная со второго ряда, уширяется на четверть кирпича по сравнению с кладкой стояка. Можно этого и не делать, а оставить ее такой же, как стояк. Это будет рассмотрено ниже.

Чтобы обеспечить сток воды с оголовка трубы и выдры и предохранить их от быстрого разрушения, на них наливают цементный раствор, разравнивают его так, чтобы он имел скос, и заглаживают.

Кладка распушки с дымовым каналом 270х270 мм (рис. 89), с толщиной стенок в 380 мм, считая «от дыма», мало чем отличается от ранее рассмотренного варианта. Требуется также тщательная перевязка швов и укладка частей кирпича разной толщины: четверки, половинки, трехчетверки.


Рис. 89. Кладка распушки и выдры с дымовым каналом 27х27 см:

а — общий вид трубы; б — порядовки распушки; в — порядовки выдры


Первый ряд — это шейка трубы, выполненная из шести кирпичей с наружным размером 510x510 мм, с дымовым каналом 270х270 мм.

Второй ряд — это начало распушки с наружными размерами 640x640 мм. Кладку ведут из целого кирпича, только для внутренней части распушки кирпич приходится колоть по длине на две части.

Третий ряд с наружными размерами 770х770 мм полностью кладут из целого кирпича.

Четвертый ряд с наружными размерами 910x910 мм кладут с применением целого кирпича и его частей.

Пятый ряд с наружными размерами 1030x1030 мм выкладывают из целого кирпича.

Шестой ряд такой же, как и пятый, только перевязка швов другая. При необходимости увеличить по высоте распушку выкладывают поочередно пятый и шестой ряды.

Седьмой ряд похож на первый и является стояком трубы.

Выдру кладут на стояке в шесть кирпичей. Состоит она из семи рядов.

Первый ряд — это стояк трубы, выполненный в шесть кирпичей.

Второй ряд — первый ряд кладки выдры с уширением с одной стороны для образования свеса.

В третьем ряду кирпичи для свеса укладывают с двух боковых сторон.

В четвертом ряду свес на боковых сторонах удлиняют и доводят до полутора кирпичей.

Пятый ряд похож на третий, с длиной свеса с каждой стороны до двух кирпичей.

Шестой ряд полностью заканчивает оформление свеса. Внутри выдры укладывают по 1/4 кирпича, то есть не уменьшая размеры дымового канала.

Седьмой ряд похож на шестой, только разница в перевязке швов. Толщина свеса при этом становится равной двум рядам кладки. Если требуется увеличить высоту выдры, то последние два ряда чередуют.

Выше выдры кладут шейку трубы в шесть кирпичей, над которой выполняют оголовок.

Следует указать на то, что при кладке выдр некоторым кирпичам приходится придавать нужную форму, выкалывая их местами.

Из рассмотренных двух примеров кладки распушки и выдры видно, что кладка из кирпича — работа достаточно сложная. Легче всего их выполнить из железобетона.

Для арматуры применяют 5-7-миллиметровую стальную (железную) проволоку из расчета по четыре-пять прутков на каждую сторону плиты. Два прутка арматуры должны обязательно лежать на кирпичной кладке.

Плиту для распушки или выдру можно изготовить на месте их нахождения или отдельно с последующей укладкой. В том и другом случае необходимо сделать опалубку. При изготовлении изделия на месте опалубку крепят как можно прочнее. Ширина каждой стороны опалубки должна быть минимум 250 мм «от дыма», но лучше оставлять 380 мм. Это более надежно. По краям опалубки прибивают бруски или доски так, чтобы они поднимались над опалубкой на нужную толщину плиты (под распушку не менее 50 мм). В канале трубы следует вставить доску или фанеру, чтобы в канал не попал бетон.

Работу выполняют так. Устанавливают и крепят опалубку. Готовят нужное количество арматуры. Приготовляют бетон или цементный раствор. Чтобы бетон или раствор сильно не прилипали к опалубке, ее можно покрасить жидким глиняным раствором. На опалубку накладывают слой бетона или раствора, равный половине толщины будущего изделия, хорошо уплотняют его и укладывают арматуру так, чтобы она находилась от краев плиты не менее 2 см. Затем укладывают оставшийся материал, хорошо уплотняют его и выравнивают (рис. 90). Кладку стояка трубы на плите ведут обычно. Чтобы кирпич прочно не схватился с бетоном, последний по месту его укладки покрывают тонким слоем глиняного раствора или просто кладку ведут на растворе. Опалубку следует снимать не ранее чем через три недели.


Рис. 90. Изготовление железобетонной выдры:

 а — опалубка с расположенной арматурой; б — разрез плиты; в — плита в печной кладке; 1 — дымоход; 2 — печная кладка; 3 — арматура; 4 — бортики; 5 — опалубка; 6 — плита


Изготовленная плита служит опорой для распушки, которую выполняют из кирпича, не связывая ее с кладкой трубы.

Плиту нужных размеров можно изготовить и предварительно, но следует знать, что 1 кв. м плиты толщиной в 10 мм весит около 25 кг.

Чтобы распушка была легче, можно поступить так. Изготовляют четыре плиты такого размера, чтобы облицовать ими (укрепить на глиняном растворе) трубу, и четыре плиты бортовые, установив их по краям поддерживающей плиты, прочно скрепив и промазав все щели. Высота плит должна быть 250–300 мм. Полученный таким образом «ящик» заполняют кирпичной кладкой, топливным шлаком или шлаком, смешанным с глиной, или известью, или песком, или сухой землей без растительных примесей (рис. 91). Намного лучше бортовые ограждения делать из двух половинок. Но можно плиту изготовить сразу с бортами.


Рис. 91. Изготовление распушки с заполнителем:

1 — печная кладка; 2 — железобетонная плита; 3 — бортовая плита; 4 — заполнитель; 5 — облицовочные плиты вокруг трубы; 6 — дымоход


Выдру делают или в виде ровной плиты толщиной 20–30 мм, или плиты с откосами (с уклоном). Плиту хорошо армируют. Она должна нависать над трубой по всем сторонам не менее чем на 100 мм. Внизу выдры обязательно устраивают слезники, то есть желобки глубиной не менее 5 мм, располагая их от краев на 10–15 мм (рис. 92). Они предохранят глиняный раствор от размывания, чердачное перекрытие — от увлажнения.


Рис. 92. Изготовление железобетонной выдры:

а — выдра в плане; б — положение выдры на трубе; 1 — слезник; 2 — выдра; 3 — печная кладка


Кирпичные трубы выше кровли следует оштукатурить цементно-известковым или цементным раствором, а также на 50-100 мм ниже кровли.

Выдру, шейку и оголовок можно сделать из монолитного или сборного железобетона толщиной от 30 до 50 мм.

Еще раз напоминаем, что кирпичные и другие трубы необходимо не реже одного, лучше двух раз в году осматривать и в случае обнаружения дефектов тут же их исправлять.

Асбестоцементные трубы

Такие трубы часто ставят вместо кирпичных. Они прочны, легки и не имеют швов. Их устанавливают на кирпичной кладке или бетонной плите простого, а лучше специального изготовления, где для трубы делают выемку или муфту.

Площадь отверстия трубы должна соответствовать площади дымового канала печи. Плиту под трубу желательно выполнить из железобетона, квадратной формы, монолитной или сборной, состоящей из двух половинок. По краям плиты устраивают борта нужной высоты для образования распушки. Пространство между трубой и бортами заполняют кирпичом, шлакобетоном, песком, землей и т. д. Установленную трубу следует прочно закрепить на чердаке.

Выдру для такой трубы выполняют квадратной или круглой формы, монолитной или сборной, из двух половинок, которые прочно скрепляют после установки на трубе и хорошо промазывают швы цементным раствором. Под выдрой также устраивают слезник (рис. 93).


Рис. 93. Асбестоцементная труба:

1 — колпак; 2 — выдра; 3 — кровля; 4 — труба; 5 — облицовка трубы; 6 — заполнитель; 7 — бортовая плита; 8 — плита; 9 — печная кладка


Чтобы выдра прочнее держалась на трубе и не опускалась вниз, под ней ставят цементную муфту или же намазывают раствор толстым слоем только под выдрой. Желательно трубу под штукатурку слегка насечь или сделать рашпилем двух-, трехмиллиметровые запилы. Так же рекомендуется подготовить место и под монолитную выдру. Верх выдры делают с наклоном, а шов между ней и трубой промазывают цементным раствором. На верх трубы лучше всего надеть колпак.

К недостатку асбестоцементных труб можно отнести только то, что они тонкостенны, быстро нагреваются и остывают, а это может привести к образованию конденсата. Поэтому такие трубы как над крышей, так и часть, находящуюся в чердачном пространстве, утепляют.

Утепление труб

Способы утепления труб могут быть различны.

Оштукатуривание. Кирпичные трубы осматривают, если надо, ремонтируют, а затем оштукатуривают известково-шлаковым раствором, с небольшой добавкой цемента. Толщина штукатурки — 50–70 мм. Шлак должен быть мелкий, просеянный, не крупнее 5 мм и обязательно промытый. Удержать штукатурку такой толщины тяжело, она часто будет отваливаться. Поэтому трубу надо подготовить, устроив вокруг нее арматуру или натянуть сетку, но так, чтобы сетка и арматура находились в толще штукатурки, то есть они должны отступать от трубы на 20–30 мм. Для армирования применяют проволоку толщиной от 5 до 10 мм, располагая через 10 мм друг от друга и оплетая их тонкой проволокой, располагая ее через 15–20 мм. Перед оштукатуриванием трубу смачивают водой.

Сперва наносят тонкий слой жидкого раствора (обрызг), а затем три — пять слоев тестообразного раствора. Последний слой хорошо разравнивают и затирают. После высыхания возможные трещины разрезают, замазывают и затирают, а затем белят известковой или меловой краской.

Облицовка шлакобетонными плитами. Изготовляют плиты нужной длины, ширины, толщиной 40–50 мм. Для прочности их можно армировать. Облицовывают трубу плитами, закрепляя их проволокой, а швы тщательно промазывают гипсовым раствором.

Облицовка железобетонными плитами. Их изготовляют толщиной до 20–25 мм, хорошо армируя. Размер их должен быть такой, чтобы после установки между ними и трубой было пространство 50–70 мм по всем сторонам. Устанавливают плиты вокруг трубы, скрепляют проволокой, а пространство засыпают сухими несгораемыми теплоизоляционными материалами (шлаком, керамзитом).

Закрытие щитами. Изготовляют деревянный каркас из теса нужной длины, а ширину берут такую, чтобы после установки он находился от наружных стенок трубы на расстоянии 100–120 мм.

Каркас облицовывают шифером и обитой стороной их ставят к трубе, прочно скрепляя между собой. Промазывают швы, а верх под кровлей закрывают плитками из гипса или бетона, также промазав все щели.

Пространство между щитами и трубой можно засыпать несгораемыми теплоизоляционными материалами.

Точно так же утепляют и асбестоцементные трубы.

Независимо от применяемых несгораемых материалов утепленные трубы следует периодически осматривать и тут же исправлять даже самые незначительные дефекты.

При осмотре облицовку, щиты и каркас снимают.

В целях противопожарной безопасности чердачное пространство и проходящие там трубы должны содержаться в идеальном порядке.

Наружная отделка печей

Имеется несколько способов отделки печей: облицовка изразцами, кладка в стальных футлярах (бураках) круглой или квадратной формы, а также оштукатуривание. Облицовка различными плитками на всевозможных растворах и мастиках безрезультатна, так как от нагревания из-за разности расширения материалов такая облицовка быстро отваливается.

Неотделанные печи выглядят грубо, в швах собирается пыль, которая трудно удаляется. От нагревания печи пыль пригорает, издавая неприятный запах.

Если печь предполагается не отделывать, ее наружные стенки следует выкладывать как можно тщательнее.

Облицовка изразцами

Облицовка изразцами — самый красивый, гигиеничный и распространенный способ отделки. За печью легко ухаживать. Кроме того, в процессе облицовки хорошо перекрываются швы кладки, в которых могут быть трещины, пропускающие в помещение дымовые газы.

Кладка печи с облицовкой требует особого внимания и тщательности.

Перед тем как приступить к работе, необходимо отсортировать изразцы по форме и цвету, а возможно, и размеру. Если этого не сделать, печь будет пестрой.

Сперва изразцы отбирают по форме без наплывов, наружных и внутренних трещин. Затем их сортируют по цвету и оттенкам. Самыми темными по цвету изразцами облицовывают низ печи, чуть светлее идет на второй ряд, более светлыми отделывают третий и самыми светлыми, однородными и чистыми, — последующие ряды.

В размерах изразцов могут быть отклонения. Поэтому после подборки приступают к их обработке: подрубают и притесывают кромки с таким расчетом, чтобы все они были совершенно одинакового размера. Обработанные места шлифуют на мелкозернистом точильном камне, удаляя при этом наплывы глазури. Сначала обрабатывают один изразец, придавая ему самую правильную форму, и он будет шаблоном для обработки последующих. Обрубают изразцы осторожно, применяя для этого нож — хорошо наточенную стальную полоску длиной 200–250 мм, удары по которой наносят так называемым стукальцем-отрезком круглой стали длиной 200 мм и толщиной около 30 мм. Можно применять стальную трубу. Молоток использовать не рекомендуется, так как он имеет узкий обушок и можно промахнуться во время удара и неправильно расколоть изразец. Сперва более сильными ударами стесывают заднюю часть кромки, а затем очень осторожно переднюю, примыкающую к глазури. Обрубленные части шлифуют. Вообще работу следует вести очень осторожно, чтобы не делать больших щербин на глазуровке, исправить которую практически невозможно. Горизонтальные кромки с глазурованной стороны очень немного скашивают во время шлифования, чтобы предохранить глазурь от скалывания или отслоения при давлении на изразцы. Они должны опираться друг на друга ребрами кромок, а не глазурованной поверхностью.

Перепиливают изразцы стальной проволокой, лучше тонкой, которую скручивают (свивают). Один конец крепят к стене или столбу, а к другому привязывают палку, которую кладут на стул или табурет, отодвигают от стены, натягивая тем самым проволоку. Затем садятся на палку, отчего проволока натягивается еще сильнее. На изразце сперва наносят линию-риску, затем берут его двумя руками и водят взад и вперед по проволоке, выполняя распил. Чтобы в процессе распиловки не откалывалась глазуровка, по проведенной риске необходимо прорубить глазурь в виде дорожки шириной 2–4 мм. Во время перепиливания изразец надо держать глазурью к себе, чтобы следить за распиловкой точно по риске. Рабочим ходом распиловки считается тот, при котором изразец ведется на себя, а если наоборот, то глазурь будет откалываться.

После распиловки, держа изразец глазурью к себе, его шлифуют плавными круговыми движениями. Как было сказано выше, с горизонтальных кромок глазурованную сторону слегка скашивают.

Облицовывают печь в следующем порядке. Перед установкой изразцы обязательно смачивают в воде. Сначала выкладывают из подобранного кирпича стенку без раствора. Разбирают ее и оставляют только один нижний ряд. Затем устанавливают первые угловые изразцы нижнего ряда, намазывая их борта тонким слоем жидкого глиняного раствора и подкладывая под румпу густой слой глиняного тощего раствора. Они должны быть установлены строго по вертикали и горизонтали. Конечно, между ними оставляют такое пространство, чтобы можно было вставить нужное количество промежуточных изразцов, каждый из которых насухо примеряют к своему месту, а если требуется, то дополнительно шлифуют, чтобы они как можно плотнее прижимались друг к другу. При установке последующих рядов изразцов горизонтальные швы между ними оставляют толщиной 2–3 мм, что необходимо для их осаживания вместе с кирпичной кладкой, к которой их закрепляют. Установленные насухо изразцы вынимают и ставят на растворе, подкладывая его только под румпу, полностью заполняя все его пространство без пустот.

В процессе установки их проверяют на вертикальность и горизонтальность всего ряда. Если имеются отклонения, их выравнивают (рис. 94). Вертикальные швы между изразцами должны вплотную примыкать друг к другу без заполнения их раствором. Горизонтальные швы заполняют раствором. Установив первый промежуточный изразец, примыкающий к угловому, его придерживают рукой и заполняют промежуток между румпами раствором, вдавливая в него куски красного кирпича как можно плотнее друг к другу, чтобы между ними не было зазоров. Если будут зазоры (трещины), то в дальнейшем между ними окажется воздух (воздушные мешки), снижающий нагревание облицовки. Между двумя изразцами образуется валик глиняного раствора, удерживающий изразцы на месте. В установленные два изразца через отверстия в румпах ставят штыри из стальной проволоки толщиной 4–5 мм, длиной на 20–30 мм больше высоты румп. Чтобы штыри не могли опуститься вниз, их верхний конец загибают, и они таким образом опираются на румпу. Для более плотного сжатия изразцов друг с другом головки двух соседних штырей обматывают три раза мягкой печной проволокой. В промежуток между румпами в полученную проволочную связку вставляют гвоздь и скручивают ее, сжимая все изразцы друг с другом.


Рис. 94. Облицовка печи изразцами:

а — детали изразца: 1 — пластина; 2 — лицо; 3 — отверстия для штырей; 4 — румпа;

б — крепление изразцов: 1 — кирпич; 2 — изразцы; 3 — румпа; 4 — штыри; 5 — скобы; 6 — проволочная вязка; 7 — петли


Снизу и по боковым сторонам на румпы надевают скобы, изготовленные из пачечной стали толщиной 2 и шириной 15 мм. Заготовки для скоб нарезают по 100 мм. Скобы надежны только тогда, когда они сделаны из достаточно твердой (пружинящей) стали и в процессе надевания на румпы требуются значительные усилия на раздвигание их концов. Если скобы не отвечают этим условиям, то применение их бесполезно.

Для закрепления изразцов в кирпичной кладке печи на каждый штырь необходимо крепить по два куска печной проволоки для образования мочек в виде петли или с концами-усами (вилкой).

Ставят их по две-три штуки на штырь на одном уровне с рядом кладки, то есть против шва для последующего зажима верхними рядами кирпича. Концы проволоки загибают за кладку.

Нижние части румп заполняют без пустот глиняным раствором с укладкой хорошо смоченного в воде щебня из красного кирпича. Щебень из огнеупорного кирпича применять нельзя: он при нагревании расширяется гораздо больше изразцов и может порвать их. Первый ряд печной кладки укладывают вплотную к облицовке, заполняя пустоты глиняным раствором. Против этого ряда к штырям крепят мочки и кладут их на уложенный кирпич для последующего защемления кладкой. Выложив первый ряд, приступают к дальнейшему заполнению пустот в румпах и пространства между ними и выполняют кладку.

В верху румп ставят еще мочки и заделывают их кладкой. Конечно, мочки мешают в работе, если их закрепить заранее. Лучше всего их ставить в процессе кладки.

Выполнив полностью всю облицовку, поверхность печи обтирают, удаляют грязь и глину, приготовляют жидкое гипсовое тесто и смазывают им облицовку, особенно швы. Как только гипс слегка схватится, его удаляют чистой тряпкой, а вместе с ним и прилипшую грязь. Гипс остается только в швах. Если после тряпки протереть печь мягкой бумагой, то изразцы станут еще чище, так как бумага снимет возможно незаметные следы гипса. Оставшийся в швах гипс высыхает и становится белым.

Изразцы кладут одновременно с кладкой печи. По санитарным требованиям, печь должна нагреваться до температуры 70 °C, а облицованная изразцами — до 90 °C, повышая тем самым теплоотдачу печи 1 кв. м на 150 ккал/ч. Это допустимо потому, что пыль с печи легко удаляется и при нагревании последняя не сгорает и не издает запаха.

Кладка печей в футлярах

Печная кладка, выполненная в футлярах, имеет гладкие стенки, газонепроницаема и соответственно очень прочная.

Футляры изготавливают из кровельной стали массой не менее 5 кг в листе для прямоугольных печей и не менее 4 кг — для круглых.

Они состоят из отдельных звеньев (царг) высотой 700 мм, называемых бураками. Чаще всего в футлярах кладут печи в 1/4 кирпича. Отделанные таким образом печи имеют недостаток. Стальные футляры легко продавливаются, образуя вмятины, и внешний вид печи становится непривлекательным. Особенно это заметно на печах квадратной и прямоугольной формы. Для придания футлярам жесткости применяют гофрированную сталь, которая лучше сохраняет форму.

Бураки футляра устанавливают по мере ведения работ и являются как бы опалубкой и облицовкой для выполняемой кладки. Сначала делают основание печи, устанавливают на нее нижний (первый) бурак и прочно закрепляют, а внутри его выполняют печную кладку, которая должна плотно примыкать к поверхности бураков. Все неплотности заливают глиняным раствором, так как воздушные прослойки между кладкой и стенками футляра значительно уменьшают теплоотдачу поверхности футляра.

Окончив внутреннюю кладку в нижнем бураке, на него надвигают (надевают) сверху следующий и продолжают кладку. Каждый надеваемый бурак обязательно устанавливают строго по уровню и отвесу. Воздушные прослойки между кладкой и футляром не допускаются. Местных вспучиваний футляра не должно быть. Совпадение вертикальных швов кладки толщиной в 1/4 кирпича допускается только в двух смежных рядах. Лучше всего добиваться полной перевязки швов.

Выложив печь, ее поверхность тщательно очищают и покрывают печным лаком, хорошо выдерживающим высокую температуру.

Оштукатуривание печей

Отделка печей оштукатуриванием — также один из распространенных способов. При правильно приготовленном растворе такая отделка служит длительное время. Лицевые поверхности печей оштукатуривают после того, как кладка полностью высохла и не может быть осадки печи.

Поверхности печи тщательно очищают от пыли и глины, расчищают швы кладки, удалив глину на глубину 5-10 мм, чтобы в последующем в швах лучше заклинился раствор.

Печь протапливают для того, чтобы в печной кладке произошли максимальные изменения из-за усыхания глиняного раствора, и по горячим поверхностям ее оштукатуривают, но предварительно смачивают водой.

Чтобы лучше удержать раствор на стенках печи в процессе кладки, рекомендуется в швы закладывать проволоку так, чтобы она находилась примерно в середине кладки, а концы выходили на лицевую сторону на 50-100 мм. Лучше всего их выпускать в виде двух концов (вилки). По стенке производят проволочное плетение и закрепляют выпущенными концами, а еще лучше натянуть сетку с сечением ячеек не крупнее 10x10 мм и закрепить этими концами, которые располагают в шахматном порядке по поверхности печи через 70-120 мм друг от друга. Это очень надежная подготовка.

Толщина слоя штукатурки рекомендуется 10 мм, иногда ее доводят до 15–20 мм, но это хуже.

Прежде всего горячую печь смачивают водой и наносят сметанообразный слой раствора (обрызг) толщиной 5–6 мм, а на него более густой слой такой же толщины, выравнивают его и затирают. Если в процессе высыхания штукатурка покроется трещинами, то их разрезают, смачивают водой, заполняют раствором и затирают.

Для оштукатуривания печей обычно применяют глиняные или известково-глиняные растворы, но они не всегда обеспечивают должного качества штукатурки.

Лучше использовать более прочные, армированные мелким асбестом VII сорта, как более дешевые. Материалы отмеривают объемными частями. Рекомендуются следующие растворы:

состав 1 — одна часть глины, одна часть известкового теста, две части песка, 0,1 части асбеста;

состав 2 — одна часть глины, две части песка, одна часть цемента, 0,1 части асбеста;

состав 3 — одна часть гипса, две части известкового теста, одна часть песка, 0,2 части асбеста.

Растворы приготовляют так. Просеивают все материалы через частое сито. Затем приготовляют сухую смесь по рецепту выбранного состава и все тщательно перемешивают.

Приготовляют густое глиняное или известковое молоко, хорошо перемешивают с сухой смесью и получают раствор. Для обрызга в раствор добавляют воду до получения сметанообразной массы. На свеженанесенный обрызг наносят второй слой грунта, разравнивают его и затирают. Растворы с гипсом надо применять в дело быстро за 4–5 мин с момента приготовления.

После высыхания штукатурки и исправления возможных трещин окрашивают известковым молоком с солью (на ведро известкового молока 100 г поваренной соли) или разводят известковое тесто на снятом молоке. Можно мел приготовить на снятом молоке.

Окрашивать печи масляной краской не следует, так как от нагревания она разлагается, олифа пригорает, в результате появляется неприятный запах.

Противопожарные меры при кладке печей и труб

Чем лучше содержатся печи, тем безопаснее они в противопожарном отношении.

Необходимо помнить, что небрежно выложенная печь всегда дает большую осадку с появлением в ней трещин и выкрашиванием раствора из швов. Проникающие через трещины и швы горячие газы и огонь приводят к быстрому загоранию сгораемых конструкций, особенно деревянных. Пожары происходят также от беспечного ведения топки.

К пожарам приводит и загорание сажи, которая собирается в дымовых каналах, а от очень сильного их нагревания загораются деревянные конструкции, прилегаемые к печи.

Поэтому все деревянные части здания: стены, перегородки, полы, перекрытия и другие следует удалять на определенное расстояние от нагревающих поверхностей печи с устройством разделок или отступок, то есть от утолщения кладки стенок печи или трубы. Толщина этих разделок или расстояние от «дыма» до сгораемой конструкции должна быть следующей, мм:


Типы отопительных печей периодического действия Конструкция, не защищенная от возгорания Конструкция, защищенная от возгорания
Теплоемкие печи и дымовые трубы со стенками в 70 мм и более 380 250
Керамические и металлические печи (с футеровкой) со стенками толщиной до 70 мм 500 380
Металлические печи без футеровки 1000 700

Деревянные рубленые стены в процессе усыхания древесины или уплотнения конопатки дают осадку, что нарушает прочность разделок. Поэтому высоту разделок делают на размер возможной осадки.

Можно изолировать (закрывать) печи надежной изоляцией из несгораемых и нетеплопроводных материалов: листовым асбестом или двух-, трехслойным войлоком, который плохо проводит тепло и в то же время хороший теплоизоляционный материал. При возгорании он тлеет, издавая неприятный запах сгораемой шерсти, что и сигнализирует об опасности пожара. Чтобы предохранить войлок от разрушения молью и обеспечить минимальную возгораемость, его перед укладкой на место пропитывают жидким глиняным раствором.

Запрещается настилать полы или делать подшивку вплотную к стенкам коренной трубы или печам; они должны только доходить до края разделки. Над разделкой в этом случае применяют бетон или керамические плитки.

При установке печи между сгораемыми деревянными стенами или перегородками между ними делают отступ не менее 130 мм, с изоляцией дерева со стороны разделки, а расстояние между деревом и «дымом» должно быть не менее 250 мм.

Без изоляции дерева это расстояние увеличивают до 380 мм.

Отступку иногда закрывают (закладывают) с боковых сторон. В этом случае деревянную стену изолируют так называемой «холодной четвертью», то есть стенкой толщиной в 1/4 кирпича, которую выкладывают по войлоку.

В новых домах с бревенчатыми или брусчатыми стенами, учитывая, что они дадут большую осадку, при закрытой отступке с боков надо устанавливать деревянный щит, прикрепленный к стене так, чтобы он скользил между деталями крепления и не мешал осадке стены.

На этом щите делают «холодную четверть» также по уложенному войлоку.

Так как удержать кирпич на войлоке практически весьма трудно, то надосначала на щит или стену настелить войлок, прибить его гвоздями, чтобы он не спадал, а затем на глиняном растворе уложить кирпич, закрепляя его гвоздями с надетыми шайбами или выполняя по гвоздям проволочное плетение. После кладки кирпич оштукатуривают глиняным или другим, более прочным раствором (рис. 95).


Рис. 95. Изоляция стен от печи:

1 — щит; 2 — костыль; 3 — войлок; 4 — кирпичи; 5 — шайбы, прибитые гвоздями; 6 — гвозди; 7 — отступка 13 см; 8 — кровельная сталь, прибитая к двум слоям войлока


В закрытом воздушном промежутке для циркуляции воздуха между печью и «холодной четвертью» внизу и вверху с боковых сторон надо сделать отверстия, закрыв их решетками (рис. 96). «Холодную четверть» делают высотой и шириной в отступках, равными ширине и высоте печи, но не меньше (рис. 97).


Рис. 96. Отступка между печью и деревянной стеной:

1 — деревянная стена; 2 — кирпичная кладка; 3 — деревянный щит; 4 — два слоя войлока; 5 — вентиляционные решетки; 6 — отступка 13 см


Рис. 97. Отступка между печью и деревянными перегородками:

1 — деревянные перегородки; 2 — два слоя войлока; 3 — отступка 13 см; 4 — отступка 25 см


Когда кухонная плита стоит в проеме деревянной перегородки или между деревянными стенами, разделку выполняют по бокам плиты в полкирпича, над плитой — в два кирпича.

Вертикальные разделки не допускают перевязки с кладкой печи или трубы независимо от того, на каком растворе эти разделки выполнены.

Категорически запрещается какое бы то ни было соединение зольников печей с подпольем.

Обязательно надо оставлять промежуток от верха потолка до перекрытия печи (перекрыши) не менее 350 мм, а при изолировании потолка — 250 мм. Он должен быть доступен для осмотра, ремонта и очистки от пыли. Если печи теплоемкие, имеющие массу до 750 кг, то промежуток оставляют в 350–450 мм, а для нетеплоемких — 700-1000 мм.

Деревянные потолки над печами оштукатуривают по войлоку или изолируют двумя слоями войлока с тем, чтобы эта изоляция как для штукатурки, так и обивки кровельной сталью была на 150 мм больше по всем сторонам, чем размеры печи.

Если печь подключают к дымовой трубе с помощью патрубка, то до деревянного потолка или перегородок расстояние устанавливают не менее 500 мм или 380 мм, если есть изоляция.

Деревянные полы перед топливником любой печи изолируют двумя слоями войлока и покрывают листом кровельной стали размером не менее 500x700 мм, накрыв плинтус кровельной сталью.

Под кухонными очагами или печами на ножках деревянные полы обязательно покрывают асбестом или двуслойной войлочной изоляцией. Размер этой изоляции должен быть равен печи или больше ее по всем сторонам на 150 мм.

Печи и трубы следует систематически осматривать и тут же исправлять возможные дефекты.

В зимнее время особенно тщательно надо следить за печами и трубами, так как их топят больше.

Печи-времянки ставят на расстоянии от сгораемых конструкций не менее 1 м. Категорически запрещается складывать возле топок легковоспламеняемые материалы.

Следует также обратить особое внимание на кладку печных труб и содержание их в соответствующем порядке (см. раздел «Устройство дымовых труб»).

Разделки кладут на глиняном, известковом, известково-цементном или цементном растворе. Они не должны перевязываться с кладкой трубы и быть толщиной, равной стенке или перегородке. Обычная толщина разделок в 1/4 или 1/2 кирпича.

Примыкающую часть сгораемой конструкции к разделке изолируют листовым асбестом или двумя слоями войлока. Желательно войлок предварительно пропитать в антимолевом составе. Толщина войлочной изоляции должна быть не менее 20 мм. Если войлок тонкий, то его кладут в два-три слоя.

Ширина отступки или разделки считается «от дыма», то есть от внутренней поверхности печи или дымохода, и равняется 380 мм при незащищенных от возгорания конструкциях и 250 мм, если они защищены от возгорания изоляцией.

Часто в стенах, где проходят дымовые каналы, приходится укладывать деревянные балки (рис. 98). Они должны быть расположены так, чтобы между балкой и внутренней поверхностью канала было расстояние не менее 250 мм для дымоходов от обычных печей и 380 мм — от печей с продолжительной топкой. Концы балок со стороны канала изолируют, но торцы оставляют открытыми. Более надежно оставлять между балками, их концами и дымоходами расстояние в 380 мм с обязательной укладкой изоляционного слоя.


Рис. 98. Изоляция концов балок в печной кладке около каналов


Иногда балка приходится против дымоходов и отнести ее в ту или другую сторону невозможно, тогда ее укорачивают и врезают в ригель короткую поперечную балку, уложенную, в свою очередь, на две балки. Их скрепляют друг с другом шипом «ласточкин хвост» (рис. 99). Концы балок, заложенных в стену, и ригель, примыкающий к стене, изолируют.


Рис. 99. Устройство ригеля:

1 — балки; 2 — ригель; 3 — изоляция (войлок)


У коренных и насадных труб, а также у стен в местах прохождения каналов на уровне междуэтажных и чердачных перекрытий в процессе кладки стены или трубы выполняют горизонтальные разделки или распушки, которые изготовляют в процессе кладки трубы, увеличивая толщину разделки. У кирпичных печей с кратковременной топкой толщину принимают в один кирпич. Это расстояние считается от «дыма» до сгораемых деревянных конструкций, которые необходимо обить листовым асбестовым картоном или двумя слоями войлока. Если нет изоляционных материалов, толщину разделки доводят до полутора кирпичей. Однако и при такой разделке нужна изоляция (рис. 100).


Рис. 100. Разделка распушки в чердачном перекрытии:

1 — балка; 2 — брусок; 3 — накатник; 4 — засыпка; 5 — изоляция


Если печи или кухонные очаги (плиты) топятся свыше 3 ч, то разделка должна быть в полтора кирпича с обязательной изоляцией. При отсутствии изоляции разделку доводят до двух кирпичей.

Кладка разделки — дело сложное, поэтому в междуэтажных и чердачных перекрытиях для поддержания кирпичной кладки лучше всего применять железобетонную плиту толщиной 50 мм. На этой плите после кладки стояка может быть легко выполнена разделка (рис. 101).


Рис. 101. Железобетонная плита для поддержания кирпичной разделки:

1 — плита; 2 — разделка; 3 — стояк трубы


Устраивая разделки, следует принимать во внимание различную осадку стен здания, коренных труб и печей. Каменные стены, трубы и печи дают малую (незначительную) осадку. Деревянные рубленые стены, особенно из невысохшего материала, оседают в среднем до 150 мм. Подъем и осадка стен также бывают при оконопатке. Вместе со стенами оседают и перекрытия. До начала оконопатных работ изоляцию вокруг разделки удаляют. Необходимо помнить, что запрещается опирать кирпич кладки разделки на балки или настил перекрытия. Во время осадки там может быть образована трещина, что приведет к пожару.

Когда стены дают осадку бо́льшую, чем коренная или насадная трубы, то разделку выполняют так, чтобы она имела запас внизу вовнутрь помещения. Если же коренная труба и печь с насадной трубой дают осадку бо́льшую, чем стены и перекрытие, то распушка должна иметь запас вверху по высоте (на чердаке) (рис. 102). Чердачное перекрытие часто засыпают легкими, малотеплопроводными сгораемыми материалами: опилками, торфом, сухими древесными листьями и др. Сверху такие материалы обязательно засыпают шлаком, землей, песком слоем в 20 мм. При этом разделка должна возвышаться над засыпкой не менее 70 мм, а вообще чем больше, тем лучше. Около нее делают полностью несгораемую засыпку толщиной не менее 100 мм.


Рис. 102. Расположение распушки с учетом осадки перекрытия:

а — до осадки; б — после осадки; 1 — распушка; 2 — перекрытие; 3 — стояк трубы


Деревянные стропила и обрешетка должны отстоять от наружных поверхностей кирпичных труб не менее 130 мм. При сгораемых кровлях расстояние между кровлей и трубой должно быть минимум 260 мм. Оставшийся промежуток перекрывают кровельной сталью или асбестоцементными листами.

Ремонт и эксплуатация печей

Долговечность печи и ее правильная работа зависят от того, как она выполнена, как за ней ухаживают и эксплуатируют. Правильная эксплуатация и своевременный уход намного повышают срок службы печей, которые к тому же будут потреблять наименьшее количество топлива для нагревания.

Ремонт печей

Ремонт делится на три вида: текущий (самый мелкий), средний и капитальный.

К текущему ремонту относятся мелкие работы, выполняемые в кратчайший срок, так как они могут повлечь за собой более крупные неисправности, приводящие к пожару или несчастным случаям. Это такие виды работ, как замазка трещин, замена дверок, колосниковых решеток, задвижек, отдельных кирпичей или укрепление изразцов.

Укрепление и замена топочной дверки. Для укрепления дверки прежде всего ее вынимают с рамой из печной кладки, часто с разбором небольшого количества кирпича. Если лапки рамки пришли в негодность, их заменяют новыми. К новой дверке также необходимо поставить лапки. Кладку в местах постановки дверок расчищают, смачивают водой, устанавливают рамку на место так, чтобы лапки попали в швы кладки. Кладку выполняют обычно. Швы заполняют полностью раствором. Пришедшие в негодность кирпичи заменяют новыми. Между кладкой и рамкой следует оставить щель толщиной в 5-10 мм и заделать ее затем асбестовым шнуром. Если шнур отсутствует, кладку выполняют вплотную к рамке. Прочно закрепленная рамка не будет расшатываться и выпадать. Дверка, установленная без лапок, быстро выпадает.

После укрепления рамки все имеющиеся трещины замазывают глиняным раствором, швабруют или затирают его.

Замена колосниковой решетки. Пришедшую в негодность колосниковую решетку удаляют, расчищают от золы освободившееся место и ставят на него новую решетку. Если старая была установлена с небольшим подъемом вовнутрь топливника, то новую ставят точно так же. Между кладкой и решеткой по всему ее периметру оставляют зазор не менее 5 мм, который засыпают золой или песком.

Заделка щелей. Щели в швах кладки расчищают на глубину 20–30 мм, удаляют весь раствор и смачивают расчищенное место водой. Затем полностью заполняют расчищенные швы глиняным раствором, затирая или швабруя его.

Замена треснувших кирпичей. Треснувшие кирпичи вынимают, расчищают от раствора занимаемое ими место, подбирают новый кирпич и примеряют его. Расчищенное место и вставляемый кирпич обильно смачивают водой, намазывают кирпич глиняным раствором и вставляют на место. Если швы местами окажутся не совсем заполненными, то их дополнительно промазывают раствором, тщательно вдавливая его в швы с последующей затиркой или швабровкой.

Замена отдельных изразцов и их ремонт. Трещины в изразцах могут быть заделаны гипсовым раствором, лучше затворенным на растворе алюминиево-калиевых квасцов, или мелом, приготовленным на сыром яичном белке. Сильно растрескивающиеся изразцы заменяют новыми, предварительно подобрав по цвету и размеру и исправив их. Заменяемый изразец осторожно вынимают и расчищают занимаемое им место. Затем подгоняют новый по размеру старого, заполняют его румпу густым глиняным раствором с кирпичным щебнем и вставляют на место. Прочность такой вставки гораздо меньше, так как изразец не закрепляется в кладке мочками (проволокой).

Загрязненные поверхности изразцовой облицовки очищают так. Сначала влажной тряпкой протирают все поверхности, затем приготовляют чистое сметанообразное гипсовое тесто и наносят его тонким слоем. Работу выполняют рукой. Как только гипс начнет слегка схватываться, его протирают сухой тряпкой так, чтобы не оставалось следов. Вместе с ним удаляют грязь. Оставшийся в трещинах гипс станет белым.

Замена предтопочных листов. От времени на листах стали появляются рваные места, затрудняющие уборку. Попадая на них, горячие угли могут вызвать загорание пола. Разрушенные листы стали отрывают, гвозди вынимают, закрывают пол листовым асбестом или вымоченным в глиняном растворе войлоком и закрывают новым листом кровельной стали, прибивая его по краям.

Мелкий ремонт стенок топливника или футеровки. Работу выполняют через топочную дверку. Мелкие разрушенные места расчищают и замазывают глиняным раствором, огнеупорной глиной или огнеупорным бетоном. Разрушенные один-два кирпича футеровки удаляют, расчищают под ними места и вставляют на том же растворе, на каком велась кладка, недостающие кирпичи.

Средний ремонт включает ликвидацию завалов в дымооборотах, исправление повреждений трубы, замену стенок футеровки и другие работы, связанные со значительными повреждениями.

Завалы в дымооборотах происходят от длительной работы печей или плохой перевязки швов в процессе кладки. Часто завалы бывают от применения в стенках дымоходов недоброкачественного кирпича, который разрушается при длительной эксплуатации печей. Завал может быть удален через топливник или прочистные отверстия. Если этого сделать нельзя, то приходится разбирать кладку стенки с последующим восстановлением внутренних перегородок и разобранной стенки печи. Самое доступное определение завалов — путем нагрева печи.

Перестилка пода, сводов и перекрыши печи. От длительного передвигания по поду различной посуды его ровная поверхность изнашивается. Кирпич сводов и перекрыши от нагревания трескается и разрушается. Все это требует ремонта.

Ремонт пода с постановкой отдельных кирпичей — быстрая и малотрудоемкая работа. При полной перестилке поступают так. Сначала отбирают и сортируют кирпич, затем снимают кирпичи пода, выравнивают основание (песок), придавая ему нужный уклон (подъем) к задней стенке камеры. Настилать кирпич для нового пода начинают от шестка с постепенным переходом к задней стенке. Работу ведут через устье. После настилки под шлифуют кирпичом с песком, выравнивая отдельно выступающие неровности. Щели между кирпичами засыпают золой или мелким песком. При ремонте свода и перекрыши кладку печи приходится разбирать, удалять пришедший в негодность кирпич и выкладывать вновь свод или перекрышу точно такими, какими они были до ремонта.

Оголовки дымовых труб. Выполненные из кирпича оголовки от воздействия на них атмосферных осадков со временем разрушаются, приходят в негодность и создают пожароопасное состояние. Для ремонта следует отобрать хорошо обожженный кирпич. Разрушенную часть трубы разбирают, удаляют с оставшейся кладки глиняный раствор и все хорошо смачивают водой. Кладку ведут с тщательной перевязкой швов на цементном или смешанном растворе. Верхнюю оконечность трубы выравнивают цементным раствором, придавая ему скос к наружным сторонам. Это не только облегчает движение дымовых газов, но и предохраняет трубу от намокания. В мокрой трубе ухудшается тяга. Вместо цементного раствора можно покрыть трубу кровельной сталью или прикрыть ее футляром, выполненным из более толстой листовой стали.

Противопожарные разделки. От осадки различных конструкций, ударов, сотрясений, плохо выполненной кладки разделок последние постепенно разрушаются. Кладка расстраивается, глиняный раствор выкрашивается. Чаще всего разделки разрушаются у дверных коробок, которые следует надежно закрепить. Толщина разделки зависит от конструкций печей. Для обычных комнатных печей — не менее 120 мм (половина кирпича). Для кухонных очагов и отопительных печей, стенки которых нагреваются свыше 100 °C, толщина разделки достигает 250 мм с обязательной прокладкой войлока, вымоченного в глиняном растворе. Более надежные разделки толщиной 380 мм, которые разрешается ставить без войлочной прокладки, но лучше с прокладкой вымоченного в глиняном растворе войлока. Вместо кирпичных разделок можно ставить бетонные из отдельных элементов или с постановкой каркаса, натягиванием на него сетки и оштукатуриванием цементным раствором. Такая разделка прочна и не имеет швов. Толщина ее может быть 30 мм и более.

Особенно следует обращать внимание на разделки в пределах чердака, которые должны периодически осматриваться и белиться известковой или меловой побелкой, на которых легко замечаются черные налеты сажи при наличии сквозных трещин в кладке.

Капитальный ремонт требует более или менее длительной работы с остановкой топки печи на нужный срок, что связано со сложностью работ. Относятся: смена футеровки топливника и жарового канала, переделка топливника с глухим подом на топливник с колосниковой решеткой и поддувалом, переделка топливника для дров под топливник для сжигания углей, переделка схемы дымооборотов и т. д. Для выполнения таких работ приходится или частично разбирать печь, или только одну-две стенки.

Смена футеровки топливника. Разбирают стенку печи от пола или зольника на высоту топливника. Если приходится одновременно переделывать и дымоходы, то стенку разбирают до самой перекрыши. Футеровку выполняют без перевязки ее с основной кладкой из обычного кирпича. Сначала разбирают пригодную кладку футеровки, очищают стенки печи от раствора, убирают весь мусор и приступают к облицовке на огнеупорном растворе. Толщина футеровки остается такой же, какой была ранее, чаще всего из кирпича на ребро, в больших печах — из кирпича плашмя. Толщина швов должна быть не более 3 мм.

При переделке дымоходов в первую очередь разбирают существующие, а затем выполняют вновь, перевязывая их с основной кладкой и оставляя те же самые размеры (рис. 103).


Рис. 103. Ремонт печей:

а — топливника; б — перекладка топливника и дымоходов; 1 — линия перекрытия печи (перекрыша); 2 — линия перекрытия топливника


Изменение дымоходов при ликвидации конденсации. Ликвидируют или исключают один-два дымохода или же устраивают к ним из топливника по одному окошечку в каждый дымоход размером 50x50 мм. Обычно эти окошечки устраивают в последний и предпоследний дымоходы, но еще лучше исключить один-два дымохода и в оставшихся последнем и предпоследнем дымоходах устроить окошечки. В этом случае приходится разбирать стенку внизу и вверху печи. Следует помнить, что восстанавливать разобранные стенки печи следует весьма тщательно.

Переделка топливника с глухим подом на топливник с поддувалом и колосниковой решеткой. Если основание печи находится от пода на расстоянии пяти рядов кладки или больше, то топочную дверку оставляют на месте. Если же количество рядов кладки меньше, то дверку поднимают на несколько рядов. При этом высота топливника для дров должна быть не менее 500–550 мм, а для угля — не менее 400–450 мм. Топливники для угля или антрацита рекомендуется оборудовать герметически закрываемыми поддувальной и топочной дверками. Во вьюшках или задвижках просверливают отверстия диаметром 10–15 мм. Колосниковую решетку под антрацит ставят такого же размера, как и для дров, но более тяжелого профиля. Порядок работы следующий. Сначала разбирают переднюю стенку, снимают дверку, разбирают под кладки, убирают мусор и приступают к кладке с устройством поддувала, установкой поддувальной дверки, колосниковой решетки и топочной дверки и заделывают разобранную стенку кирпичом с соблюдением перевязки швов.

Переделка одной печи на две. Если имеется большая печь и такой конструкции, которая позволяет переделать ее на две, то поступают так. Разбирают одну из стенок, определяют размеры и намечают переделку внутреннего устройства на две независимые печи с отдельными топливниками и дымооборотами, которые только вверху, около перекрыши, сходятся в одну трубу. Если этого сделать невозможно, то приходится для каждой печи делать свою трубу.

Кроме рассмотренных, имеются и другие виды переделок. К каждой переделке следует подходить индивидуально, тщательно продумав весь процесс работы, соблюдая соответствующую осторожность.

Топка печей

Нагревание печей зависит не только от топлива, но и от умения правильно выполнять топку, а также от состояния самой печи.

За печью следует систематически ухаживать, то есть чистить трубы, замазывать все, даже самые незначительные трещины, которые не только опасны в пожарном отношении, но и сильно снижают нагревание печи в целом, а к тому же могут повести к образованию конденсата. Например, при наличии 2-миллиметровой трещины вокруг периметра рамки задвижки трещина дает возможность в течение часа просачиваться через нее до 15 куб. м воздуха, который, нагреваясь до 80-100 °C, будет уносить тепло, а это составляет около 10 % потерь тепла печью.

При подаче излишнего воздуха через поддувало потери тепла печью достигают 15–25 %, а если горение происходит с открытой топочной дверкой, то — 40 %. Все это говорит о том, насколько вредны различные трещины и щели. Чистить и ремонтировать печи достаточно один раз в год в летнее время, но дымовые трубы приходится чистить от сажи два-три раза в отопительный сезон.

Необходимо помнить, что нагрев стенок печи зависит прежде всего от того, в каком состоянии они находятся. Если на стенках печи или в дымоходах много сажи, то они нагреваются очень слабо и на топку приходится затрачивать гораздо больше топлива и времени. Толщина сажи в 1–2 мм значительно ухудшает восприятие тепла стенками.

Перед топкой надо очистить колосниковую решетку, удалить всю золу, что обеспечит свободное прохождение воздуха к горящему топливу.

Топливо нужно заготавливать заблаговременно, чтобы оно высохло. Колотые дрова считаются сухими только через год и после того, как они были уложены в клетку и находились на улице под навесом. При сгорании сырого топлива имеющаяся в нем влага превращается в пар, который, проходя по каналам печи, охлаждает их, а попадая на холодные стенки трубы, оседает на них, превращаясь в капли, которые, стекая, смешиваются с сажей и образуют конденсат.

Теплотворная способность топлива разная. Возьмем, к примеру, сухие дрова разных пород. Например, 1 куб. м березовых дров равноценен 3/4 куб. м дубовых, 1,1 куб. м — ольховых, 1,2 куб. м — сосновых, 1,3 куб. м — еловых, 1,5 куб. м — осиновых. Отсюда видна выгодность применения для топлива дров той или другой древесной породы. Дрова должны быть наколоты на поленья средней толщины 80-100 мм. При взятии дров на топку поленья следует отбирать одинаковой толщины, так как они будут сгорать одновременно, что очень важно для нагревания печи.

Торф практически может гореть в любых печах, но для этого в них надо усилить тягу. Для торфа лучше всего класть печи с соответствующим топливником.

Длительность топки печей составляет в среднем 1–1,5 ч. После топки поверхность печи должна быть нагрета до температуры 70–80 °C и в редких случаях — до 90 °C. При более высокой температуре пыль на поверхности печи пригорает, выделяя неприятный запах. Поэтому лицевые стенки печи следует систематически очищать, вытирая сухой тряпкой собравшуюся пыль. Особенно это надо делать в начале отопительного сезона. Перегревать печь длительной топкой не следует. Это может привести к образованию трещин и расстройству печной кладки. Имеются печи, которые топят через один-два дня. Такие печи или хорошо построены, или имеют несоразмерно большие размеры по сравнению с площадью отапливаемого помещения. Большие печи не всегда хороши. В одном случае они занимают много места, а в другом из-за большой температуры в помещении приходится часто открывать форточки для проветривания, а это приводит к перерасходу топлива.

Все это говорит о том, что очень большие печи неэкономичны.

Размеры топок у всех печей должны быть выполнены по тем размерам, которые даны в порядовках.

В топку сразу закладывают все количество дров, которое необходимо для нормального нагревания печи. Кладут их в клетку или рядами, чтобы между поленьями были зазоры до 10 мм. Это необходимо для того, чтобы все поленья начинали загораться сразу со всех сторон, создавая как можно больше жара. При этом дровяная кладка не должна доходить до верха топливника минимум на 200 мм. При таких условиях мелкие частицы топлива и различные горючие вещества сумеют сгореть в топливнике до того, как они попадут в дымоходы. Во-первых, это повышает температуру печи и максимально используется теплотворная способность топлива, во-вторых, попадая в дымоходы, несгоревшие частицы засоряют их и они меньше поглощают тепла. Топливо укладывают так, чтобы оно ровным слоем лежало на колосниковой решетке или на поду печи ближе к топочной дверке. Для растопки под нижний ряд кладут самые сухие поленья, а под них сухие щепки, лучины, бумагу. Категорически запрещается применять для растопки керосин, бензин, ацетон и тому подобные взрывоопасные вещества.

Некоторые печи при растопке дымят. В таких печах надо сначала сжечь бумагу, тонкие лучины, стружку, чтобы дымоходы заполнились теплым воздухом, а затем растапливать печь.

Толщина слоев топлива на колосниковой решетке рекомендуется следующая:


для дров влажностью 25 % 250–350 мм

для торфа кускового влажностью 30 % 200–300 мм

для каменного угля 100–160 мм

для антрацита 150–240 мм


Растапливая печь, открывают полностью топочную дверку, заслонки, задвижку и вьюшки. После растопки, как только дрова разгорятся, топочную дверку закрывают, а поддувальную открывают. Тягу в печи регулируют поддувальной дверкой, задвижкой или вьюшкой. Тяга должна быть достаточно хорошей, но не излишней.

Следует помнить, что топливник, полностью не заполненный топливом, не дает возможности хорошо протопить печь. При правильно и полно загруженном топливнике топливом большой эффект получается тогда, когда дрова хорошо разгорятся. Надо только следить за тем, чтобы в печь не попадал избыточный воздух. Прорыв лишнего (холодного воздуха) охлаждает печь, то же происходит и из-за несвоевременного закрывания печи, которое сопровождается потерей 15–20 % тепла, а иногда и больше.

Обычно силу тяги определяют по цвету пламени: если пламя красное, с темными полосами, а из трубы идет густой бурый или черный дым, значит, не хватает воздуха и его приходится увеличивать; когда цвет пламени золотисто-желтый, подача воздуха считается нормальной, а если пламя ярко-белого цвета и слышится гудение в каналах печи, это говорит о том, что воздух поступает в избытке и его надо уменьшить.

Самое ценное в топке печи считается то время, когда дрова в топливнике хорошо разгорятся, а во всех дымооборотах печи образуется наивысшая температура, при которой сильнее всего нагревается печь в целом. Во время топки печь должна поглотить максимальное количество тепла, то есть нагреться. Поэтому в процессе горения топлива открывать топочные дверки нельзя, так как в топку начинает попадать холодный воздух в большом количестве, охлаждая тем самым горячие газы и каналы печи.

В силу вышеизложенного следует соблюдать следующие правила. По мере прогорания топлива надо прикрывать не только дверку топливника, но и частично вьюшку или задвижку. Перемешивать (шевелить) дрова можно только после того, как они хорошо прогорели и между поленьями образовались большие пустоты, сквозь которые в топливник начинает поступать излишний для горения воздух, охлаждая печь.

Если остаются головешки, их надо собрать в центре топливника (пода печи) или колосниковой решетки и обложить с боков ярко горящими углями. Выгорающие угли и дрова (головешки) должны плотно лежать, чтобы на пути движения воздуха к топливнику не было излишнего его притока.

Когда угли прогорят и перестанут выделять синее пламя, то есть угарный газ, эти угли надо разровнять по решетке или поду топливника, но ближе к дверке и плотно прикрыть ее.

Трубу же рекомендуется оставить открытой еще на 5-10 мин, чтобы имеющийся в топливе угарный газ до конца сгорел и не проник в помещение, что может привести к отравлению людей. По истечении этого срока трубу полностью прикрывают.

Чтобы избежать отравления угарным газом, не следует топить печь перед сном. Когда для топки применяют каменный уголь, антрацит или торф, то в дымовой задвижке просверливают отверстия диаметром 10–15 мм, через которые будут отводиться скапливающиеся в печке газы.

Каменный уголь и антрацит разжигают предварительно дровами, затем на горящие угли насыпают слой каменного угля толщиной 50–60 мм и, как только он разгорится, на него насыпают оставшуюся порцию угля слоем примерно в 150 мм. Более толстый слой не рекомендуется, так как он будет гореть неправильно. Такая толщина слоя угля должна поддерживаться в течение всего времени топки.

Камины, банные печи, печи-прачки

Кладка каминов

Камины — это простейшие печи с открытой топкой в виде ниши. Они нагревают помещение исключительно лучистой тепловой энергией. Отдача тепла равняется 10–20 %, остальное тепло уходит в трубу. Поэтому камины в холодных зонах страны не могут служить в качестве отопительных устройств.

Топливники каминов всегда делают широкими, но не глубокими, а верхнюю и боковые стенки — с развалом или уширением в сторону помещения. Такая конструкция позволяет больше отражать тепла.

Камины выполняют отдельно стоящими, встроенными в кирпичную стену, толщиной не менее чем в два кирпича или пристроенными к ней. В связи с тем, что камины хорошо вентилируют помещение, их чаще всего устраивают в курительных комнатах, кабинетах, залах. Они выделяют тепло исключительно во время топки и притом очень неравномерно. Лучше всего воздух нагревается против топливника и с боковых сторон, обращенных к нему, а с боков — очень слабо.


Рис. 104. Камин:

а — общий вид; б — план; в — разрез; г — дымоход; 1 — бронзовый лист; 2 — ниша под корзинкой; 3 — корзинка; 4 — задвижка; 5 — чистка, закрываемая герметической дверкой; 6 — газовый порог


Камин (рис. 104) состоит из топливника и дымовой трубы без дымоходов (оборотов). Внутри его делают согнутый в виде колена газовый порог (перевал, выступ, козырек, зуб), который препятствует вылетанию искр из трубы, не допускает перепада воздушных потоков, приводящих к дымлению и вылетанию сажи, собирания ее и попадания дождевой или снеговой воды. Газовый порог бывает ровным и лоткообразным. Часто на нем устанавливают противень, а против него чистку, закрываемую герметической дверкой. Ширина газового порога должна равняться ширине трубы, а его выступ быть на одной прямой с передней стенкой (показано пунктиром) или даже шире на 10–20 мм, что дает возможность полностью задерживать спадающую сажу. Если ширина порога у́же, то он не будет ее задерживать. При любых конструкциях газового порога он не должен сужать трубу, чем предупреждается дымление. Разрезы каминов и форма газовых порогов показаны на рисунке 105. Тяга дымовых газов слабая. Поэтому над некоторыми каминами устраивают колпаки или шахты, в которых предварительно собирается дым и из шахты он постепенно выходит по трубе наружу.


Рис. 105. Разрезы каминов и форма газовых порогов


Труба у неработающего камина всегда должна быть закрыта задвижкой или бараном (поворотной задвижкой). Это предохраняет от быстрого охлаждения.

Чем ровнее и глаже внутренние стенки топливника, тем больше выделяется тепла. Чтобы повысить его отдачу, заднюю и боковые стенки облицовывают листами из бронзы или нержавеющей стали. Чем чище листы, тем больше отдача тепла. Иногда листы делают съемными, которые периодически очищают от копоти и доводят до блеска.

Форма и размеры каминов, а также материалы для их устройства могут быть самыми разными. Для кладки применяют огнеупорный или обыкновенный кирпич, с футеровкой внутри топки огнеупорным. Толщина кирпичных стенок в полкирпича. Футеровку в металлических футлярах можно выполнить и в четверть кирпича. Камины можно класть из любых камней, кроме известняка и кремния, а также из жаростойкого бетона, керамики, металла.

Постоянные тяжелые камины устраивают на прочном фундаменте, более легкие — на прочном полу, а самые легкие иногда подвешивают к потолочным балкам. Имеются разборные камины из керамики или жаростойкого бетона. На рисунке 106 показаны конструкции каминов из различных материалов.


Рис. 106. Разновидности каминов:

а — металлические подвесные и напольные; б — металлические и керамические напольные; в — напольные из разных материалов


Необходимо помнить, что в процессе кладки надо строго соблюдать перевязку швов, оставляя их как можно тоньше.

Отделывают камины различно, но лучше всего облицовать их в процессе кладки гладкими или узорчатыми изразцами. Облицовка всевозможными керамическими плитками не практична, так как они быстро отваливаются. Поверхности можно оставить кирпичными, раскрасив их известковыми или меловыми (клеевыми) красками или раскрасив только одни швы. Оштукатуривают теми же растворами, что и печи.

Трубу желательно делать размером 1х1,5 кирпича.

Для улучшения тяги на трубы ставят различные дефлекторы и флюгарки, которые к тому же защитят от попадания в трубу дождя и снега и движущихся сверху потоков воздуха.

Камины располагают посредине комнаты у стены, в углу, около печи, с устройством для них отдельных труб или подключением их к существующим печным.

Легкие и разборные камины часто используют в холодное время года, на летний период их убирают.

При устройстве любого камина надо строго соблюдать противопожарные мероприятия. Ставя легкие камины на полу, прежде всего выполняют подушку или площадку из кирпича, уложенного в три ряда. Первый ряд кладут на пропитанный в глиняном растворе войлок, который закрывают кровельной сталью. Вместо кирпича можно использовать бетонные плиты, положенные также в два-три ряда по толщине и обязательно по войлоку и кровельной стали. Бетонную плиту можно поднять на 150–200 мм над уровнем пола на ножках (столбиках) из кирпича или бетона. Перед топливником кладут предтопочный лист из стального листа.

При кладке каминов из кирпича и камня приходится перекрывать топливники. Лучше всего устраивать перемычки, сводики или арки, по возможности избегая укладки стальных балочек (полосовая, угловая сталь и др.). Сталь, нагреваясь, сильно деформируется и расстраивает кладку. Лучше ставить чугунные балочки, например колосники длиной до 470 мм. Если приходится ставить стальные балочки, то их предварительно изолируют в два-три слоя асбестом, закрепив его медной проволокой (стальная быстро перегорает). Используют также балочки из жаростойкого бетона.

Топливо в каминах сгорает различно. В одном случае применяют металлические таганчики или корзинки, которые изготовляют из круглой (диаметром от 10 мм и больше) или полосовой стали. Прутки располагают через 10–25 мм так, чтобы они были на ножках высотой не менее 50 мм и топливо могло со всех сторон охватываться воздухом. Для предохранения от быстрого прогорания на таганчик укладывают чугунную колосниковую решетку (рис. 107). В другом случае в поду топливника делают поддувало, укладывают колосниковую решетку. В поддувало ставят противень или коробку для сбора золы и углей, а также регулировки подачи воздуха к топливу.


Рис. 107. Корзинка


На рисунке 108 представлен вариант кладки камина из кирпича.


Рис. 108. Камин из кирпича:

а — вид спереди; б — разрез; в — вид сбоку

Простейшие печи для бань

В разделе рассмотрены простейшие банные печи разной конструкции. Можно построить и любые бани, используя предлагаемые рекомендации, но в любом случае следует строго соблюдать при кладке печи перевязку швов, причем оставляя их как можно тоньше. Стенки печи кладут в половину или один кирпич. Порядовок для печей не дается, так как котлы, да и конструкции печей могут быть разными.

Банные печи служат для нагревания воды, обогревания бани и получения пара.

Топка печи может выходить или в предбанник, или быть в самой бане. Так называемая каменка в печи нужна для подачи пара.

Печи можно сложить из бутового или обычного камня, хорошо обожженного кирпича. Толщина стенок печи может быть от 130 до 250 мм. Камни для устройства каменки применяют весом от 1 до 5 кг. Это могут быть бут, голыш, гранит, но только не мрамор, известняк и кремень, так как в процессе нагревания мрамор и известняк, обжигаясь, превращаются в известь-кипелку, а от поливания водой гасятся, превращаясь в известковое тесто. Кремень от нагревания трескается, и его куски отлетают далеко, что небезопасно. Особенно это бывает при поливке его водой.

Для более высокого нагревания каменки рекомендуется добавлять чугунные чушки в соотношении 80 % камней и 20 % чушек. Когда в печах устраивают закрываемые парильни, то лучше всего для них применять герметические дверки больших размеров — 60х220 или 160x260 мм.

Котлы и баки для горячей воды берут из расчета 6–7 л горячей воды температурой до 50 °C на одного посетителя. Объем воды можно брать гораздо больше. Чем до более высокой температуры она нагревается, тем потребность в ней снижается.

Котлы или баки в печах могут опираться своими бортами на стенки кладки или на столбики внутри топки. Можно их также подвешивать к балке на проволоке либо тросе. Котлы и балки могут быть с кранами, трубки для которых приваривают около дна. Чтобы трубки быстро не прогорали, их изолируют асбестом или облицовывают кирпичом.

Банную печь (рис. 109) с котлом и краном применяют только для нагревания воды и обогрева помещения бани, но не для парильни.


Рис. 109. Банная печь с котлом для нагревания воды:

1 — канал для выхода тепла; 2 — кран; 3 — пазуха для горячих газов; 4 — котел; 5 — канал для отвода газов в трубу; 6 — топочная дверка; 7 — поддувальная дверка; 8 — колосниковая решетка


Банная печь-каменка (рис. 110) с котлом для нагревания воды напоминает обычную кухонную плиту с более широкой трубой или камерой, заполненной камнем. Камень укладывают на прочные тяжелые чугунные колосники. Внизу на уровне 1,5 м от пола делают две дверки. Нижнюю открывают после топки для подачи тепла в нижнюю часть бани, к полу. Верхняя служит для образования пара (через нее поливают водой горячие камни). Эта печь весьма проста и не имеет поддувала. Так как камни находятся высоко, то тепло подается через нижнюю дверку слабо.


Рис. 110. Банная печь-каменка:

1, 3 — дверки; 2 — чугунные брусья; 4 — проволока или тросик; 5 — топливник


Улучшенная печь-каменка (рис. 111) устроена так, что с пола она заполнена камнем, а для его нагрева в стенке со стороны топливника имеется несколько отверстий, куда проходят горячие газы и нагревают камни (показано стрелками). В этом случае горячие газы больше всего будут подниматься по верхним отверстиям и меньше нагревать нижележащие камни.


Рис. 111. Улучшенная печь-каменка:

1, 3 — дверки; 2 — отверстие в стенке топливника


В другой конструкции улучшенной печи-каменки (рис. 112) у самого низа топливника, то есть у стенки камеры, предусмотрены отверстия для выхода горячих газов. Чтобы эти газы направить туда, между топкой и стенкой камеры выкладывают дополнительную стенку толщиной в полкирпича, которая отстоит на 100–200 мм от камеры и на таком же расстоянии от верха топливника. В этом случае камни нагреваются у самого низа.


Рис. 112. Улучшенная печь-каменка со стенкой для направления горячих газов:

1 — стенка внутри топливника; 2 — отверстие в стенке камеры


Печь-каменка с поддувалом (рис. 113) может быть также устроена со стенкой для направления горячих газов в низ камеры, но стенка должна располагаться в самой камере. Высота топливника, считая от дна котла, должна быть не менее 500 мм, чтобы можно было положить нужное количество топлива.


Рис. 113. Печь-каменка с поддувалом:

1 — топливник; 2 — зольник; 3 — канал для выхода горячих газов из-под топливника; 4 — отверстия


Выполняя любую печь, надо предусмотреть, чтобы между стенками печи и котлом было пространство не менее 50–60 мм, необходимое для более быстрого обогрева горячими газами котла со всех сторон.

Тяга в печах зависит от высоты трубы и многих причин. Печи надо располагать так, чтобы они не примыкали к какой-либо стене и отступали от нее минимум на 380 мм, отдавая тем самым тепло всеми своими стенками.

Труба должна иметь распушку, то есть кладка таких печей соблюдается с учетом противопожарных требований.

На рисунке 114 показана оригинальная печь-каменка, сделанная из двух металлических бочек. В одной бочке устраивают топливник с поддувалом и вставляют бак из оцинкованной стали конусообразной формы, имеющий вверху такой диаметр, чтобы он мог опускаться в бочку и задерживаться в ней своими бортами. Бак может выступать своими краями над бочкой на 50-100 мм и дном не доходить до поддувальной решетки на 250–300 мм. Решетку выполняют из более толстой стали или используют стандартную чугунную. Примерно посередине высоты бака в бочке делают отверстие для трубы диаметром не менее 100–120 мм. В данном случае это будет просто печь для нагревания воды. Если эту трубу подсоединить ко второй бочке снизу боковой стороны или под днище, прорезать с боковой стороны вверху отверстие и устроить дверку, а в верху днища пристроить патрубок для трубы и заполнить эту бочку камнем, будет готова печь-каменка. Устанавливать ее надо неближе 50 см от стен бани. Вместо бочек можно применить любую листовую сталь и изготовить такую печь-каменку любой формы и размера. По этому принципу можно построить ее из кирпича.


Рис. 114. Печь-каменка из металла:

1 — зольник; 2 — топливник; 3 — бак для воды; 4 — патрубок; 5 — камни


Напоминаем, что независимо от размера печи и других данных на высоте 1,8–2 м над камерой или в трубе ставят задвижку. Вставляемая в камеру верхняя дверка служит не только для смачивания камней водой, но и для получения тепла.

Печка-прачка

Печки-прачки требуют небольшого количества топлива. Их используют не только для нагревания воды при стирке белья, но и для запарки, а также варки томатов, грибов, маринадов, запарки корма и т. д. Изготовляют эти печки-прачки из листовой кровельной или другой стали. Чем она толще, тем длительнее срок службы, и наоборот. Небольшой вес позволяет переносить ее в любое место.

На рисунке 115 показана печка-прачка со всеми деталями и размерами. Однако эти размеры можно уменьшить или увеличить в зависимости от наличия материала и бака.


Рис. 115. Печка-прачка:

а — общий вид; б — бак; в — карман; г — вставка; д — поддон; е — труба; ж — кожух


Печка состоит из металлического кожуха, чаще всего черной стали (железа), трубы и эмалированного бака конусообразной формы с крышкой. Можно применять бак из оцинкованной стали, но тогда его нельзя будет использовать для пищи. Эмалированный бак вставлен в кожух, внизу которого закреплены три прочные ножки, немного отогнутые наружу, что придает печке устойчивость.

На расстоянии 80 мм от дна кожуха имеется топочное отверстие, закрываемое дверкой. Под ним пробито несколько отверстий круглой, квадратной или треугольной формы. Если они круглые, то диаметр 15 мм. Эти отверстия служат поддувалом. Под топкой закреплен зольник в виде ящичка.

В верху кожуха, примерно на 1/3 его высоты, предусмотрены две ручки для переноса печки. Верхняя часть кожуха не имеет жесткого бортика, благодаря этому бак плотно входит в кожух, что предотвращает выход дыма и горячих газов. Во время топки горячие газы со всех сторон омывают бак, и он быстрее нагревается. Для кипячения белья на дно бака укладывают эмалированный поддон с отверстиями или деревянную решетку, что предохраняет белье от подгорания. От верхней кромки кожуха на расстоянии 90-100 мм закреплен карман, необходимый для выхода дыма и горячих газов. Для этого в кожухе вырезано соответствующее отверстие. Карман имеет конусообразную форму с верхним диаметром 130 мм, закрытый сверху над отверстием крышкой, к которой прикреплен патрубок для дымовой трубы (как для самовара) диаметром 100 мм, высотой 50-100 мм. Труба должна быть с ветрогасителем, что предохраняет выход дыма и газов через топку.

Чтобы предохранить нижнюю часть кожуха от быстрого прогорания, в него вложена вставка (вторая стенка) из стали любой толщины высотой 200 мм. Топочное отверстие в ней на 20–30 мм больше, чем в кожухе. Вставка сделана диаметром на 20 мм меньше, чем внутренний диаметр кожуха. На дно кожуха положен поддон с отогнутыми лапками или ножками высотой до 50 мм и многочисленными отверстиями. Этот поддон служит колосниковой решеткой.

Крепить отдельные детали печки можно фальцевыми соединениями, сваркой или заклепками. Чем плотнее места соединения, тем лучше.

Такую печку легко сделать в домашних условиях. Для этого прежде всего надо купить конусообразный эмалированный или оцинкованный бак или изготовить его из соответствующего металла, например алюминия. Вместо бака можно использовать конусообразное ведро. В зависимости от размера бака изменяют и размеры печки.

Изготовить кожух можно из нескольких кусков стали, добиваясь более плотного примыкания кусков друг к другу. Чтобы предохранить кожух от разрушения, его внутреннее пространство изолируют листовым асбестом.

Если вместо конусообразного применяют ровный бак, то кожух выполняют конусообразным.

Печь такой конструкции можно изготовить из кирпича, но устанавливать ее надо стационарно. Вместо кирпичной ее можно сделать глинобитной, используя для этой цели густой глиняный раствор. Под действием высокой температуры глина обжигается и образует прочный черепок, который будет служить длительное время. Глиняный раствор должен быть такой густоты, чтобы при наступлении на него ногой на нем оставались бы почти невидимые отпечатки.

__________

Вниманию читателей!
В Россельхозиздате планируются к изданию следующие книги по жилищному и культурно-бытовому строительству на селе:

Болтинский В. А., Лопаткин Ю. В., Мальцев Ю. Л. Сельский дом (альбом-справочник крупнопанельных усадебных жилых домов)

Альбом знакомит сельских тружеников, работников партийных и сельских органов, проектных и строительных организаций, стройиндустрии с конструктивными и планировочными особенностями и технологией производства малоэтажных сельских домов, с вариантными решениями их фасадов, с действующими типовыми и индивидуальными проектами жилых домов.


Шепелев А. М. Как построить сельский дом (4-е изд., перераб. и доп.)

В книге в популярной форме рассказывается, как построить дом своими руками, используя различные строительные материалы, в том числе местные.

Особое внимание автор уделяет способам выполнения земляных, каменных, плотничных, столярных, бетонных, кровельных, печных, штукатурных, малярных, обойных, стекольных и других строительных работ.



Оглавление

  • От автора
  • Основные рекомендации по кладке печей
  • Материалы, приборы и приспособления
  •   Основные материалы
  •   Подсобные материалы
  •   Растворы
  •     Глиняный раствор
  •     Известковый и известково-гипсовый растворы
  •     Цементный раствор
  •   Изготовление кирпича-сырца
  •   Печные приборы
  •   Инструменты и приспособления
  •     Инструменты
  •     Приспособления
  • Подготовка к кладке печей
  •   Общие сведения о кладке
  •   Размещение печей и определение их размеров
  •     Размещение печей
  •     Определение размеров печей
  •   Колка и теска кирпича
  •   Приемы кладки
  •   Кладка фундаментов под печи и трубы
  •   Кладка арок и сводов
  •   Кладка основных частей печи, борьба с конденсатом
  •     Общая схема отопительной печи
  •     Топливники
  •     Дымообороты
  •     Образование конденсата и борьба с ним
  • Кладка печей
  •   Кухонные плиты
  •     Простая плита
  •     Плита с духовкой
  •     Плита на шанцах с духовкой
  •     Плита с духовкой и водогрейной коробкой
  •   Отопительные щитки
  •     Щиток толстостенный
  •     Щиток облегченной конструкции
  •     Плита со щитком, имеющим самостоятельную топку
  •   Отопительно-варочные печи
  •     Печи конструкции В. А. Потапова
  •     Обычная печь с тепловым шкафом
  •     Печь конструкции И. Ф. Волкова
  •   Русские печи
  •     Общие сведения о печах
  •     Простая печь
  •     Печь с плитой и обогревательным щитком
  •     Улучшенная печь «Теплушка»
  •     Глинобитная печь
  •   Отопительные печи
  •     Оштукатуренная печь с теплоотдачей 1760 ккал/ч
  •     Оштукатуренная печь с теплоотдачей 1940 ккал/ч
  •     Оштукатуренная печь с теплоотдачей 2400 ккал/ч
  •     Оштукатуренная печь с теплоотдачей 3020 ккал/ч
  •     Оштукатуренная печь с теплоотдачей 3850 ккал/ч
  •     Печь в металлическом футляре с теплоотдачей 3920 ккал/ч
  •     Изразцовая печь с теплоотдачей 4150 ккал/ч
  •   Устройство дымовых труб
  •     Присоединение печей к дымоходам
  •     Расположение труб над кровлей
  •     Размеры дымовых каналов
  •     Кладка трубы с распушкой и выдрой
  •     Асбестоцементные трубы
  •     Утепление труб
  •   Наружная отделка печей
  •     Облицовка изразцами
  •     Кладка печей в футлярах
  •     Оштукатуривание печей
  •   Противопожарные меры при кладке печей и труб
  • Ремонт и эксплуатация печей
  •   Ремонт печей
  •   Топка печей
  • Камины, банные печи, печи-прачки
  •   Кладка каминов
  •   Простейшие печи для бань
  •   Печка-прачка